Einzigartige Historische Liegenschaft in Zwettl’s Altstadt - an der Stadtmauer
Beschreibung
Diese außergewöhnliche Immobilie vereint auf harmonische Weise historischen Charme mit modernem Entwicklungspotenzial. Das durchdachte Raumkonzept auf zwei Ebenen bietet vielfältige Nutzungsmöglichkeiten für Wohnen, Arbeiten und kreative Entfaltung.
ERDGESCHOSS – HISTORISCHES FUNDAMENT MIT ZUKUNFTSPOTENZIAL
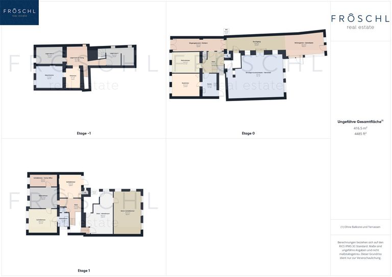
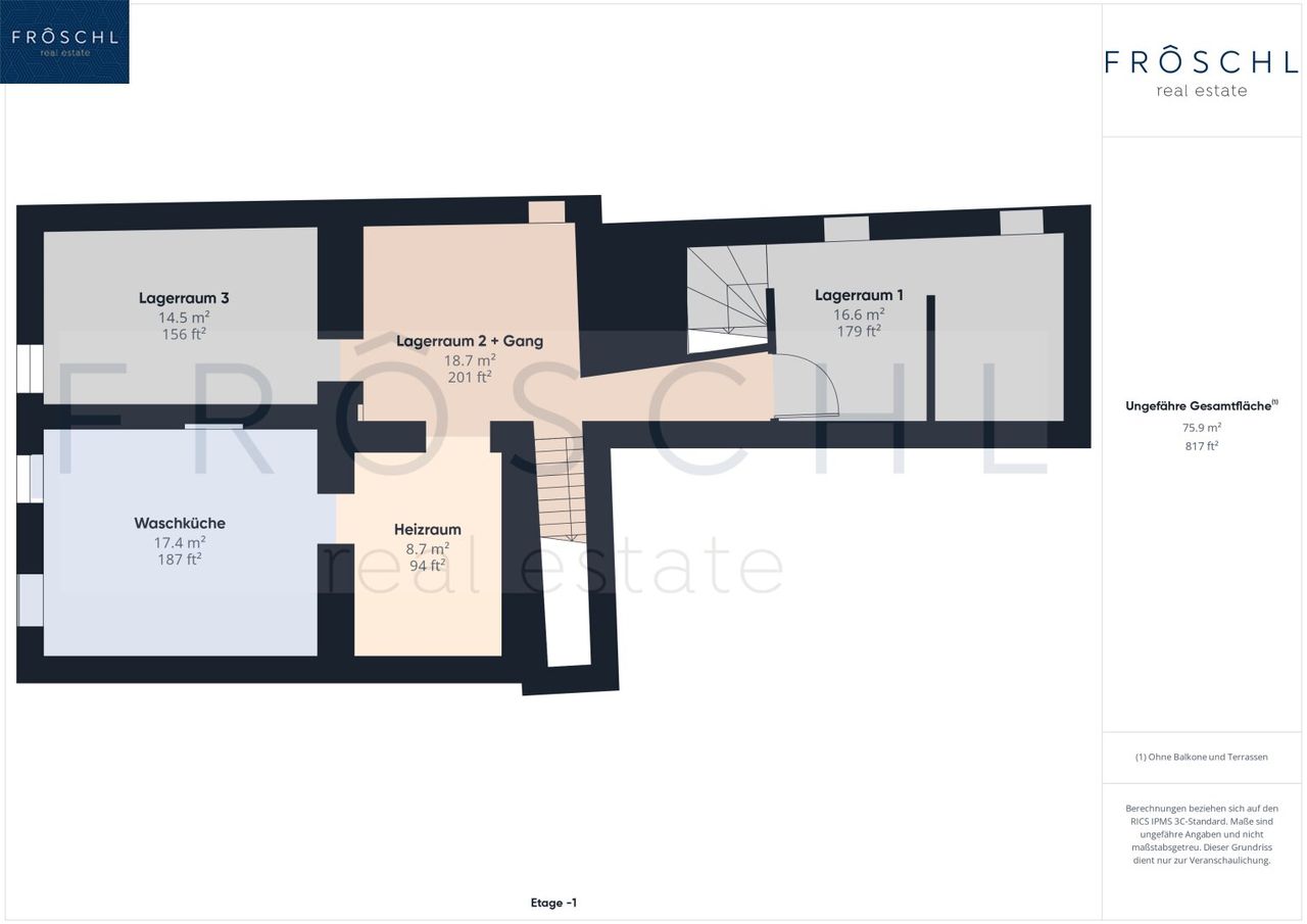
Das Erdgeschoss des Wohnhauses bietet auf ca. 79 m² Nutzfläche ein authentisches Ambiente mit Geschichte. Ergänzt durch rund 119 m² in den angrenzenden Nebenräumen und der ehemaligen Kunstschmiede-Werkstatt entsteht ein beeindruckendes Raumangebot von knapp 200 m².
Diese traditionsreichen Räume, in denen einst kunstvolles Schmiedehandwerk praktiziert wurde, bewahren noch heute ihre einzigartige Atmosphäre. Die architektonischen Details und die großzügige Raumaufteilung schaffen ideale Voraussetzungen für vielfältige Nutzungskonzepte – von...
Diese außergewöhnliche Immobilie vereint auf harmonische Weise historischen Charme mit modernem Entwicklungspotenzial. Das durchdachte Raumkonzept auf zwei Ebenen bietet vielfältige Nutzungsmöglichkeiten für Wohnen, Arbeiten und kreative Entfaltung.
ERDGESCHOSS – HISTORISCHES FUNDAMENT MIT ZUKUNFTSPOTENZIAL
Das Erdgeschoss des Wohnhauses bietet auf ca. 79 m² Nutzfläche ein authentisches Ambiente mit Geschichte. Ergänzt durch rund 119 m² in den angrenzenden Nebenräumen und der ehemaligen Kunstschmiede-Werkstatt entsteht ein beeindruckendes Raumangebot von knapp 200 m².
Diese traditionsreichen Räume, in denen einst kunstvolles Schmiedehandwerk praktiziert wurde, bewahren noch heute ihre einzigartige Atmosphäre. Die architektonischen Details und die großzügige Raumaufteilung schaffen ideale Voraussetzungen für vielfältige Nutzungskonzepte – von der kreativen Atelierfläche über stilvolle Galerieräume bis hin zu modernen Wohneinheiten.
OBERGESCHOSS – HERRSCHAFTLICHES WOHNEN MIT GARTENBLICK
Im Obergeschoss präsentiert sich eine elegante Wohnung auf ca. 141 m² Wohnfläche, die durch ihr durchdachtes Raumkonzept und lichtdurchflutete Atmosphäre überzeugt. Die großzügigen Räume vereinen repräsentative Eleganz mit behaglicher Wohnatmosphäre.
Das Highlight dieser Etage bildet der imposante Wohn-Schlafraum mit rund 35 m², der einen malerischen Blick auf den liebevoll gestalteten Garten freigibt. Hier verbinden sich Wohnkomfort und Naturverbundenheit zu einem harmonischen Gesamtkonzept.
ENTWICKLUNGSPOTENZIAL – KREATIVE RAUMNUTZUNG
Bei geschickter Planung und mit kreativer Hand lassen sich die großzügigen Räumlichkeiten zu bis zu vier attraktiven Wohneinheiten entwickeln. Selbst der Dachboden bietet interessantes Entwicklungspotenzial für zusätzliche Wohn- oder Nutzflächen. Die flexible Raumaufteilung, die soliden Baustrukturen und die hervorragende Lage schaffen optimale Voraussetzungen für ein durchdachtes Investitionsprojekt mit nachhaltiger Rendite.
GARTEN – GRÜNES REFUGIUM AN HISTORISCHER STADTMAUER
Der Garten erstreckt sich harmonisch vom Haupthaus über die ehemalige Werkstatt bis zur historischen Stadtmauer von Zwettl. Dieses grüne Refugium bietet einen einzigartigen Rahmen aus Geschichte und Natur.
Zahlreiche, liebevoll gepflegte Obstbäume verleihen dem Garten natürliche Vielfalt und laden mit ihrem Potpourri aus Düften, Farben und Geschmäckern zum Verweilen ein. Die Kombination aus gewachsenem Grün und historischem Mauerwerk schafft eine Atmosphäre von romantischer Kraft und zeitloser Eleganz.
Ob als privater Rückzugsort, für gesellige Zusammenkünfte oder als Erweiterung eines kreativen Wohn- und Lebenskonzepts – dieser Garten ist weit mehr als Außenfläche: Er ist lebendige Geschichte mit Zukunftspotenzial.
TECHNISCHE AUSSTATTUNG & RECHTLICHE HINWEISE
Grundstück & Widmung:
- Grundstück ist im Grundsteuerkataster eingetragen
- Widmung: Bauland Kerngebiet (BK) laut Flächenwidmungsplan
- Bebauungsplan: geschlossene Bauweise, BKL I und II möglich
- Keine Eintragung im Altlastenatlas
- Erhaltungspflicht für die historische Stadtmauer
Infrastruktur:
- Vollerschließung durch örtliches Versorgungsnetz
- Strom und Gasversorgung: EVN
- Wasser- und Abwasseranschluss an öffentliches Kanalsystem
Diese einzigartige Liegenschaft vereint historischen Charme mit modernem Entwicklungspotenzial – ein Objekt für Visionäre und Investoren mit Sinn für das Besondere.
Vereinbaren Sie noch heute einen Besichtigungstermin und lassen Sie sich von dieser beeindruckenden Immobilie überzeugen! Wir freuen uns darauf, Sie persönlich zu begrüßen. Bei weiteren Fragen stehen wir Ihnen jederzeit unter +43 664 1838 268 zur Verfügung oder senden Sie uns eine E-Mail an christian@froeschl.estate.
Besuchen Sie www.froeschl.estate und entdecken Sie weitere 360º virtuelle Rundgänge sowie die neuesten Objekte! Gerne unternehmen wir auch gemeinsam mit Ihnen geführte virtuelle Besichtigungen!
Unsere Angaben basieren auf den Informationen des Eigentümers; Änderungen und Irrtümer sind vorbehalten.
Sie möchten den Wert einer Immobilie wissen? Bewertungen Professionell und präzise
FRÖSCHL real estate ermittelt den Verkehrswert Ihrer Liegenschaft. Das schriftliche Bewertungsgutachten ist ein umfangreiches Dokument aus dem dieser hervorgeht. Wir ermitteln abhängig von Ihrem Objekt über den Vergleichswert, den Sachwert oder den Ertragswert, unter Beachtung aller relevanten Unterlagen, den aktuellen Marktwert ihrer Immobilie. Gerne übernehmen wir Bewertungen auch aus anderen Anlässen wie innerfamiliären Angelegenheiten, Erbschaften oder steuerlichen Anforderungen und dergleichen.
Der Vermittler ist als Doppelmakler tätig.
Infrastruktur / Entfernungen
Gesundheit
Arzt <500m
Krankenhaus <1.000m
Klinik <1.000m
Apotheke <500m
Kinder & Schulen
Schule <500m
Kindergarten <500m
Höhere Schule <500m
Nahversorgung
Supermarkt <500m
Bäckerei <500m
Einkaufszentrum <1.500m
Sonstige
Bank <500m
Geldautomat <500m
Polizei <500m
Post <500m
Verkehr
Bus <500m
Autobahnanschluss <2.000m
Angaben Entfernung Luftlinie / Quelle: OpenStreetMap
Objektdaten
Ausstattung
- Räume veränderbar
- Gartennutzung
- Teilmöbliert
- Kabel/SAT-TV
- Wasch-/Trockenraum
- Fahrradraum
- Gäste-WC
- Bad mit Badewanne
- Einbauküche
- Fliesenboden
- Parkettboden
- Ofen
- Zentralheizung
- Befeuerung mit Gas
- Befeuerung mit Holz
- Ausrichtung Balkon/Terrasse - Nordost
- Satteldach
- Massiv Bauweise
Dokumente / Links
Zustand
- Zustand
- GEPFLEGT
- HWB
- 459 kWh/m² pro Jahr
- Klasse HWB
- G
- fGEE
- 5.28
- Klasse fGEE
- G
Flächen
- Anzahl der Badezimmer
- 1
- Anzahl der sep. WCs
- 2
- Anzahl der Terrassen
- 1
- Wohnfläche
- 339m²
- Nutzfläche
- 220m²
- Lagerfläche
- 195m²
- Grundstücksfläche
- 669m²
- Gartenfläche
- 397m²
- Kellerfläche
- 76m²
- Terrassenfläche
- 1m²
Kosten
- Kaufpreis Brutto
- € 349.000,00
Verwaltung
- Verfügbar ab
- Nach Vereinbarung
Häuser zum Kaufen im Umkreis von Zwettl-Niederösterreich
Häuser zum Kaufen im Umkreis von Zwettl-Niederösterreich
Häuser zum Kaufen in Österreich
Andere Besucher suchen nach...
- Grundstücke kaufen in 3400 Weidlingbach
- Wohnungen kaufen in 4663 Laakirchen
- Häuser in 7471 Rechnitz
- Wohnungen in 2410 Hainburg an der Donau
- Häuser kaufen in 2432 Schwadorf
- Wohnungen kaufen in 3002 Purkersdorf
- Häuser in 3150 Wilhelmsburg
- Wohnungen kaufen in 3470 Engelmannsbrunn
- Grundstücke kaufen im Bezirk Mattersburg
- Grundstücke kaufen im Bezirk Gmunden