Das Rheintal zu Füßen - Liegenschaft in Kennelbach zu vermieten!
-
01.07.2026
Beschreibung
Kmenta & Partner Immobilienmakler GmbH in Kooperation mit Perfekt Immo GmbH
Herzlich willkommen in Kennelbach!
Hier eröffnet sich die exklusive Möglichkeit, ein charmantes Refugium für sich und Ihre Familie zu mieten. Das Haus wurde stets liebevoll gepflegt und ist aktuell bewohnbar. Gleichzeitig bietet es ein erhebliches Potential für Modernisierungen und individuelle Umgestaltungen.
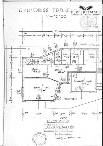
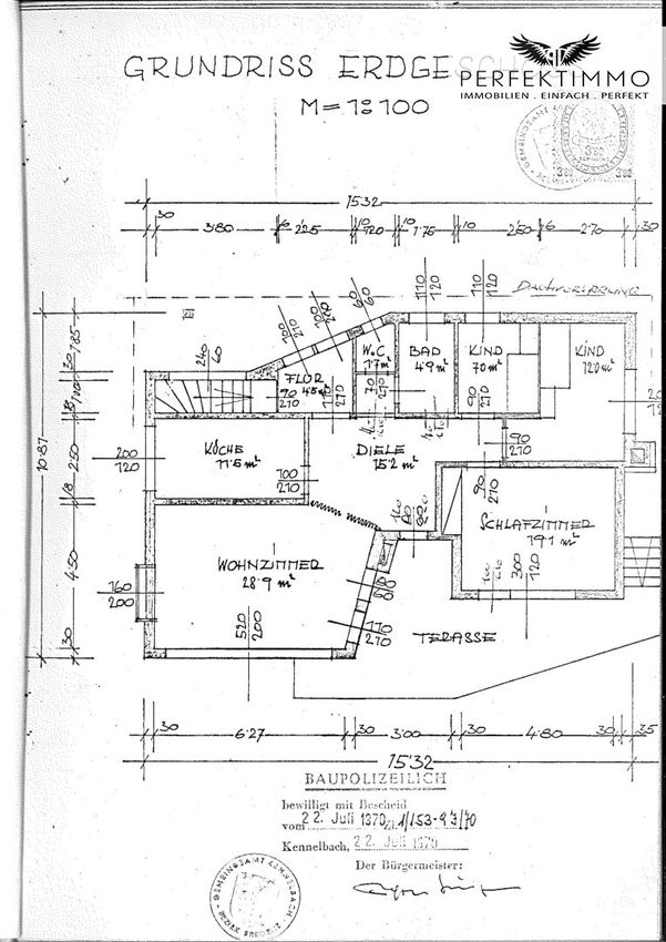
Die Immobilie erstreckt sich über zwei Etagen mit separaten Zugängen, was die Schaffung einer Einliegerwohnung grundsätzlich ermöglicht. Besonders hervorzuheben ist das großzügige Wohnzimmer im Obergeschoss, das mit einem authentischen Südtiroler Backsteinofen ausgestattet ist und über eine traumhafte Terrasse verfügt. Von hier aus genießen Sie atemberaubende Ausblicke...
Kmenta & Partner Immobilienmakler GmbH in Kooperation mit Perfekt Immo GmbH
Herzlich willkommen in Kennelbach!
Hier eröffnet sich die exklusive Möglichkeit, ein charmantes Refugium für sich und Ihre Familie zu mieten. Das Haus wurde stets liebevoll gepflegt und ist aktuell bewohnbar. Gleichzeitig bietet es ein erhebliches Potential für Modernisierungen und individuelle Umgestaltungen.
Die Immobilie erstreckt sich über zwei Etagen mit separaten Zugängen, was die Schaffung einer Einliegerwohnung grundsätzlich ermöglicht. Besonders hervorzuheben ist das großzügige Wohnzimmer im Obergeschoss, das mit einem authentischen Südtiroler Backsteinofen ausgestattet ist und über eine traumhafte Terrasse verfügt. Von hier aus genießen Sie atemberaubende Ausblicke über das malerische Rheintal.
Der Außenbereich beeindruckt durch einen gepflegten Garten mit einer einladenden Steinterrasse, die ebenfalls einen bezaubernden Panoramablick bietet. Die großzügige Terrasse bietet ausreichend Platz für diverse Sitz- und Liegemöglichkeiten.
Zusätzlich steht Ihnen eine Garage zur Verfügung.
Um die Privatsphäre zu wahren, können keine Innenaufnahmen bereitgestellt werden, da das Haus noch bewohnt ist. Der Bezugstermin wird in Absprache festgelegt.
Der Plan vom Kellergeschoss ist nicht mehr aktuell:
Bastelraum = Küche; Trockenraum = Eingangsbereich; Keller = Schlafzimmer; Heizraum = Keller; Waschküche = Dusche und WC
Wir laden Sie herzlich dazu ein, einen Besichtigungstermin zu vereinbaren.
Hinweis gemäß Energieausweisvorlagegesetz: Ein Energieausweis wurde vom Eigentümer bzw. Verkäufer, nach unserer Aufklärung über die generell geltende Vorlagepflicht, sowie Aufforderung zu seiner Erstellung noch nicht vorgelegt. Daher gilt zumindest eine dem Alter und der Art des Gebäudes entsprechende Gesamtenergieeffizienz als vereinbart. Wir übernehmen keinerlei Gewähr oder Haftung für die tatsächliche Energieeffizienz der angebotenen Immobilie.
Der Immobilienmakler erklärt, dass er – entgegen dem in der Immobilienwirtschaft üblichen Geschäftsgebrauch des Doppelmaklers – einseitig nur für den Vermieter tätig ist.
Infrastruktur / Entfernungen
Gesundheit
Arzt <1.000m
Apotheke <1.500m
Krankenhaus <1.500m
Klinik <2.500m
Kinder & Schulen
Schule <1.500m
Kindergarten <1.500m
Universität <2.000m
Höhere Schule <6.000m
Nahversorgung
Supermarkt <1.500m
Bäckerei <1.000m
Einkaufszentrum <2.000m
Sonstige
Bank <1.000m
Geldautomat <1.000m
Post <1.000m
Polizei <2.000m
Verkehr
Bus <500m
Bahnhof <2.500m
Autobahnanschluss <1.000m
Angaben Entfernung Luftlinie / Quelle: OpenStreetMap
Objektdaten
Ausstattung
- Einbauküche
- Elektrische Befeuerung
- Befeuerung mit Holz
Zustand
- Zustand
- GEPFLEGT
- Baujahr
- 1971
- Alter
- ALTBAU
Flächen
- Anzahl der Zimmer
- 6
- Anzahl der Badezimmer
- 1
- Anzahl der sep. WCs
- 2
- Anzahl der Balkone
- 1
- Anzahl der Terrassen
- 1
- Wohnfläche
- 164m²
- Grundstücksfläche
- 670m²
- Gartenfläche
- 508m²
- Terrassenfläche
- 1m²
Kosten
- Gesamtmiete Brutto
- € 1.950,00
- Miete
- € 1.800,00
- Betriebskosten
- € 150,00
- Monatl. Gesamtbelastung Brutto
- € 1.950,00
Verwaltung
- Verfügbar ab
- 01.07.2026
- Ferienimmobilie
- Ja
Häuser zum Mieten im Umkreis von Kennelbach
Häuser zum Mieten im Umkreis von Kennelbach
Häuser zum Mieten in Österreich
Andere Besucher suchen nach...
- Grundstücke kaufen in 3400 Weidlingbach
- Wohnungen kaufen in 4663 Laakirchen
- Häuser in 7471 Rechnitz
- Wohnungen in 2410 Hainburg an der Donau
- Häuser kaufen in 2432 Schwadorf
- Wohnungen kaufen in 3002 Purkersdorf
- Häuser in 3150 Wilhelmsburg
- Wohnungen kaufen in 3470 Engelmannsbrunn
- Grundstücke kaufen im Bezirk Mattersburg
- Grundstücke kaufen im Bezirk Gmunden