Mietkauf in Aussichtslage von Bad Sauerbrunn: Moderne und großzügige Doppelhaushälfte
-
Erstbezug
-
2023
-
sofort
Beschreibung
Sie lieben das Besondere,..... .... schätzen die Natur und möchten doch modern wohnen mit viel Platz für die Familie? Genau hier können Sie all Ihre Wohnträume verwirklichen - direkt in der Kurstadt! In ruhiger Lage von Bad Sauerbrunn warten diese Doppelhäuser auf ihre Bewohner. Bei der Konzeptionierung der Einheiten wurde auf eine optimale Nutzbarkeit geachtet, was sich in praktischen und großzügigen Grundrissen widerspiegelt. Optik, Wohnkomfort und Qualität stehen im Vordergrund. Lichtdurchflutete Wohnräume, drei große Schlafräume, wohnliche Laminatböden, elegantes Feinsteinzeug und hochwertige Sanitäranlagen repräsentieren die qualitätvolle Ausstattung. Die Häuser sind praktischerweise komplett unterkellert. Das Erdgeschoß besteht aus einem großen Wohn-/Esszimmer mit...
Sie lieben das Besondere,.....
.... schätzen die Natur und möchten doch modern wohnen mit viel Platz für die Familie? Genau hier können Sie all Ihre Wohnträume verwirklichen - direkt in der Kurstadt!
In ruhiger Lage von Bad Sauerbrunn warten diese Doppelhäuser auf ihre Bewohner. Bei der Konzeptionierung der Einheiten wurde auf eine optimale Nutzbarkeit geachtet, was sich in praktischen und großzügigen Grundrissen widerspiegelt. Optik, Wohnkomfort und Qualität stehen im Vordergrund.
Lichtdurchflutete Wohnräume, drei große Schlafräume, wohnliche Laminatböden, elegantes Feinsteinzeug und hochwertige Sanitäranlagen repräsentieren die qualitätvolle Ausstattung.
Die Häuser sind praktischerweise komplett unterkellert.
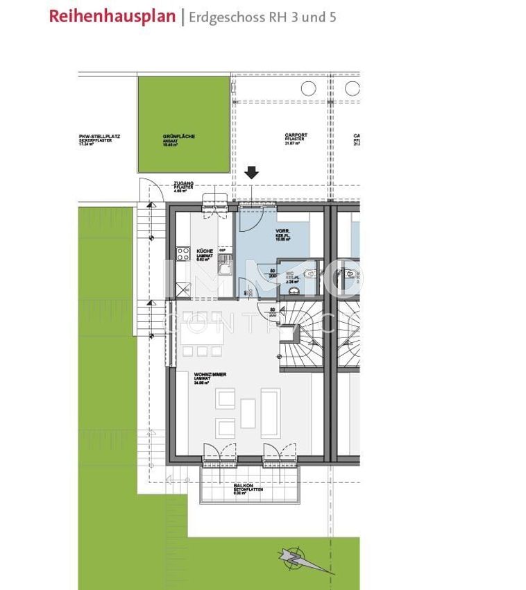
Das Erdgeschoß besteht aus einem großen Wohn-/Esszimmer mit integrierter Küche, Vorzimmer und WC. Im Obergeschoß sind 3 Schlafzimmer, ein großes Bad mit Wanne und Dusche, separates WC und ein Vorraum untergebracht.
Das Kellergeschoß punktet mit viel Stauraum und zusätzlichem Wohnraum in manchen Einheiten.
Geheizt wird mittels Fernwärme - eine Fußbodenheizung sorgt für ein behagliches Raumklima.
Die großen Eigengärten laden zur Erholung vom Alltagsstress ein. Eine Ruheoase für die ganze Familie!
Ihre Autos parken sicher jeweils in einem Carport und auf einem Pkw-Abstellplatz im Freien.
Doppelhaus #3
Das Haus ist nach Osten ausgerichtet und so begrüßen Sie den Tag mit der Morgensonne. Es punktet außerdem mit dem extra Gästezimmer im Kellergeschoss. Durch die leichte Hanglage bietet es Platz für das 22m2 große Zimmer mit großen Fensterflächen und direktem Ausgang auf die Terrasse und zum Garten.
Es handelt sich hierbei um ein freifinanziertes Haus mit Kaufoption:
- Finanzierungsbeitrag € 103.213,29 - Miete € 1.774,43
Vereinbaren Sie noch heute einen unverbindlichen Besichtigungstermin. Ich freue mich, Ihnen dieses traumhafte Projekt näher bringen zu dürfen!
Frau Simone VASICEK 0676 / 841 420 605
Der Immobilienmakler erklärt, dass er – entgegen dem in der Immobilienwirtschaft üblichen Geschäftsgebrauch des Doppelmaklers – einseitig nur für den Vermieter tätig ist.
Infrastruktur / Entfernungen
Gesundheit
Arzt <1.000m
Apotheke <1.000m
Klinik <1.000m
Krankenhaus <8.000m
Kinder & Schulen
Schule <1.000m
Kindergarten <1.500m
Universität <8.000m
Höhere Schule <8.000m
Nahversorgung
Supermarkt <1.500m
Bäckerei <1.000m
Einkaufszentrum <4.500m
Sonstige
Bank <1.000m
Geldautomat <1.000m
Post <3.500m
Polizei <4.500m
Verkehr
Bus <500m
Autobahnanschluss <2.000m
Bahnhof <1.000m
Flughafen <10.000m
Angaben Entfernung Luftlinie / Quelle: OpenStreetMap
Objektdaten
Ausstattung
- Gäste-WC
- Bad mit Dusche
- Bad mit Badewanne
- Bad mit Fenster
- Fliesenboden
- Laminatboden
- Fernwärme Heizung
- Fußbodenheizung
- Ausrichtung Balkon/Terrasse - Südost
- Massiv Bauweise
Zustand
- Zustand
- ERSTBEZUG
- Baujahr
- 2023
- HWB
- 37.7 kWh/m² pro Jahr
- fGEE
- 0.73
Flächen
- Anzahl der Zimmer
- 5
- Anzahl der Badezimmer
- 1
- Anzahl der sep. WCs
- 2
- Anzahl der Balkone
- 1
- Anzahl der Terrassen
- 1
- Wohnfläche
- 148m²
- Grundstücksfläche
- 352m²
- Gartenfläche
- 181m²
- Terrassenfläche
- 1m²
Kosten
- Gesamtmiete Brutto
- € 1.774,43
- Miete
- € 1.388,99
- Betriebskosten
- € 207,76
- Sonstige Kosten
- € 15,00
- Umsatzsteuer
- € 162,68
- Monatl. Gesamtbelastung Brutto
- € 1.774,43
Verwaltung
- Verfügbar ab
- sofort
Häuser zum Mieten im Umkreis von Bad Sauerbrunn
Häuser zum Mieten im Umkreis von Bad Sauerbrunn
Häuser zum Mieten in Österreich
Andere Besucher suchen nach...
- Grundstücke kaufen in 3400 Weidlingbach
- Wohnungen kaufen in 4663 Laakirchen
- Häuser in 7471 Rechnitz
- Wohnungen in 2410 Hainburg an der Donau
- Häuser kaufen in 2432 Schwadorf
- Wohnungen kaufen in 3002 Purkersdorf
- Häuser in 3150 Wilhelmsburg
- Wohnungen kaufen in 3470 Engelmannsbrunn
- Grundstücke kaufen im Bezirk Mattersburg
- Grundstücke kaufen im Bezirk Gmunden