+NÄHE DER FUSSGÄNGERZONE UND DEM BAHNHOF+ STADTVILLA IN MÖDLING
Beschreibung
In guter, ruhiger und zentrale Wohnlage von Mödling steht eine modernisierte Altbauvilla aus dem Jahre 1888 zur Vermietung! Unweit vom Zentrum und dem Bahnhof gelegen, ist diese Villa der Hammer!
Ideal für Familien oder Pendler mit hoher Lebensqualität.
Die Stadtvilla thront auf einem riesigen Grundstück von ca. 911 m²! Die Wohnfläche von rund 250m² verteilt sich auf drei Ebenen und bietet großzügige, lichtdurchflutete Räume mit viel Platz für individuelle Gestaltung. Sie besticht durch ihre historische Architektur, hohen Räumen, gepflegten Parkettböden sowie eine flexible Raumaufteilung.
Die Villa wurde im Jahr 2019 umfassend restauriert und modernisiert. Die Arbeiten umfassten die Innen- und...
In guter, ruhiger und zentrale Wohnlage von Mödling steht eine modernisierte Altbauvilla aus dem Jahre 1888 zur Vermietung! Unweit vom Zentrum und dem Bahnhof gelegen, ist diese Villa der Hammer!
Ideal für Familien oder Pendler mit hoher Lebensqualität.
Die Stadtvilla thront auf einem riesigen Grundstück von ca. 911 m²! Die Wohnfläche von rund 250m² verteilt sich auf drei Ebenen und bietet großzügige, lichtdurchflutete Räume mit viel Platz für individuelle Gestaltung. Sie besticht durch ihre historische Architektur, hohen Räumen, gepflegten Parkettböden sowie eine flexible Raumaufteilung.
Die Villa wurde im Jahr 2019 umfassend restauriert und modernisiert. Die Arbeiten umfassten die Innen- und Außenbereiche sowie die Installation einer zeitgemäßen Küche, neuer Bäder und Toiletten und einer effizienten Heizungsanlage.
Sie eignet sich auch perfekt für Wohnen und Arbeiten unter einem Dach, denn sie verfügt über sieben Zimmer.
Die Räumlichkeiten bestechen durch ihren einzigartigen Charme und ihre beeindruckenden Raumhöhen von über 3,25 Metern. Auf der Rückseite des Hauses erwartet Sie ein wahres Gartenparadies! Ein weitläufiger, idyllischer Garten mit Altbaumbestand, der insbesondere im Sommer vielseitig genutzt werden kann.
Privater Zugang & Parkmöglichkeiten
Der Bahnhof Mödling ist in 5 Gehminuten zu erreichen!!
Perfekt für Pendler.
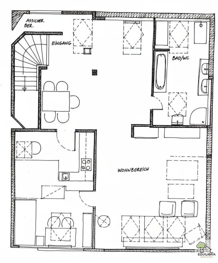
Raumaufteilung:
Erdgeschoss
Vorraum, Garderobe
gr. Zimmer/Esszimmer
Küche (Typ DAN) ist mit hochwertigen Siemens-Geräten ausgestattet, darunter ein Dampfgarer, ein Tellerwärmer und eine amerikanische Gefrier- und Kühlkombination.
Zimmer/Büro
Ausgang zu Garten & Terrasse
Badezimmer/Dusche
Gästetoilette
Obergeschoss
Zwei gr. Zimmer /Großer & kleiner Salon
kl.Zimmer/Büro oder Abstelraum
Badezimmer/Dusche
Toilette
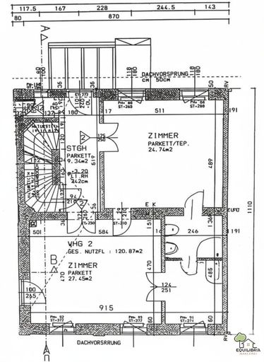
Dachgeschoss (mit Klimaanlage)
Das Dachgeschoss ist ein wahres Raumwunder! Es lässt sich perfekt als Schlafbereich oder als eigene Wohneinheit nutzen – und ist damit der ideale Ort für ihre Teenagerkinder.
Zimmer/Galerie
gr. Zimmer/Schlafzimmer mit raumhohen Einbauschränken
kl.Zimmer/Schrankraum oder Schlafzimmer
Badezimmer mit Badewanne und Dusche/WC
Alle Räumlichkeiten sind mit einem TV-Anschluss (Satelliten- und Kabelanschluss) ausgestattet.
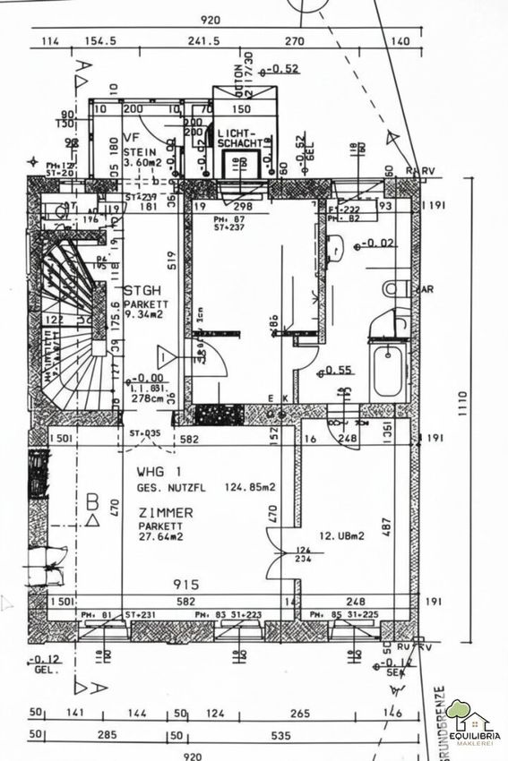
KELLER (teilunterkellert)
- möglicher Weinkeller ?
- Technikraum
INTERESSE?
Dann ersuche Ich Sie um Anfrage direkt über diese Immobilienplattform unter Angabe von
- Namen
- Telefonnummer
- E-Mail-Adresse
Für weitere Informationen und die Vereinbarung eines Besichtigungstermins steht Ihnen Herr Martin LOIBELSBERGER - gerne auch am Wochenende - zur Verfügung!
Ich freue mich von Ihnen zu hören!
Der Immobilienmakler erklärt, dass er – entgegen dem in der Immobilienwirtschaft üblichen Geschäftsgebrauch des Doppelmaklers – einseitig nur für den Vermieter tätig ist.
Infrastruktur / Entfernungen
Gesundheit
Arzt <500m
Apotheke <500m
Klinik <1.000m
Krankenhaus <1.000m
Kinder & Schulen
Schule <1.000m
Kindergarten <500m
Höhere Schule <1.500m
Nahversorgung
Supermarkt <500m
Bäckerei <500m
Einkaufszentrum <500m
Sonstige
Bank <500m
Geldautomat <500m
Post <500m
Polizei <500m
Verkehr
Bus <500m
U-Bahn <5.500m
Straßenbahn <4.500m
Bahnhof <500m
Autobahnanschluss <3.000m
Angaben Entfernung Luftlinie / Quelle: OpenStreetMap
Objektdaten
Ausstattung
- Kabel/SAT-TV
- Bad mit Dusche
- Bad mit Badewanne
- Bad mit Fenster
- Einbauküche
- Fliesenboden
- Parkettboden
- Zentralheizung
- Befeuerung mit Gas
- Ausrichtung Balkon/Terrasse - Süd
- Alarmanlage
Zustand
- HWB
- 104.9 kWh/m² pro Jahr
- Klasse HWB
- C
- fGEE
- 1.77
- Klasse fGEE
- D
Flächen
- Anzahl der Zimmer
- 7
- Anzahl der Badezimmer
- 3
- Anzahl der sep. WCs
- 4
- Anzahl der Terrassen
- 1
- Stellplätze
- 2
- Wohnfläche
- 250m²
- Grundstücksfläche
- 911m²
- Terrassenfläche
- 1m²
Kosten
- Gesamtmiete Brutto
- € 3.828,00
- Miete
- € 3.250,00
- Betriebskosten
- € 230,00
- Umsatzsteuer
- € 348,00
- Monatl. Gesamtbelastung Brutto
- € 3.828,00
Verwaltung
- Mietdauer
- bis 5,0 Jahre
Häuser zum Mieten im Umkreis von Mödling
Häuser zum Mieten im Umkreis von Mödling
Häuser zum Mieten in Österreich
Andere Besucher suchen nach...
- Grundstücke kaufen in 3400 Weidlingbach
- Wohnungen kaufen in 4663 Laakirchen
- Häuser in 7471 Rechnitz
- Wohnungen in 2410 Hainburg an der Donau
- Häuser kaufen in 2432 Schwadorf
- Wohnungen kaufen in 3002 Purkersdorf
- Häuser in 3150 Wilhelmsburg
- Wohnungen kaufen in 3470 Engelmannsbrunn
- Grundstücke kaufen im Bezirk Mattersburg
- Grundstücke kaufen im Bezirk Gmunden