RUHELAGE - GROSSZÜGIGE ALTBAUVILLA MIT GARTEN UND TERRASSE
€ 4.490 / Monat
€ 19 / m²
1190 Wien
-
sofort
Beschreibung
RUHELAGE - GROSSZÜGIGE ALTBAUVILLA MIT GARTEN UND TERRASSE Diese charmante Villa befindet sich am Ende der Sieveringer Straße, in der Nähe des Wienerwaldes und bietet hohe Lebensqualität in ruhiger Lage. Bei der umfangreichen Renovierung wurde darauf geachtet, den Charme des Hauses zu erhalten und perfekt mit den Annehmlichkeiten modernen Wohnkomforts zu verbinden. Die Wohnfläche von 240m² gliedert sich in: Erdgeschoss: Windfang, Vorzimmer, Wohnzimmer, Wohnküche mit Speisekammer, Wintergarten, Schlafzimmer, Badezimmer mit Badewanne, Waschtisch, Bidet und WC, separates WC, Terrasse mit Ausgang in den Garten. Obergeschoss: Galerie, 4 Schlafzimmer, 3 Bäder mit Badewanne, Dusche, Bidet und WC, 1 WC extra Abstellraum, eine...
RUHELAGE - GROSSZÜGIGE ALTBAUVILLA MIT GARTEN UND TERRASSE
Diese charmante Villa befindet sich am Ende der Sieveringer Straße, in der Nähe des Wienerwaldes und bietet hohe Lebensqualität in ruhiger Lage.
Bei der umfangreichen Renovierung wurde darauf geachtet, den Charme des Hauses zu erhalten und perfekt mit den Annehmlichkeiten modernen Wohnkomforts zu verbinden.
Die Wohnfläche von 240m² gliedert sich in:
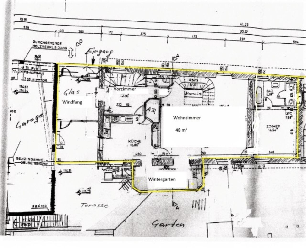
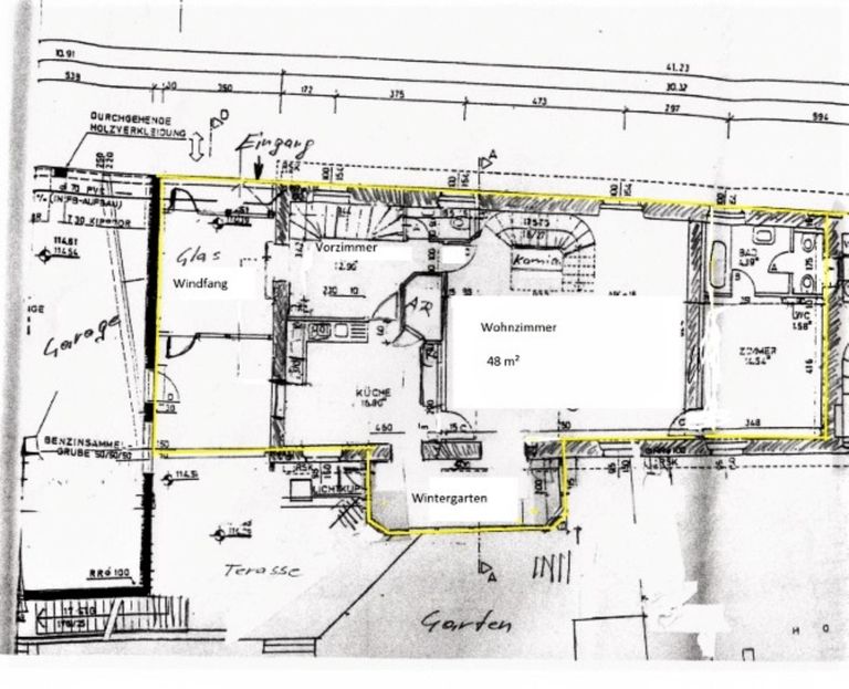
Erdgeschoss: Windfang, Vorzimmer, Wohnzimmer, Wohnküche mit Speisekammer, Wintergarten,
Schlafzimmer, Badezimmer mit Badewanne, Waschtisch, Bidet und WC, separates WC,
Terrasse mit Ausgang in den Garten.
Obergeschoss: Galerie, 4 Schlafzimmer, 3 Bäder mit Badewanne, Dusche, Bidet und WC, 1 WC extra
Abstellraum, eine ca. 60 m² große Terrasse mit Zugang zum Garten.
Souterrain: Wohnraum mit integrierter Küche, Badezimmer mit Badewanne, WC
Keller: Vorraum, Dampfbad, Sauna, Dusche, Ruheraum, WC
Diese hochwertig sanierte Altbauvilla präsentiert die gehobene Ausstattung mit Kamin im Wohnzimmer, Küche komplett mit allen Geräten, Wintergarten mit Fußbodenheizung, Parkettböden, Fußbodenheizung und Radiatoren, eine ca. 60m² große, südseitige ausgerichtete Terrasse
im Obergeschoß mit Zugang in den ca. 200 m² großen Garten, in dem sich eine Gartenhütte befindet,
Einliegerwohnung mit eigenem Eingang und Zugang zum Garten, Alarmanlage, Videoüberwachung, Sat-Anlage, Safe.
Weiteres stehen zwei Garagenabstellplätze zur Verfügung.
Der monatliche Mietzins beinhaltet: Nettomiete und Umsatzsteuer.
Verbrauchskosten wie Strom- und Heizkosten, Wasser, Müll, Haushaltsabgabe, Internet,
Telefon, Haushaltsversicherung werden gesondert mit dem jeweiligen Anbieter verrechnet.
Um Sie bemüht:
Fr. Bruckner, Tel.: 0664/1000944, Email: erna.bruckner@smkimmo-bruckner.at
Es wird darauf hingewiesen, dass die angeführten Daten, ausschließliche auf Informationen
des Verkäufers oder Dritter (z.B. Behörden) beruhen, so dass für die Richtigkeit keine
Gewähr übernommen werden wird!
Auf Grund der gesetzlichen Nachweispflicht gegenüber dem Eigentümer bitten wir Sie um Verständnis, dass wir nur Anfragen mit vollständigem Namen, korrekter Telefonnummer und E-Mailadresse bearbeiten können. Ihre Daten werden selbstverständlich vertraulich behandelt.
Diese charmante Villa befindet sich am Ende der Sieveringer Straße, in der Nähe des Wienerwaldes und bietet hohe Lebensqualität in ruhiger Lage.
Bei der umfangreichen Renovierung wurde darauf geachtet, den Charme des Hauses zu erhalten und perfekt mit den Annehmlichkeiten modernen Wohnkomforts zu verbinden.
Die Wohnfläche von 240m² gliedert sich in:
Erdgeschoss: Windfang, Vorzimmer, Wohnzimmer, Wohnküche mit Speisekammer, Wintergarten,
Schlafzimmer, Badezimmer mit Badewanne, Waschtisch, Bidet und WC, separates WC,
Terrasse mit Ausgang in den Garten.
Obergeschoss: Galerie, 4 Schlafzimmer, 3 Bäder mit Badewanne, Dusche, Bidet und WC, 1 WC extra
Abstellraum, eine ca. 60 m² große Terrasse mit Zugang zum Garten.
Souterrain: Wohnraum mit integrierter Küche, Badezimmer mit Badewanne, WC
Keller: Vorraum, Dampfbad, Sauna, Dusche, Ruheraum, WC
Diese hochwertig sanierte Altbauvilla präsentiert die gehobene Ausstattung mit Kamin im Wohnzimmer, Küche komplett mit allen Geräten, Wintergarten mit Fußbodenheizung, Parkettböden, Fußbodenheizung und Radiatoren, eine ca. 60m² große, südseitige ausgerichtete Terrasse
im Obergeschoß mit Zugang in den ca. 200 m² großen Garten, in dem sich eine Gartenhütte befindet,
Einliegerwohnung mit eigenem Eingang und Zugang zum Garten, Alarmanlage, Videoüberwachung, Sat-Anlage, Safe.
Weiteres stehen zwei Garagenabstellplätze zur Verfügung.
Der monatliche Mietzins beinhaltet: Nettomiete und Umsatzsteuer.
Verbrauchskosten wie Strom- und Heizkosten, Wasser, Müll, Haushaltsabgabe, Internet,
Telefon, Haushaltsversicherung werden gesondert mit dem jeweiligen Anbieter verrechnet.
Um Sie bemüht:
Fr. Bruckner, Tel.: 0664/1000944, Email: erna.bruckner@smkimmo-bruckner.at
Es wird darauf hingewiesen, dass die angeführten Daten, ausschließliche auf Informationen
des Verkäufers oder Dritter (z.B. Behörden) beruhen, so dass für die Richtigkeit keine
Gewähr übernommen werden wird!
Auf Grund der gesetzlichen Nachweispflicht gegenüber dem Eigentümer bitten wir Sie um Verständnis, dass wir nur Anfragen mit vollständigem Namen, korrekter Telefonnummer und E-Mailadresse bearbeiten können. Ihre Daten werden selbstverständlich vertraulich behandelt.
Objektdaten
Ausstattung
- WG geeignet
- Kamin
- Gartennutzung
- Kabel/SAT-TV
- Sauna
- Wintergarten
- Unterkellert
- Zentralheizung
- Befeuerung mit Gas
- Alarmanlage
- Massiv Bauweise
- Bad
- Zeigelmassiv
- Boden
- Bus
- Geschirrspüler
- Glaskeramikfeld
- Grüne Lage
- Kamin
- Küche Möbliert
- Küche
- Kabel/SAT-TV
- Alarmanlage
- Sonnige Lage
- Stadtrand
- Straßenbahn
- Tresor
- Trockner
- Unterkellert
- Villengegend
- Waldrandlage
- Waschmaschine
- Wintergarten
- Zentralheizung mit Gas
- Kamin
- Kabel/SAT-TV
- Alarmanlage
- Unterkellert
- Wintergarten
Zustand
- Zustand
- GEPFLEGT
- Baujahr
- 1900
- Alter
- ALTBAU
Flächen
- Anzahl der Zimmer
- 7
- Anzahl der Badezimmer
- 5
- Anzahl der sep. WCs
- 7
- Anzahl der Terrassen
- 60
- Stellplätze
- 2
- Anzahl der Inliegerwohnungen
- 1
- Wohnfläche
- 240m²
- Grundstücksfläche
- 500m²
- Terrassenfläche
- 60m²
Kosten
- Kaltmiete
- € 4.490,00
- Kaution
- € 13.500,00
Verwaltung
- Verfügbar ab
- sofort
Häuser zum Mieten in Österreich
Häuser zum Mieten in Österreich
Häuser zum Mieten in Österreich
Andere Besucher suchen nach...
- Grundstücke kaufen in 3400 Weidlingbach
- Wohnungen kaufen in 4663 Laakirchen
- Häuser in 7471 Rechnitz
- Wohnungen in 2410 Hainburg an der Donau
- Häuser kaufen in 2432 Schwadorf
- Wohnungen kaufen in 3002 Purkersdorf
- Häuser in 3150 Wilhelmsburg
- Wohnungen kaufen in 3470 Engelmannsbrunn
- Grundstücke kaufen im Bezirk Mattersburg
- Grundstücke kaufen im Bezirk Gmunden