Das älteste Bordell Europas sucht neuen Pächter
-
sofort
Beschreibung
Wir bieten Ihnen die einmalige Chance, ein Stück Geschichte zu übernehmen: Das älteste Bordell Österreichs – und möglicherweise Europas – sucht einen neuen Pächter. Dieses außergewöhnliche Objekt vereint historische Bedeutung, architektonischen Charme und modernste Ausstattung in einem beeindruckenden Gesamtensemble.
Das Gebäude aus dem Jahr 1477 erzählt auf jeder Etage seine eigene Geschichte. Mit seinen ehrwürdigen Mauern, den gotischen Gewölben und dem einzigartigen Ambiente zählt es zu den bedeutendsten historischen Liegenschaften seiner Art. In den letzten Jahren wurde das gesamte Objekt umfassend generalsaniert und technisch auf den neuesten Stand gebracht – dabei blieb der historische Charakter vollständig erhalten. So entstand ein...
Wir bieten Ihnen die einmalige Chance, ein Stück Geschichte zu übernehmen: Das älteste Bordell Österreichs – und möglicherweise Europas – sucht einen neuen Pächter. Dieses außergewöhnliche Objekt vereint historische Bedeutung, architektonischen Charme und modernste Ausstattung in einem beeindruckenden Gesamtensemble.
Das Gebäude aus dem Jahr 1477 erzählt auf jeder Etage seine eigene Geschichte. Mit seinen ehrwürdigen Mauern, den gotischen Gewölben und dem einzigartigen Ambiente zählt es zu den bedeutendsten historischen Liegenschaften seiner Art. In den letzten Jahren wurde das gesamte Objekt umfassend generalsaniert und technisch auf den neuesten Stand gebracht – dabei blieb der historische Charakter vollständig erhalten. So entstand ein harmonisches Zusammenspiel aus mittelalterlicher Atmosphäre und zeitgemäßem Komfort, das seinesgleichen sucht.
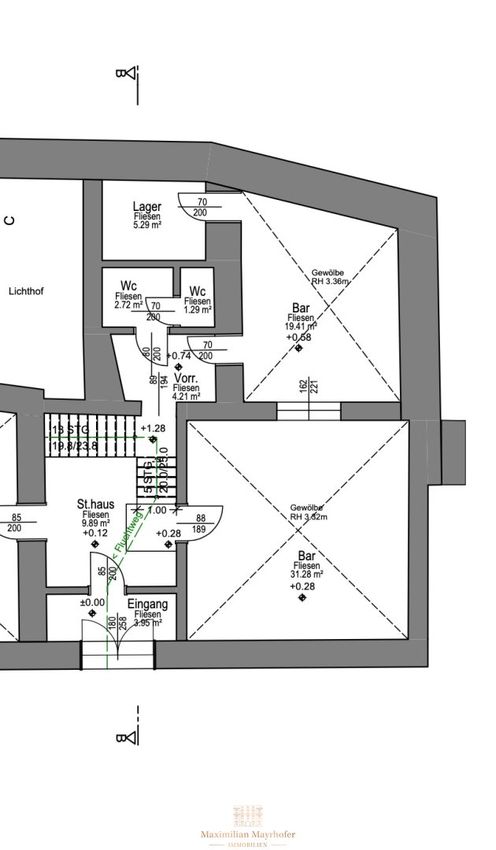
Im Obergeschoss erwarten Sie elf stilvoll gestaltete Zimmer, die großteils mit Dusche, Waschbecken und Whirlpool ausgestattet sind. Ergänzt wird dieses Niveau durch private Rückzugsräume für Betreiber und Mitarbeiter. Der großzügige Barbereich im Erdgeschoss begeistert mit seiner voll ausgestatteten Theke, der eindrucksvollen Animierstange und dem imposanten Kreuzgewölbe – ein Ambiente, das Gäste wie Betreiber gleichermaßen in seinen Bann zieht.
Ergänzend stehen mehrere Nebenräume, drei WCs, ein Schminkraum, Abstellflächen und eine Waschküche zur Verfügung. Sämtliche Installationen, Beleuchtungen und Belüftungen wurden im Zuge der Sanierung erneuert, wodurch ein sofortiger Betrieb ohne zusätzliche Investitionen möglich ist.
Alle erforderlichen behördlichen Genehmigungen liegen vor und sind aktuell. Auf Wunsch kann zusätzlich eine Betreiberwohnung im selben Gebäude sowie ein weiterer Geschäfts- oder Veranstaltungsraum angemietet werden.
Dieses Objekt bietet nicht nur die Möglichkeit, eine geschichtsträchtige Adresse zu übernehmen, sondern auch die Chance, sie mit einem neuen, zukunftsorientierten Konzept fortzuführen.
Was diese Immobilie auszeichnet:
Historisches Gebäude aus dem Jahr 1477 – das älteste, noch aktive, Bordell Europas
Vollständig generalsaniert und modern ausgestattet
11 stilvolle Damenzimmer mit modernen Sanitäranlagen
Großzügiger Barbereich mit Kreuzgewölbe und Animierstange
Mehrere Nebenräume, Schminkraum, Abstellflächen und Waschküche
Alle Genehmigungen aufrecht, sofort betriebsbereit
Optional: Betreiberwohnung und zusätzlicher Geschäftsraum im selben Haus
Einzigartige Atmosphäre mit geschichtsträchtigem Flair
Lage:
Die Liegenschaft befindet sich in der Badgasse, einer der traditionsreichsten Straßen der Innenstadt – nur wenige Schritte vom Zentrum entfernt und dennoch in einer angenehm unaufdringlichen Lage. Diese Kombination aus zentraler Erreichbarkeit und diskretem Umfeld bietet ideale Voraussetzungen für den Bordellbetrieb.
Die Badgasse ist verkehrstechnisch hervorragend angebunden, sowohl für lokale Stammkundschaft als auch für Gäste aus dem weiteren Umland. In unmittelbarer Nähe finden sich öffentliche Parkmöglichkeiten, gastronomische Betriebe und Hotels – Faktoren, die einen kontinuierlichen Gästefluss begünstigen.
Durch die jahrzehntelange Nutzung des Hauses in dieser Funktion ist die Adresse überregional bekannt und genießt einen entsprechend hohen Wiedererkennungswert. In Verbindung mit der kulturellen und touristischen Bedeutung der Stadt ergibt sich daraus ein hervorragendes wirtschaftliches Umfeld für eine seriöse und erfolgreiche Weiterführung des Betriebes.
Hinweis zu den Übernahmekonditionen:
Das Lokal wird ablösefrei angeboten. Im Rahmen der Übernahme sind jedoch folgende Anfangsinvestitionen zu berücksichtigen, welche fix und nicht verhandelbar sind:
Gesamtmiete: € 5.160,– (inkl. MwSt. und Betriebskosten)
Kaution: € 15.000,–
Provision: € 15.480,– (inkl. 20 % USt.)
Die Vergabe erfolgt ausschließlich an branchenerfahrene Interessenten, die in der Lage sind, die genannten Anfangsinvestitionen zu leisten und einen ordnungsgemäßen Betrieb sicherzustellen.
Seitens des Verpächters wird ausschließlich die Liegenschaft samt bestehender, umfassender Ausstattung bereitgestellt. Eine betriebsbezogene Beratung, Unterstützung oder Mitwirkung erfolgt nicht.
Diese Konditionen bilden die verbindliche Grundlage für eine allfällige Anmietung bzw. Übernahme.
Wir weisen darauf hin, dass zwischen dem Vermittler und dem zu vermittelnden Dritten ein familiäres oder wirtschaftliches Naheverhältnis besteht.
Der Vermittler ist als Doppelmakler tätig.
Neben unserer Maklertätigkeit vermitteln wir auf Wunsch maßgeschneiderte Finanzierungslösungen sowie hochwertige Fertighäuser zur Realisierung Ihres Neubauvorhabens.
Maximilian Mayrhofer - Ihr Immobilienpartner mit Handschlagqualität!
www.maximilian-mayrhofer.at | info@maximilian-mayrhofer.at | Mayrhofer GmbH (FN597782t)
Unverbindliches, freibleibendes Angebot. Angaben basieren auf Informationen des Abgebers und erfolgen ohne Gewähr. Irrtümer, Druckfehler und Änderungen vorbehalten. Provision ausschließlich im Erfolgsfall.
Infrastruktur / Entfernungen
Gesundheit
Arzt <500m
Apotheke <500m
Klinik <1.000m
Krankenhaus <2.000m
Kinder & Schulen
Schule <500m
Kindergarten <500m
Universität <500m
Höhere Schule <1.000m
Nahversorgung
Supermarkt <500m
Bäckerei <500m
Einkaufszentrum <1.000m
Sonstige
Bank <500m
Geldautomat <500m
Post <1.000m
Polizei <500m
Verkehr
Bus <500m
Bahnhof <1.000m
Angaben Entfernung Luftlinie / Quelle: OpenStreetMap
Objektdaten
Ausstattung
- Kabel/SAT-TV
- Wasch-/Trockenraum
- Gäste-WC
- Bad mit Pissoir
- Einbauküche
- Zentralheizung
- Befeuerung mit Gas
- Alarmanlage
Zustand
- Zustand
- MODERNISIERT
- Baujahr
- 1477
- Alter
- ALTBAU
- HWB
- 392 kWh/m² pro Jahr
- fGEE
- 3.39
Flächen
- Anzahl der Zimmer
- 11
- Nutzfläche
- 325m²
Kosten
- Gesamtmiete Brutto
- € 5.160,00
- Kaution
- € 15.000,00
- Miete
- € 4.000,00
- Betriebskosten
- € 300,00
- Umsatzsteuer
- € 860,00
Verwaltung
- Verfügbar ab
- sofort
Andere Besucher suchen nach...
- Grundstücke kaufen in 3400 Weidlingbach
- Wohnungen kaufen in 4663 Laakirchen
- Häuser in 7471 Rechnitz
- Wohnungen in 2410 Hainburg an der Donau
- Häuser kaufen in 2432 Schwadorf
- Wohnungen kaufen in 3002 Purkersdorf
- Häuser in 3150 Wilhelmsburg
- Wohnungen kaufen in 3470 Engelmannsbrunn
- Grundstücke kaufen im Bezirk Mattersburg
- Grundstücke kaufen im Bezirk Gmunden