Historische Villa in Hietzing
€ 6.600 / Monat
€ 9 / m²
1130 Wien
Beschreibung
Im traditionsreichen 13. Bezirk kommt eine außergewöhnliche Liegenschaft aus dem Jahr 1928 zur Vermietung. Die Villa verbindet den Charme klassischer Wiener Architektur mit einem weitläufigen, parkähnlichen Grundstück – eine echte Besonderheit im begehrten Hietzinger Wohnumfeld. Die repräsentative Liegenschaft zeigt die typische Villenarchitektur der Zwischenkriegszeit und vermittelt ein Wohngefühl, das Eleganz und Großzügigkeit harmonisch vereint. Hohe, lichtdurchflutete Räume, edler Fischgrätparkett, Stuckverzierungen und klassische Holzkastenfenster unterstreichen den historischen Charakter des Hauses. Flächenaufstellung – Gesamt ca. 730 m² - Souterrain: ca. 213 m² - Hochparterre: ca. 212 m² - Obergeschoss: ca. 156 m² - Dachgeschoss: ca. 148 m² Raumaufteilung & Ausstattung: - großzügige...
Im traditionsreichen 13. Bezirk kommt eine außergewöhnliche Liegenschaft aus dem Jahr 1928 zur Vermietung. Die Villa verbindet den Charme klassischer Wiener Architektur mit einem weitläufigen, parkähnlichen Grundstück – eine echte Besonderheit im begehrten Hietzinger Wohnumfeld.
Die repräsentative Liegenschaft zeigt die typische Villenarchitektur der Zwischenkriegszeit und vermittelt ein Wohngefühl, das Eleganz und Großzügigkeit harmonisch vereint. Hohe, lichtdurchflutete Räume, edler Fischgrätparkett, Stuckverzierungen und klassische Holzkastenfenster unterstreichen den historischen Charakter des Hauses.
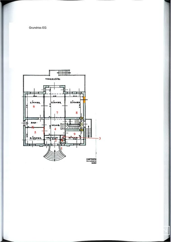
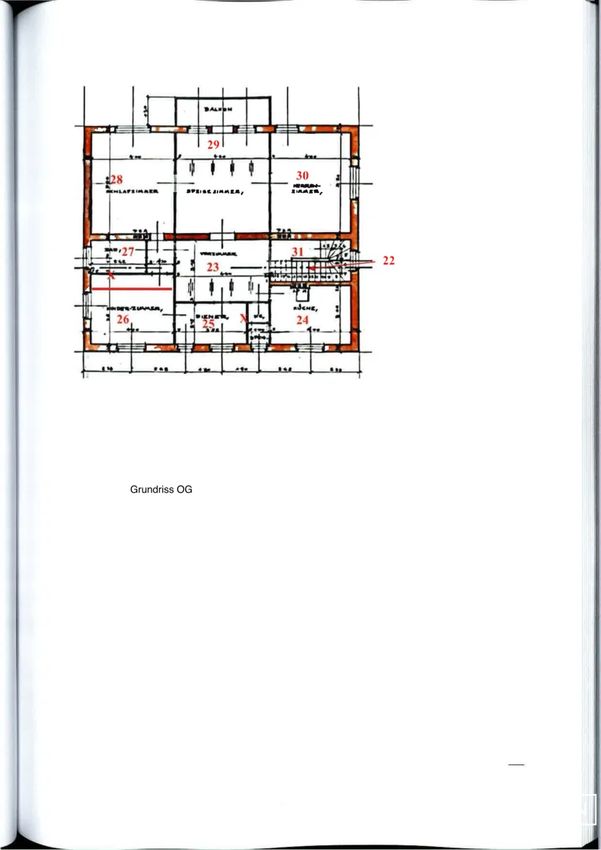
Flächenaufstellung – Gesamt ca. 730 m²
- Souterrain: ca. 213 m²
- Hochparterre: ca. 212 m²
- Obergeschoss: ca. 156 m²
- Dachgeschoss: ca. 148 m²
Raumaufteilung & Ausstattung:
- großzügige Wohn- und Gesellschaftsräume mit direktem Zugang zu Garten und Terrassen
- mehrere Schlafzimmer, Gästezimmer sowie vielseitig nutzbare Nebenräume in den oberen Etagen
- moderne Badezimmer und Sanitärbereiche in hochwertiger Ausführung
- Souterrain mit Weinkeller, Hauswirtschaftsbereich und direkter Verbindung zur Garage
- architektonische Besonderheiten wie Erker, Flügeltüren und helle Raumachsen
Besonderheiten auf einen Blick:
- prachtvolle Villa mit über 90-jähriger Geschichte
- großzügige Wohn- und Repräsentationsflächen auf ca. 730 m²
- parkähnliches Grundstück mit 2.112 m² und altem Baumbestand
- Souterrain mit Weinkeller, Gäste- und Wirtschaftsräumen
- exklusive Lage in einer der prestigeträchtigsten Wohngegenden Wiens
Lage:
Hietzing zählt seit jeher zu den feinsten Adressen Wiens. Schon zur Kaiserzeit zog das Viertel den Adel, Diplomaten und das großbürgerliche Wien an – nicht zuletzt aufgrund der unmittelbaren Nähe zu Schloss Schönbrunn, der Sommerresidenz der Habsburger.
Bis heute verkörpert Hietzing ein Wohngefühl, das Tradition, Diskretion und Eleganz vereint. Villen aus der Jahrhundertwende, historische Residenzen und Botschaftsvillen prägen die Umgebung. Hier entsteht ein unvergleichliches Flair, das Ruhe und Exklusivität bietet und zugleich die Nähe zur pulsierenden Innenstadt wahrt.
Lebensqualität & Infrastruktur:
- renommierte Schulen (inkl. internationale Einrichtungen), Ärzte und Nahversorgung in unmittelbarer Nähe
- ein vielfältiges Angebot an feiner Gastronomie, Cafés und traditionellen Wiener Restaurants
- zahlreiche Grünanlagen wie der Lainzer Tiergarten oder der Schönbrunner Schlosspark nur wenige Minuten entfernt
Anbindung:
- Straßenbahn, Bus und die U-Bahnlinie U4 fußläufig erreichbar
- Wiener Innenstadt in ca. 15 Minuten
- Flughafen Wien-Schwechat in ca. 35 Minuten
Bei einem positiven Mietabschluss beträgt unsere Provision 2 Brutto Monatsmieten plus USt.
Die repräsentative Liegenschaft zeigt die typische Villenarchitektur der Zwischenkriegszeit und vermittelt ein Wohngefühl, das Eleganz und Großzügigkeit harmonisch vereint. Hohe, lichtdurchflutete Räume, edler Fischgrätparkett, Stuckverzierungen und klassische Holzkastenfenster unterstreichen den historischen Charakter des Hauses.
Flächenaufstellung – Gesamt ca. 730 m²
- Souterrain: ca. 213 m²
- Hochparterre: ca. 212 m²
- Obergeschoss: ca. 156 m²
- Dachgeschoss: ca. 148 m²
Raumaufteilung & Ausstattung:
- großzügige Wohn- und Gesellschaftsräume mit direktem Zugang zu Garten und Terrassen
- mehrere Schlafzimmer, Gästezimmer sowie vielseitig nutzbare Nebenräume in den oberen Etagen
- moderne Badezimmer und Sanitärbereiche in hochwertiger Ausführung
- Souterrain mit Weinkeller, Hauswirtschaftsbereich und direkter Verbindung zur Garage
- architektonische Besonderheiten wie Erker, Flügeltüren und helle Raumachsen
Besonderheiten auf einen Blick:
- prachtvolle Villa mit über 90-jähriger Geschichte
- großzügige Wohn- und Repräsentationsflächen auf ca. 730 m²
- parkähnliches Grundstück mit 2.112 m² und altem Baumbestand
- Souterrain mit Weinkeller, Gäste- und Wirtschaftsräumen
- exklusive Lage in einer der prestigeträchtigsten Wohngegenden Wiens
Lage:
Hietzing zählt seit jeher zu den feinsten Adressen Wiens. Schon zur Kaiserzeit zog das Viertel den Adel, Diplomaten und das großbürgerliche Wien an – nicht zuletzt aufgrund der unmittelbaren Nähe zu Schloss Schönbrunn, der Sommerresidenz der Habsburger.
Bis heute verkörpert Hietzing ein Wohngefühl, das Tradition, Diskretion und Eleganz vereint. Villen aus der Jahrhundertwende, historische Residenzen und Botschaftsvillen prägen die Umgebung. Hier entsteht ein unvergleichliches Flair, das Ruhe und Exklusivität bietet und zugleich die Nähe zur pulsierenden Innenstadt wahrt.
Lebensqualität & Infrastruktur:
- renommierte Schulen (inkl. internationale Einrichtungen), Ärzte und Nahversorgung in unmittelbarer Nähe
- ein vielfältiges Angebot an feiner Gastronomie, Cafés und traditionellen Wiener Restaurants
- zahlreiche Grünanlagen wie der Lainzer Tiergarten oder der Schönbrunner Schlosspark nur wenige Minuten entfernt
Anbindung:
- Straßenbahn, Bus und die U-Bahnlinie U4 fußläufig erreichbar
- Wiener Innenstadt in ca. 15 Minuten
- Flughafen Wien-Schwechat in ca. 35 Minuten
Bei einem positiven Mietabschluss beträgt unsere Provision 2 Brutto Monatsmieten plus USt.
Objektdaten
Zustand
- Baujahr
- ca. 1928
Flächen
- Anzahl der Zimmer
- 14.5
- Anzahl der Badezimmer
- 3
- Anzahl der sep. WCs
- 4
- Anzahl der Balkone
- 1
- Anzahl der Terrassen
- 1
- Stellplätze
- 1
- Wohnfläche
- 730m²
- Grundstücksfläche
- 2.112m²
- Terrassenfläche
- 1m²
Kosten
- Kaltmiete
- € 6.600,00
- Kaution
- € 19.800,00
Häuser zum Mieten in Österreich
Häuser zum Mieten in Österreich
Häuser zum Mieten in Österreich
Andere Besucher suchen nach...
- Grundstücke kaufen in 3400 Weidlingbach
- Wohnungen kaufen in 4663 Laakirchen
- Häuser in 7471 Rechnitz
- Wohnungen in 2410 Hainburg an der Donau
- Häuser kaufen in 2432 Schwadorf
- Wohnungen kaufen in 3002 Purkersdorf
- Häuser in 3150 Wilhelmsburg
- Wohnungen kaufen in 3470 Engelmannsbrunn
- Grundstücke kaufen im Bezirk Mattersburg
- Grundstücke kaufen im Bezirk Gmunden