Ideale Gemeinschaftspraxis für medizinische und therapeutische Dienstleistungen – ruhig gelegen mitten im Grünen!
€ 2.085 / Monat
€ 13 / m²
4730 Waizenkirchen
-
2024
-
ab sofort
Beschreibung
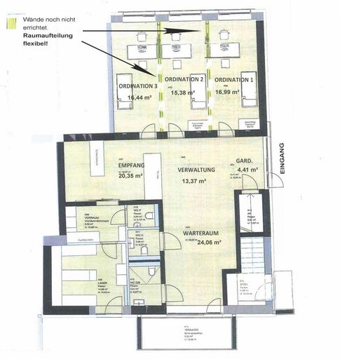
Ideale Gemeinschaftspraxis für medizinische und therapeutische Dienstleistungen! Exklusiv und hochwertig präsentieren sich die neu errichteten Praxis-Büro-Räumlichkeiten unweit des Ortszentrums von Waizenkirchen in einer ruhigen Dorfrandlage. Die Räumlichkeiten sind besonders geeignet medizinische und therapeutische Dienstleistungen, als Arztpraxis, Coaching, Workshops, Gruppentherapie sowie generell als Büro- oder Kanzleiräume. Der Empfang und Wartebereich ist modern und ansprechend gestaltet. Für Ihre Kunden und Patienten sowie Mitarbeiter steht auch ein sehr attraktiv gestalteter Außenbereich mit Terrasse zur Verfügung. Sie werden sich wohlfühlen! Die Raumaufteilung sowie andere Gestaltungselemente sind in Teilbereichen noch flexibel gestaltbar. Für Fragen steht Ihnen unsere Ansprechpartner gerne zur Verfügung! Gerne könne Sie...
Ideale Gemeinschaftspraxis für medizinische und therapeutische Dienstleistungen!
Exklusiv und hochwertig präsentieren sich die neu errichteten Praxis-Büro-Räumlichkeiten unweit
des Ortszentrums von Waizenkirchen in einer ruhigen Dorfrandlage.
Die Räumlichkeiten sind besonders geeignet medizinische und therapeutische Dienstleistungen,
als Arztpraxis, Coaching, Workshops, Gruppentherapie sowie generell als Büro- oder Kanzleiräume.
Der Empfang und Wartebereich ist modern und ansprechend gestaltet. Für Ihre Kunden und Patienten
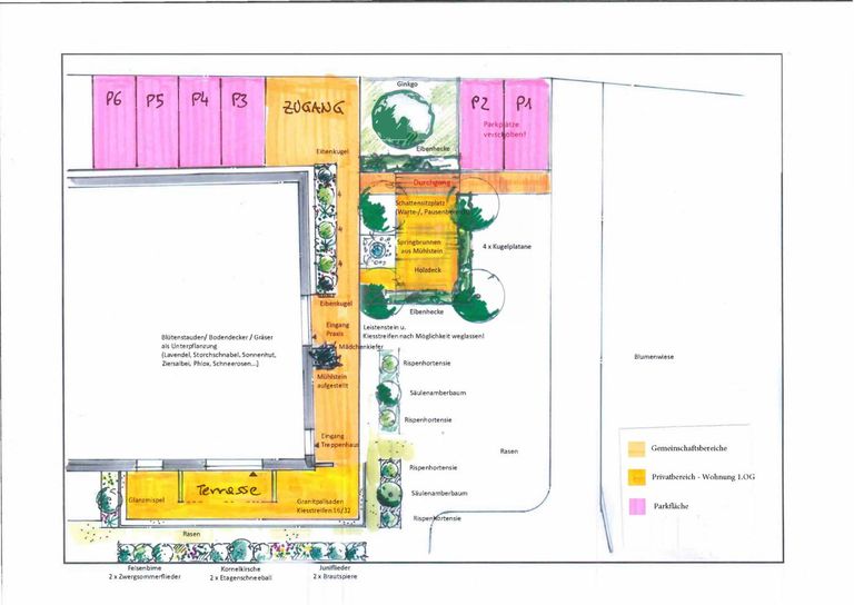
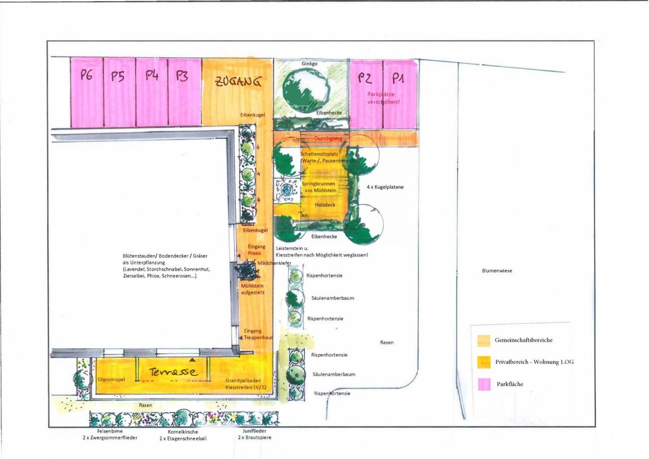
sowie Mitarbeiter steht auch ein sehr attraktiv gestalteter Außenbereich mit Terrasse zur Verfügung.
Sie werden sich wohlfühlen!
Die Raumaufteilung sowie andere Gestaltungselemente sind in Teilbereichen noch flexibel gestaltbar.
Für Fragen steht Ihnen unsere Ansprechpartner gerne zur Verfügung!
Gerne könne Sie unverbindlich einen Besichtigungstermin vereinbaren.
BITTE BEACHTEN SIE, dass wir aufgrund der Nachweispflicht gegenüber dem Eigentümer nur Anfragen mit vollständiger Angabe des Namens,
der Wohnadresse sowie der Telefonnummer bearbeiten können. Gerne senden wir Ihnen ein kostenloses Detailangebot mit weiteren Informationen zu.
Unverbindliche Unterlagen:
Die angegebenen Informationen sind nach bestem Wissen erstellt, Druck- bzw. Redaktionsfehler oder Irrtümer vorbehalten.
Für Angaben, Auskünfte und Flächen, die uns von Eigentümerseite bzw. Dritten zur Verfügung gestellt wurden, können wir keine Haftung übernehmen.
Exklusiv und hochwertig präsentieren sich die neu errichteten Praxis-Büro-Räumlichkeiten unweit
des Ortszentrums von Waizenkirchen in einer ruhigen Dorfrandlage.
Die Räumlichkeiten sind besonders geeignet medizinische und therapeutische Dienstleistungen,
als Arztpraxis, Coaching, Workshops, Gruppentherapie sowie generell als Büro- oder Kanzleiräume.
Der Empfang und Wartebereich ist modern und ansprechend gestaltet. Für Ihre Kunden und Patienten
sowie Mitarbeiter steht auch ein sehr attraktiv gestalteter Außenbereich mit Terrasse zur Verfügung.
Sie werden sich wohlfühlen!
Die Raumaufteilung sowie andere Gestaltungselemente sind in Teilbereichen noch flexibel gestaltbar.
Für Fragen steht Ihnen unsere Ansprechpartner gerne zur Verfügung!
Gerne könne Sie unverbindlich einen Besichtigungstermin vereinbaren.
BITTE BEACHTEN SIE, dass wir aufgrund der Nachweispflicht gegenüber dem Eigentümer nur Anfragen mit vollständiger Angabe des Namens,
der Wohnadresse sowie der Telefonnummer bearbeiten können. Gerne senden wir Ihnen ein kostenloses Detailangebot mit weiteren Informationen zu.
Unverbindliche Unterlagen:
Die angegebenen Informationen sind nach bestem Wissen erstellt, Druck- bzw. Redaktionsfehler oder Irrtümer vorbehalten.
Für Angaben, Auskünfte und Flächen, die uns von Eigentümerseite bzw. Dritten zur Verfügung gestellt wurden, können wir keine Haftung übernehmen.
| Angaben gemäß gesetzlichem Erfordernis: | |||
| Miete | € | 1550 | zzgl 20% USt. |
| Betriebskosten | € | 100 | |
| Heizkosten | € | 125 | |
| Umsatzsteuer | € | 310 | |
| ------------------------------------------------------------------ | |||
| Gesamtbetrag | € | 2085 | |
| ------------------------------------------------------------------ | |||
| Heizwärmebedarf: | 40.08 kWh/(m²a) | ||
| Klasse Heizwärmebedarf: | B | ||
| Faktor Gesamtenergieeffizienz: | 0.77 | ||
| Klasse Faktor Gesamtenergieeffizienz: | A | ||
Objektdaten
Ausstattung
- Räume veränderbar
- Rollstuhlgerecht
- Barrierefrei
- Niedrigenergie
- Neubaustandard
- Sonstiges
- Sonstiges
- Barrierefrei
- Dorfrand
- Sonstiges
- Rollstuhlgerecht
- Räume veränderbar
Zustand
- Zustand
- GEPFLEGT
- Baujahr
- 2024
- Alter
- NEUBAU
Flächen
- Anzahl der Gewerbeeinheiten
- 1
- Nutzfläche
- 155m²
Kosten
- Kaltmiete
- € 2.085,00
- Nebenkosten
- € 225,00
- Kaution
- € 5.600,00
- Betriebskosten Brutto
- € 100,00
- Heizkosten Brutto
- € 125,00
Verwaltung
- Verfügbar ab
- ab sofort
- Mietdauer
- ab 5,0 Jahre
Hallen und Lager zum Mieten in Österreich
Hallen und Lager zum Mieten in Österreich
Hallen und Lager zum Mieten in Österreich
Andere Besucher suchen nach...
- Grundstücke kaufen in 3400 Weidlingbach
- Wohnungen kaufen in 4663 Laakirchen
- Häuser in 7471 Rechnitz
- Wohnungen in 2410 Hainburg an der Donau
- Häuser kaufen in 2432 Schwadorf
- Wohnungen kaufen in 3002 Purkersdorf
- Häuser in 3150 Wilhelmsburg
- Wohnungen kaufen in 3470 Engelmannsbrunn
- Grundstücke kaufen im Bezirk Mattersburg
- Grundstücke kaufen im Bezirk Gmunden