Kanzlei, Praxis oder Bürogebäude gesucht in Leibnitz gesucht ?
€ 389.000
€ 2.343 / m²
8430 Leibnitz
-
sofort
Beschreibung
Stilvolle Kanzlei-, Praxis- oder Büroimmobilie mit Charme & Vielseitigkeit in Leibnitz! Willkommen an einem Ort, an dem Geschichte auf moderne Arbeitswelt trifft. Dieses außergewöhnliche Objekt im Herzen von Leibnitz bietet mit rund 155 m² Nutzfläche auf zwei Ebenen großzügige Räume für professionelles Arbeiten in einem warmen, einladenden Ambiente. Ob Kanzlei, Ordination, Therapiezentrum oder Beratungsstandort, diese Immobilie schafft den idealen Rahmen, um Klientinnen und Klienten in ruhiger und wertiger Atmosphäre zu empfangen. Ursprünglich 1895 errichtet und 2011 modernisiert, verbindet das Haus historische Substanz mit zeitgemäßer Ausstattung und viel Potenzial für individuelle Gestaltung. Raumaufteilung & Nutzungsmöglichkeiten • Erdgeschoss: Repräsentativer Empfang, vielseitig nutzbare...
Stilvolle Kanzlei-, Praxis- oder Büroimmobilie mit Charme & Vielseitigkeit in Leibnitz!
Willkommen an einem Ort, an dem Geschichte auf moderne Arbeitswelt trifft. Dieses außergewöhnliche Objekt im Herzen von Leibnitz bietet mit rund 155 m² Nutzfläche auf zwei Ebenen großzügige Räume für professionelles Arbeiten in einem warmen, einladenden Ambiente.
Ob Kanzlei, Ordination, Therapiezentrum oder Beratungsstandort, diese Immobilie schafft den idealen Rahmen, um Klientinnen und Klienten in ruhiger und wertiger Atmosphäre zu empfangen.
Ursprünglich 1895 errichtet und 2011 modernisiert, verbindet das Haus historische Substanz mit zeitgemäßer Ausstattung und viel Potenzial für individuelle Gestaltung.
Raumaufteilung & Nutzungsmöglichkeiten
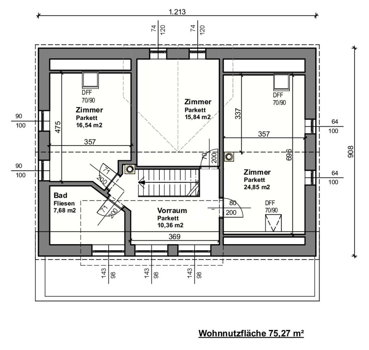
• Erdgeschoss: Repräsentativer Empfang, vielseitig nutzbare Räume für Beratung, Besprechung oder Behandlung, Küche für Pausen & Team
• Obergeschoss: Drei weitere helle Räume – perfekt für Therapieräume, Büros oder Besprechungszimmer, sowie ein modernisiertes Bad mit WC
• Keller: Praktische Lager-/Archivfläche (ca. 20 m²)
Die Raumstruktur eignet sich ideal für:
• Kanzlei / Steuerberatung
• Gesundheit & Therapie / Ärztepraxis
• Coaching- & Beratungszentrum
• Creatives & Office-Teams
• Gemeinschaftspraxis / Multi-Office-Konzept
Highlights, die begeistern
• Solaranlage am Dach zur Warmwasseraufbereitung
• Öl-Zentralheizung + Schwedenofen für angenehme Atmosphäre
• Elektrisches Einfahrts- & Garagentor
• Doppelcarport + 2 große Garagen (eine davon ideal als Werkstatt/Projekt- oder Archivfläche)
• Große Terrasse mit elektrischer Markise – ideal als Team- oder Entspannungsbereich
• Innenhof mit Pool (Ø 4,5 m) – ein besonderes Extra für Sommerpausen
• Grundstücksfläche ca. 590 m²
Zukunftsfähig & flexibel:
• Glasfaser-Internet möglich – perfekt für digitale Arbeitsabläufe
• Anschluss an Nahwärme möglich
Ein Ort, an dem man gerne arbeitet
Hier treffen Substanz und Charakter auf modern nutzbare Räumlichkeiten. Ein Objekt mit Ausstrahlung, Wärme und professionellem Flair – ideal für alle, die Wert auf ein besonderes Umfeld legen und KundInnen auf stilvolle Weise empfangen möchten.
„Wir weisen darauf hin, dass zwischen dem Immobilienmakler und dem Verkäufer ein persönliches Naheverhältnis besteht.“
Alle Immobilien sowie Objektvideos und 360°-Bilder finden Sie auf www.remax.at
Willkommen an einem Ort, an dem Geschichte auf moderne Arbeitswelt trifft. Dieses außergewöhnliche Objekt im Herzen von Leibnitz bietet mit rund 155 m² Nutzfläche auf zwei Ebenen großzügige Räume für professionelles Arbeiten in einem warmen, einladenden Ambiente.
Ob Kanzlei, Ordination, Therapiezentrum oder Beratungsstandort, diese Immobilie schafft den idealen Rahmen, um Klientinnen und Klienten in ruhiger und wertiger Atmosphäre zu empfangen.
Ursprünglich 1895 errichtet und 2011 modernisiert, verbindet das Haus historische Substanz mit zeitgemäßer Ausstattung und viel Potenzial für individuelle Gestaltung.
Raumaufteilung & Nutzungsmöglichkeiten
• Erdgeschoss: Repräsentativer Empfang, vielseitig nutzbare Räume für Beratung, Besprechung oder Behandlung, Küche für Pausen & Team
• Obergeschoss: Drei weitere helle Räume – perfekt für Therapieräume, Büros oder Besprechungszimmer, sowie ein modernisiertes Bad mit WC
• Keller: Praktische Lager-/Archivfläche (ca. 20 m²)
Die Raumstruktur eignet sich ideal für:
• Kanzlei / Steuerberatung
• Gesundheit & Therapie / Ärztepraxis
• Coaching- & Beratungszentrum
• Creatives & Office-Teams
• Gemeinschaftspraxis / Multi-Office-Konzept
Highlights, die begeistern
• Solaranlage am Dach zur Warmwasseraufbereitung
• Öl-Zentralheizung + Schwedenofen für angenehme Atmosphäre
• Elektrisches Einfahrts- & Garagentor
• Doppelcarport + 2 große Garagen (eine davon ideal als Werkstatt/Projekt- oder Archivfläche)
• Große Terrasse mit elektrischer Markise – ideal als Team- oder Entspannungsbereich
• Innenhof mit Pool (Ø 4,5 m) – ein besonderes Extra für Sommerpausen
• Grundstücksfläche ca. 590 m²
Zukunftsfähig & flexibel:
• Glasfaser-Internet möglich – perfekt für digitale Arbeitsabläufe
• Anschluss an Nahwärme möglich
Ein Ort, an dem man gerne arbeitet
Hier treffen Substanz und Charakter auf modern nutzbare Räumlichkeiten. Ein Objekt mit Ausstrahlung, Wärme und professionellem Flair – ideal für alle, die Wert auf ein besonderes Umfeld legen und KundInnen auf stilvolle Weise empfangen möchten.
„Wir weisen darauf hin, dass zwischen dem Immobilienmakler und dem Verkäufer ein persönliches Naheverhältnis besteht.“
| Angaben gemäß gesetzlichem Erfordernis: | |||
| Heizwärmebedarf: | 222.0 kWh/(m²a) | ||
| Klasse Heizwärmebedarf: | F | ||
| Faktor Gesamtenergieeffizienz: | 2.85 | ||
| Klasse Faktor Gesamtenergieeffizienz: | E | ||
Alle Immobilien sowie Objektvideos und 360°-Bilder finden Sie auf www.remax.at
Objektdaten
Ausstattung
- Kabel/SAT-TV
- Zentralheizung
- Befeuerung mit Öl
- Küche Möbliert
- Kabel/SAT-TV
- Zentralheizung mit Öl
Zustand
- Baujahr
- ca. 1895
Flächen
- Anzahl der Zimmer
- 6
- Anzahl der sep. WCs
- 2
- Anzahl der Terrassen
- 1
- Stellplätze
- 4
- Nutzfläche
- 166m²
- Bürofläche
- 166m²
- Grundstücksfläche
- 592m²
- Kellerfläche
- 21m²
- Terrassenfläche
- 1m²
Kosten
- Kaufpreis
- € 389.000,00
Verwaltung
- Verfügbar ab
- sofort
Büros zum Kaufen im Umkreis von Leibnitz
Büros zum Kaufen im Umkreis von Leibnitz
Büros zum Kaufen in Österreich
Andere Besucher suchen nach...
- Grundstücke kaufen in 3400 Weidlingbach
- Wohnungen kaufen in 4663 Laakirchen
- Häuser in 7471 Rechnitz
- Wohnungen in 2410 Hainburg an der Donau
- Häuser kaufen in 2432 Schwadorf
- Wohnungen kaufen in 3002 Purkersdorf
- Häuser in 3150 Wilhelmsburg
- Wohnungen kaufen in 3470 Engelmannsbrunn
- Grundstücke kaufen im Bezirk Mattersburg
- Grundstücke kaufen im Bezirk Gmunden