Mehr als nur ein Geschäftslokal: Ob Concept Store, Gastro oder Grünoase – hier ist (fast) alles möglich.
-
sofort
Beschreibung
Standortbeschreibung / Wirtschaftliches Umfeld: Die Immobilie befindet sich in zentraler Lage in der Kremser Gasse, nur zwei Gehminuten vom Hauptbahnhof entfernt. In direkter Umgebung sind angesagte Marken, erstklassige Gastronomiebetriebe sowie zahlreiche Dienstleister wie Juristen, Ärzte, Apotheken und Therapeuten ansässig. Das markante Gebäude besticht durch seine prominente Präsenz im Straßenbild und bietet einen optimalen Standort für nationale wie auch internationale Marken.
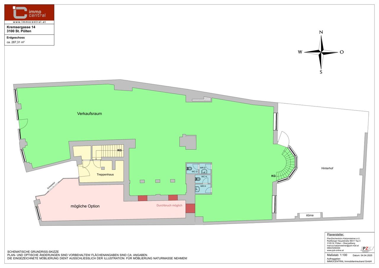
Flächenangaben und Barrierefreiheit: Der Zugang zur Immobilie erfolgt direkt über die Kremser Gasse. Die Gesamtfläche beläuft sich aktuell auf etwa 356,44 m².
Mietverhältnis: Der Mietvertrag wird auf unbestimmte Zeit abgeschlossen. Bitte beachten Sie, dass aufgrund der mieterfreundlichen...
Standortbeschreibung / Wirtschaftliches Umfeld: Die Immobilie befindet sich in zentraler Lage in der Kremser Gasse, nur zwei Gehminuten vom Hauptbahnhof entfernt. In direkter Umgebung sind angesagte Marken, erstklassige Gastronomiebetriebe sowie zahlreiche Dienstleister wie Juristen, Ärzte, Apotheken und Therapeuten ansässig. Das markante Gebäude besticht durch seine prominente Präsenz im Straßenbild und bietet einen optimalen Standort für nationale wie auch internationale Marken.
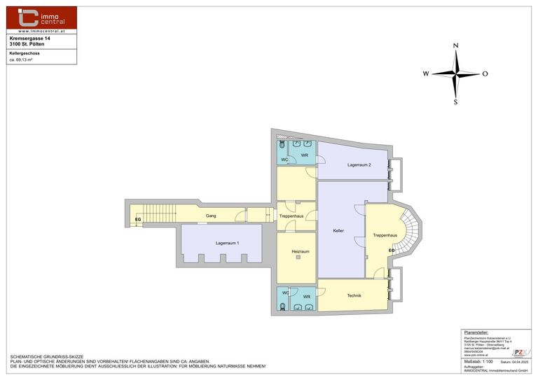
Flächenangaben und Barrierefreiheit: Der Zugang zur Immobilie erfolgt direkt über die Kremser Gasse. Die Gesamtfläche beläuft sich aktuell auf etwa 356,44 m².
Mietverhältnis: Der Mietvertrag wird auf unbestimmte Zeit abgeschlossen. Bitte beachten Sie, dass aufgrund der mieterfreundlichen Ausgestaltung und der erheblichen Investitionen des Vermieters ein Kündigungsverzicht seitens des Mieters erforderlich sein kann.
Mietzinsmischpreis: Der Mietzins richtet sich nach Art der Nutzung sowie dem vorgesehenen Investitionsumfang und wird im Rahmen eines individuellen Angebots bekannt gegeben.
Belichtung: Die großflächigen, bodennahen Fenster und das breite Eingangsportal sorgen für eine helle, einladende und freundliche Atmosphäre in der Geschäftsfläche.
Deckenhöhe: Die Deckenhöhe beträgt in den meisten Bereichen des Ladens ca. 2,90 bis 3,30 Meter. In einigen Bereichen erstreckt sie sich auf 3,30 bis 4,35 Meter.
Außenwerbung: Die Anbringung von Werbung an der Fassade ist gestattet.
Barrierefreiheit: Der Eingangsbereich sowie die Anlieferung über den Zugang zur Kremser Gasse sind ebenerdig und können bei Bedarf individuell angepasst werden.
Öffnungszeiten: Seitens des Vermieters bestehen keine Beschränkungen.
Parksituation & Anbindung: Aufgrund der herausragenden Lage ist die Fläche einerseits optimal an das öffentliche Verkehrsnetz angebunden. Andererseits stehen ausreichend Parkgaragen, Park and Ride Anlagen sowie fußläufig erreichbare Parkplätze zur Verfügung.
Kaution: 3 Bruttomonatsmieten
Provision: 3 Bruttomonatsmiete zzgl. USt.
Wir weisen darauf hin, dass zwischen dem Vermittler und dem zu vermittelnden Dritten ein familiäres oder wirtschaftliches Naheverhältnis besteht.
Der Vermittler ist als Doppelmakler tätig.
Infrastruktur / Entfernungen
Gesundheit
Arzt <250m
Apotheke <250m
Klinik <750m
Krankenhaus <1.000m
Kinder & Schulen
Schule <250m
Kindergarten <500m
Universität <1.000m
Höhere Schule <250m
Nahversorgung
Supermarkt <250m
Bäckerei <250m
Einkaufszentrum <250m
Sonstige
Bank <250m
Geldautomat <250m
Polizei <250m
Post <250m
Verkehr
Bus <250m
Bahnhof <250m
Autobahnanschluss <3.000m
Flughafen <6.000m
Angaben Entfernung Luftlinie / Quelle: OpenStreetMap
Objektdaten
Ausstattung
- Räume veränderbar
- Klimatisiert
- Gartennutzung
- Rollstuhlgerecht
- Kabel/SAT-TV
- DVBT
- Barrierefrei
- Gastterrasse
- Teeküche
- Seniorengerecht
- Bad mit Pissoir
- Zentralheizung
- Fernwärme Heizung
- Fern Befeuerung
- Wasserelektro Befeuerung
- Massiv Bauweise
Zustand
- Zustand
- GEPFLEGT
- Alter
- ALTBAU
- HWB
- 68.59 kWh/m² pro Jahr
- Klasse HWB
- C
- fGEE
- 1.75
- Klasse fGEE
- C
Flächen
- Anzahl der sep. WCs
- 3
- Nutzfläche
- 356m²
- Gesamtfläche
- 356m²
- Verkaufsfläche
- 287m²
- Kellerfläche
- 69m²
Kosten
Verwaltung
- Verfügbar ab
- sofort
Immobilien im Einzelhandel zum Mieten in Österreich
Immobilien im Einzelhandel zum Mieten in Österreich
Immobilien im Einzelhandel zum Mieten in Österreich
Andere Besucher suchen nach...
- Grundstücke kaufen in 3400 Weidlingbach
- Wohnungen kaufen in 4663 Laakirchen
- Häuser in 7471 Rechnitz
- Wohnungen in 2410 Hainburg an der Donau
- Häuser kaufen in 2432 Schwadorf
- Wohnungen kaufen in 3002 Purkersdorf
- Häuser in 3150 Wilhelmsburg
- Wohnungen kaufen in 3470 Engelmannsbrunn
- Grundstücke kaufen im Bezirk Mattersburg
- Grundstücke kaufen im Bezirk Gmunden