Neubau-Doppelhaushälfte in Andorf. - Hochwertige Basis mit Gestaltungsfreiheit.
-
2024
Beschreibung
In der Marktgemeinde Andorf im oberösterreichischen Innviertel entsteht aktuell diese moderne Doppelhaushälfte mit ca. 135 m² Wohnfläche auf einer Ebene. Das Haus wird in einem erweiterten Ausbaustadium verkauft – Fassade, Ausmalung und Garagentor werden noch fertiggestellt, Böden und Küche sind nicht inkludiert.
DIE VORTEILE DIESES HAUSES AUF EINEN BLICK:
- Attraktive Wohnlage in Andorf.
- Moderne Bauweise und zeitgemäßer Grundriss.
- Ca. 135 m² Wohnfläche auf einer Ebene (Bungalow-Form).
- Gartenfläche ca. 182 m², Loggia ca. 19 m².
- Zwei Garagenplätze mit ca. 34 m² Fläche.
- Luftwärmepumpe mit Fußbodenheizung.
- Fassade, Ausmalung und Garagentor inkludiert.
DAS HAUS.
Das Haus erstreckt sich als...
In der Marktgemeinde Andorf im oberösterreichischen Innviertel entsteht aktuell diese moderne Doppelhaushälfte mit ca. 135 m² Wohnfläche auf einer Ebene.
Das Haus wird in einem erweiterten Ausbaustadium verkauft – Fassade, Ausmalung und Garagentor werden noch fertiggestellt, Böden und Küche sind nicht inkludiert.
DIE VORTEILE DIESES HAUSES AUF EINEN BLICK:
- Attraktive Wohnlage in Andorf.
- Moderne Bauweise und zeitgemäßer Grundriss.
- Ca. 135 m² Wohnfläche auf einer Ebene (Bungalow-Form).
- Gartenfläche ca. 182 m², Loggia ca. 19 m².
- Zwei Garagenplätze mit ca. 34 m² Fläche.
- Luftwärmepumpe mit Fußbodenheizung.
- Fassade, Ausmalung und Garagentor inkludiert.
DAS HAUS.
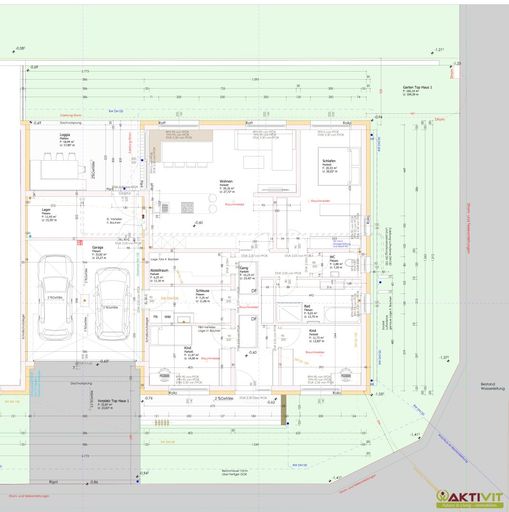
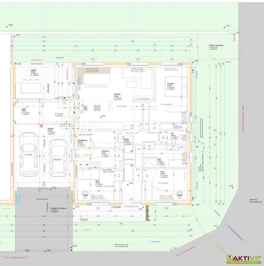
Das Haus erstreckt sich als moderner Bungalow über eine Ebene und verfügt über eine Wohnfläche von ca. 135,46 m².
Insgesamt vier Zimmer bieten ausreichend Platz für Wohnen, Arbeiten und Rückzug. Der offen gestaltete Wohnbereich ist mit direktem Zugang zur Loggia (ca. 19 m²) und dem Garten ausgelegt.
Zwei Abstellräume, ein Badezimmer mit Badewanne und ein separates WC sorgen für Komfort im Alltag.
Eine Doppelgarage mit ca. 34 m² ist Teil der Liegenschaft und bietet zusätzlichen Stauraum.
ZUSTAND UND AUSSTATTUNG.
Es handelt sich um einen hochwertigen Neubau aus dem Jahr 2024/25 in Massivbauweise mit Flachdach. Die Beheizung erfolgt über eine energieeffiziente Luftwärmepumpe mittels Fußbodenheizung.
Zum Zeitpunkt der Übergabe sind die Fassade, die Innenausmalung und das Garagentor fertiggestellt. Die Böden sowie die Küche sind nicht inkludiert und können vom künftigen Eigentümer frei gestaltet werden – ideale Voraussetzungen für Individualität.
Die Immobilie befindet sich somit in einem neuwertigen, belagsfertigen Zustand mit durchdachter Planung.
DIE LIEGENSCHAFT.
Der Grundstücks-Anteil umfasst ca. 387 m², davon entfallen ca. 182 m² auf die Gartenfläche. Es handelt sich um ein Doppelhaus, somit eine gemeinsam mit dem Nachbarhaus genutzte Parzelle. Das Grundstück ist vollständig als Bauland „Wohnen“ gewidmet und liegt in einem modernen Wohngebiet. Die Liegenschaft ist erschlossen und bietet eine direkte Straßenzufahrt.
Zur Beantwortung weiterer Fragen sowie für Besichtigungstermine stehe ich Ihnen gerne täglich - auch am Wochenende - von 08:00 bis 22:00 Uhr zur Verfügung.
Ich freue mich über Ihre Kontaktaufnahme,
David Schnallinger
+43 664 468 54 64
d.schnallinger@aktivit.org
Der Vermittler ist als Doppelmakler tätig.
Erteilen Sie uns ihren Suchauftrag und profitieren Sie von vielen Vorteilen und exklusiven Angeboten!
Ganz einfach und kostenlos unter: Jetzt Suchauftrag eingeben.
Infrastruktur / Entfernungen
Gesundheit
Arzt <1.500m
Apotheke <1.500m
Kinder & Schulen
Schule <500m
Kindergarten <2.000m
Nahversorgung
Supermarkt <1.000m
Bäckerei <1.500m
Sonstige
Bank <1.000m
Geldautomat <1.000m
Post <1.000m
Polizei <500m
Verkehr
Bus <500m
Bahnhof <500m
Flughafen <9.500m
Angaben Entfernung Luftlinie / Quelle: OpenStreetMap
Objektdaten
Ausstattung
- Bad mit Badewanne
- Zentralheizung
- Fußbodenheizung
- Luftwärmepumpe
- Flachdach
- Massiv Bauweise
Zustand
- Zustand
- NEUWERTIG
- Baujahr
- 2024
- Alter
- NEUBAU
- HWB
- 59 kWh/m² pro Jahr
- Klasse HWB
- C
- fGEE
- 0.74
- Klasse fGEE
- A
Flächen
- Anzahl der Zimmer
- 4
- Anzahl der Badezimmer
- 1
- Anzahl der sep. WCs
- 1
- Anzahl der Logia
- 1
- Wohnfläche
- 135m²
- Nutzfläche
- 135m²
- Gesamtfläche
- 135m²
- Gartenfläche
- 182m²
Kosten
- Kaufpreis Brutto
- € 469.900,00
Verwaltung
- Verfügbar ab
- Nach Vereinbarung
Häuser zum Kaufen im Umkreis von Andorf
Häuser zum Kaufen im Umkreis von Andorf
Häuser zum Kaufen in Österreich
Andere Besucher suchen nach...
- Grundstücke kaufen in 3400 Weidlingbach
- Wohnungen kaufen in 4663 Laakirchen
- Häuser in 7471 Rechnitz
- Wohnungen in 2410 Hainburg an der Donau
- Häuser kaufen in 2432 Schwadorf
- Wohnungen kaufen in 3002 Purkersdorf
- Häuser in 3150 Wilhelmsburg
- Wohnungen kaufen in 3470 Engelmannsbrunn
- Grundstücke kaufen im Bezirk Mattersburg
- Grundstücke kaufen im Bezirk Gmunden