Praktisch geschnittene 2-Raum-Wohnung in zentraler Lage von Grieskirchen - HIGHLIGHT: separate Küche mit Fenster. Ab 01.02.2026 verfügbar!
-
01.02.2026
Beschreibung
Grießkirchen / Naturnahe Wohnung / Hausruckviertel / Griesstraße 7:
Die Wohnung ist leer und wird ohne Möbel vermietet; mögliche Einrichtungsvorschläge wurden nur zur Veranschaulichung visualisiert.
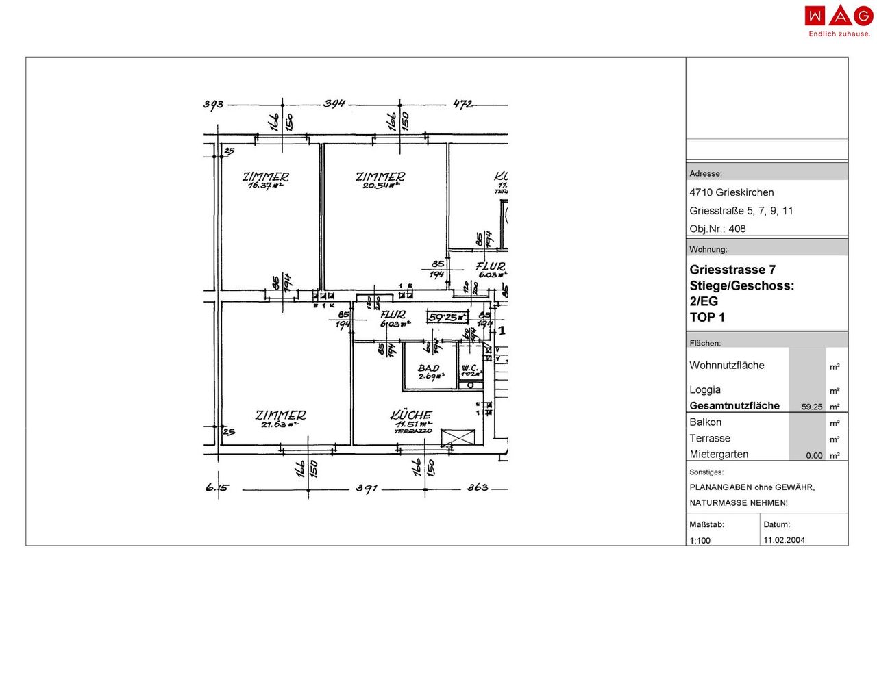
In der Griesstraße 7 in Grieskirchen wartet eine gepflegte 2-Zimmer-Wohnung mit ca. 59,3 m² auf neue Mieter:innen. Highlight ist die separate Küche mit Fenster sowie ein separates WC – ideal für Singles oder Paare, die eine zentrale Lage mit guter Infrastruktur schätzen.
Raumaufteilung & Ausstattung
Die Wohnung überzeugt durch eine effiziente, alltagstaugliche Raumaufteilung:
- Wohnzimmer in angenehmer Größe
- Schlafzimmer als ruhiger Rückzugsort
- Separate Küche mit Fenster – mehr Flexibilität im Alltag
- Bad mit Dusche ...
Grießkirchen / Naturnahe Wohnung / Hausruckviertel / Griesstraße 7:
Die Wohnung ist leer und wird ohne Möbel vermietet; mögliche Einrichtungsvorschläge wurden nur zur Veranschaulichung visualisiert.
In der Griesstraße 7 in Grieskirchen wartet eine gepflegte 2-Zimmer-Wohnung mit ca. 59,3 m² auf neue Mieter:innen. Highlight ist die separate Küche mit Fenster sowie ein separates WC – ideal für Singles oder Paare, die eine zentrale Lage mit guter Infrastruktur schätzen.
Raumaufteilung & Ausstattung
Die Wohnung überzeugt durch eine effiziente, alltagstaugliche Raumaufteilung:
- Wohnzimmer in angenehmer Größe
- Schlafzimmer als ruhiger Rückzugsort
- Separate Küche mit Fenster – mehr Flexibilität im Alltag
- Bad mit Dusche
- WC separat
Lage & Vorteile
Die Wohnung befindet sich in zentrumsnaher Lage von Grieskirchen:
- Einkaufsmöglichkeiten, Cafés, Restaurants und Ärzt:innen in wenigen Minuten erreichbar
- Bahnhof & öffentliche Verkehrsmittel in der Nähe – schnelle Anbindung Richtung Wels und Linz
- Schulen und Kindergärten fußläufig erreichbar
- Hohe Lebensqualität durch urbane Infrastruktur und gleichzeitige Nähe zur Natur
Mietkonditionen (bereinigt)
- Gesamtmiete (inkl. BK und USt): € 614,54/Monat
(Strom-, Heizungs- und Warmwasserkosten: exkl.) - Kaution: € 1.843,62
Eckdaten (kompakt)
- Objektart: Wohnung
- Zustand: gepflegt
- Wohnfläche: 59,3 m²
- Zimmer: 2
- Adresse: Griesstraße 7, 4710 Grieskirchen
- Verfügbar: 01.02.2026
Der Immobilienmakler erklärt, dass er – entgegen dem in der Immobilienwirtschaft üblichen Geschäftsgebrauch des Doppelmaklers – einseitig nur für den Vermieter tätig ist.
Sie sind an weiteren Wohnungs- bzw. Gewerbeangeboten interessiert? Ein vielfältiges Angebot finden Sie auf unserer Website.
Zur WAG-Immobiliensuche: SUCHE
Zur WAG-Wohnungsanmeldung: Wohnungsanmeldung
Gerne beraten wir Sie persönlich über unser vielfältiges Angebot, rufen Sie uns einfach an! Und das natürlich ohne Vermittlungsgebühren und provisionsfrei!
Angaben sind ohne Gewähr auf Richtigkeit und Vollständigkeit. Druckfehler vorbehalten.
Infrastruktur / Entfernungen
Gesundheit
Arzt <400m
Apotheke <500m
Krankenhaus <1.250m
Kinder & Schulen
Schule <275m
Kindergarten <500m
Nahversorgung
Supermarkt <300m
Bäckerei <250m
Einkaufszentrum <375m
Sonstige
Bank <350m
Geldautomat <350m
Post <625m
Polizei <600m
Verkehr
Bus <125m
Bahnhof <400m
Autobahnanschluss <6.200m
Angaben Entfernung Luftlinie / Quelle: OpenStreetMap
Objektdaten
Ausstattung
- Kabel/SAT-TV
- Wasch-/Trockenraum
- Bad mit Dusche
- Fliesenboden
- Parkettboden
- Fernwärme Heizung
- Fern Befeuerung
- Massiv Bauweise
Dokumente / Links
Zustand
- Zustand
- GEPFLEGT
- HWB
- 63 kWh/m² pro Jahr
- Klasse HWB
- C
- fGEE
- 1.32
- Klasse fGEE
- C
Flächen
- Anzahl der Zimmer
- 2
- Anzahl der Badezimmer
- 1
- Anzahl der sep. WCs
- 1
- Wohnfläche
- 59m²
Kosten
- Gesamtmiete Brutto
- € 614,54
- Kaution
- € 1.843,62
- Miete
- € 418,31
- Betriebskosten
- € 140,36
- Umsatzsteuer
- € 55,87
- Monatl. Gesamtbelastung Brutto
- € 614,54
Verwaltung
- Verfügbar ab
- 01.02.2026, ab 01. 02. 2026
Wohnungen zum Mieten im Umkreis von Grieskirchen
Wohnungen zum Mieten im Umkreis von Grieskirchen
Wohnungen zum Mieten in Österreich
Andere Besucher suchen nach...
- Grundstücke kaufen in 3400 Weidlingbach
- Wohnungen kaufen in 4663 Laakirchen
- Häuser in 7471 Rechnitz
- Wohnungen in 2410 Hainburg an der Donau
- Häuser kaufen in 2432 Schwadorf
- Wohnungen kaufen in 3002 Purkersdorf
- Häuser in 3150 Wilhelmsburg
- Wohnungen kaufen in 3470 Engelmannsbrunn
- Grundstücke kaufen im Bezirk Mattersburg
- Grundstücke kaufen im Bezirk Gmunden