Großzügige 3-Zimmer-Mietwohnung mit Balkon in Mürzzuschlag
Beschreibung
Objektbeschreibung
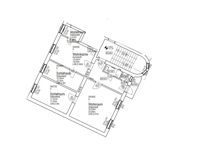
Diese großzügige Mietwohnung befindet sich in zentraler Lage von Mürzzuschlag in der Grazer Straße. Die Wohnung liegt im 2. Obergeschoss eines Wohnhauses und überzeugt durch ihre durchdachte Raumaufteilung sowie helle, gut nutzbare Wohnräume.
Mit rund 99 m² Wohnfläche bietet die Wohnung ausreichend Platz für Paare, Familien oder auch für Wohnen und Arbeiten unter einem Dach. Ein kleiner Balkon sorgt für zusätzlichen Freiraum im Alltag.
Raumaufteilung
-
3 Zimmer mit flexibler Nutzung (Wohn-, Schlaf-, Kinder- oder Arbeitszimmer)
-
Küche mit ausreichend Platz für einen Essbereich
-
Badezimmer
-
Separates WC
-
Abstellraum für zusätzlichen Stauraum
...
Objektbeschreibung
Diese großzügige Mietwohnung befindet sich in zentraler Lage von Mürzzuschlag in der Grazer Straße. Die Wohnung liegt im 2. Obergeschoss eines Wohnhauses und überzeugt durch ihre durchdachte Raumaufteilung sowie helle, gut nutzbare Wohnräume.
Mit rund 99 m² Wohnfläche bietet die Wohnung ausreichend Platz für Paare, Familien oder auch für Wohnen und Arbeiten unter einem Dach. Ein kleiner Balkon sorgt für zusätzlichen Freiraum im Alltag.
Raumaufteilung
3 Zimmer mit flexibler Nutzung (Wohn-, Schlaf-, Kinder- oder Arbeitszimmer)
Küche mit ausreichend Platz für einen Essbereich
Badezimmer
Separates WC
Abstellraum für zusätzlichen Stauraum
Kleiner Balkon
Ausstattung & Highlights
Zentrale Lage mit guter Infrastruktur
Helle Räume und angenehmer Grundriss
Separates WC – praktisch im Alltag
Balkon für kurze Auszeiten im Freien
Abstellraum innerhalb der Wohnung
Wir weisen darauf hin, dass zwischen dem Vermittler und dem zu vermittelnden Dritten ein wirtschaftliches Naheverhältnis mit gesellschaftlicher Verflechtung besteht.
Der Immobilienmakler erklärt, dass er – entgegen dem in der Immobilienwirtschaft üblichen Geschäftsgebrauch des Doppelmaklers – einseitig nur für den Vermieter tätig ist.
Infrastruktur / Entfernungen
Gesundheit
Arzt <250m
Apotheke <500m
Krankenhaus <750m
Kinder & Schulen
Schule <250m
Kindergarten <750m
Nahversorgung
Supermarkt <250m
Bäckerei <500m
Einkaufszentrum <2.000m
Sonstige
Bank <250m
Geldautomat <500m
Post <500m
Polizei <750m
Verkehr
Bus <250m
Autobahnanschluss <2.000m
Bahnhof <750m
Angaben Entfernung Luftlinie / Quelle: OpenStreetMap
Objektdaten
Ausstattung
- Kabel/SAT-TV
- Bad mit Dusche
- Fliesenboden
- Parkettboden
- Zentralheizung
- Befeuerung mit Öl
- Ausrichtung Balkon/Terrasse - Südost
- Satteldach
- Massiv Bauweise
Zustand
- Zustand
- NACH_VEREINBARUNG
- HWB
- 100 kWh/m² pro Jahr
- Klasse HWB
- C
- fGEE
- 1.2
- Klasse fGEE
- C
Flächen
- Anzahl der Zimmer
- 4
- Anzahl der Badezimmer
- 1
- Anzahl der sep. WCs
- 1
- Anzahl der Balkone
- 1
- Nutzfläche
- 99m²
Kosten
- Gesamtmiete Brutto
- € 794,97
- Miete
- € 574,20
- Betriebskosten
- € 124,74
- Heizkosten
- € 152,46
- Sonstige Kosten
- € 23,76
- Umsatzsteuer
- € 102,76
- Monatl. Gesamtbelastung Brutto
- € 977,92
Verwaltung
- Verfügbar ab
- nach Vereinbarung
- Mietdauer
- bis 3,0 Jahre
Wohnungen zum Mieten im Umkreis von Mürzzuschlag
Wohnungen zum Mieten im Umkreis von Mürzzuschlag
Wohnungen zum Mieten in Österreich
Andere Besucher suchen nach...
- Grundstücke kaufen in 3400 Weidlingbach
- Wohnungen kaufen in 4663 Laakirchen
- Häuser in 7471 Rechnitz
- Wohnungen in 2410 Hainburg an der Donau
- Häuser kaufen in 2432 Schwadorf
- Wohnungen kaufen in 3002 Purkersdorf
- Häuser in 3150 Wilhelmsburg
- Wohnungen kaufen in 3470 Engelmannsbrunn
- Grundstücke kaufen im Bezirk Mattersburg
- Grundstücke kaufen im Bezirk Gmunden