2-Zimmer-Dachgeschosswohnung mit Schlossbergblick
Beschreibung
Wer das Leben in der Stadt liebt, wird diese Wohnung in der Kaiserfeldgasse 22, 8010 Graz schätzen: Mitten in Graz, im charmanten Dachgeschoss eines gepflegten Hauses, wartet diese großzügige 2-Zimmer-Wohnung mit Terrasse und freiem Blick auf den Schlossberg auf neue Bewohner*innen.
Das erwartet Sie:
-
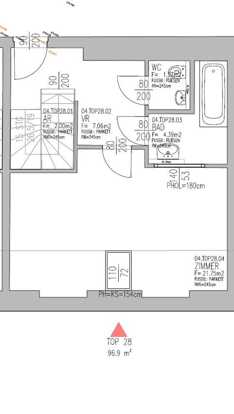
96,12 m² Wohnfläche mit durchdachtem Grundriss
-
Großzügige Terrasse mit Ausblick zum Verlieben
-
Wohnraum mit moderner Einbauküche – offen, hell und einladend
-
Ruhiges Schlafzimmer mit viel Potenzial zum Wohlfühlen
-
Bad mit Dusche, separates WC
-
praktischer Abstellraum
-
Parkettboden
-
Fliesen in...
Wer das Leben in der Stadt liebt, wird diese Wohnung in der Kaiserfeldgasse 22, 8010 Graz schätzen: Mitten in Graz, im charmanten Dachgeschoss eines gepflegten Hauses, wartet diese großzügige 2-Zimmer-Wohnung mit Terrasse und freiem Blick auf den Schlossberg auf neue Bewohner*innen.
Das erwartet Sie:
96,12 m² Wohnfläche mit durchdachtem Grundriss
Großzügige Terrasse mit Ausblick zum Verlieben
Wohnraum mit moderner Einbauküche – offen, hell und einladend
Ruhiges Schlafzimmer mit viel Potenzial zum Wohlfühlen
Bad mit Dusche, separates WC
praktischer Abstellraum
Parkettboden
Fliesen in Bad und WC
Kellerabteil
Beziehbar ab sofort
Lage zum Verlieben:
Die Kaiserfeldgasse gehört zu den beliebtesten Adressen der Stadt – ruhig, charmant und doch nur 5 Minuten zu Fuß vom Grazer Hauptplatz entfernt. Alles, was das Stadtleben ausmacht, liegt direkt vor der Tür: Cafés, Kultur, Shopping und Erholung am Schlossberg.
Ob für Singles mit Sinn für Stil, Paare mit Stadtflair oder alle, die ein Zuhause mit Aussicht suchen – hier trifft urbane Lebensqualität auf entspannte Wohnatmosphäre.
Alle Angaben entsprechen dem Kenntnisstand zum Zeitpunkt der Veröffentlichung. Für Fehler, Abweichungen, Irrtümer oder falsche Angaben kann keine Haftung übernommen werden.
Wir weisen darauf hin, dass zwischen dem Vermittler und dem zu vermittelnden Dritten ein wirtschaftliches Naheverhältnis mit gesellschaftlicher Verflechtung besteht.
Der Immobilienmakler erklärt, dass er – entgegen dem in der Immobilienwirtschaft üblichen Geschäftsgebrauch des Doppelmaklers – einseitig nur für den Vermieter tätig ist.
Infrastruktur / Entfernungen
Gesundheit
Arzt <500m
Apotheke <500m
Klinik <1.000m
Krankenhaus <1.000m
Kinder & Schulen
Schule <500m
Kindergarten <500m
Universität <1.000m
Höhere Schule <1.000m
Nahversorgung
Supermarkt <500m
Bäckerei <500m
Einkaufszentrum <500m
Sonstige
Geldautomat <500m
Bank <500m
Post <500m
Polizei <500m
Verkehr
Bus <500m
Straßenbahn <500m
Autobahnanschluss <5.000m
Bahnhof <1.000m
Flughafen <9.000m
Angaben Entfernung Luftlinie / Quelle: OpenStreetMap
Objektdaten
Ausstattung
- Bad mit Dusche
- Einbauküche
- Fliesenboden
- Parkettboden
- Fern Befeuerung
- Personen Fahrstuhl
- Ausrichtung Balkon/Terrasse - Süd
- Massiv Bauweise
Zustand
- HWB
- 54.2 kWh/m² pro Jahr
- Klasse HWB
- C
- fGEE
- 1.02
- Klasse fGEE
- C
Flächen
- Anzahl der Zimmer
- 2
- Anzahl der Badezimmer
- 1
- Anzahl der sep. WCs
- 1
- Anzahl der Terrassen
- 1
- Wohnfläche
- 96m²
- Terrassenfläche
- 1m²
Kosten
- Gesamtmiete Brutto
- € 1.199,13
- Kaution
- € 3.600,00
- Miete
- € 895,00
- Betriebskosten
- € 195,12
- Umsatzsteuer
- € 109,01
- Monatl. Gesamtbelastung Brutto
- € 1.199,13
Verwaltung
- Mietdauer
- bis 5,0 Jahre
Wohnungen zum Mieten in Österreich
Wohnungen zum Mieten in Österreich
Andere Besucher suchen nach...
- Grundstücke kaufen in 3400 Weidlingbach
- Wohnungen kaufen in 4663 Laakirchen
- Häuser in 7471 Rechnitz
- Wohnungen in 2410 Hainburg an der Donau
- Häuser kaufen in 2432 Schwadorf
- Wohnungen kaufen in 3002 Purkersdorf
- Häuser in 3150 Wilhelmsburg
- Wohnungen kaufen in 3470 Engelmannsbrunn
- Grundstücke kaufen im Bezirk Mattersburg
- Grundstücke kaufen im Bezirk Gmunden