2-Zimmer Wohnung mit Terrasse nähe TU-Graz zu vermieten.
€ 640 / Monat
€ 14 / m²
8010 Graz
-
Sofort
Beschreibung
Mietwohnung in Zentrumslage zu vermieten, auch ideal für Studenten.
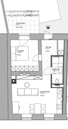
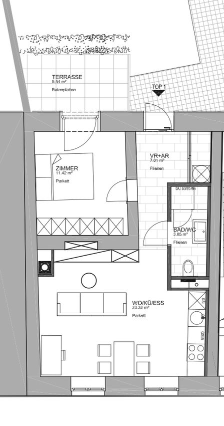
Die Wohneinheit liegt im Erdgeschoss mit 46m² Wohnfläche, aufgeteilt in einen Wohn-Essbereich mit möblierter moderner Küche, Schlafzimmer mit Zugang auf die Innenhofterrasse, Sanitärbereich mit Dusche/WC und einen großzügigen Vorraumbereich. Bezug wäre jederzeit möglich. Die Betriebskosten sind bereits in der Miete inkludiert.
Die Wohneinheit liegt im Erdgeschoss mit 46m² Wohnfläche, aufgeteilt in einen Wohn-Essbereich mit möblierter moderner Küche, Schlafzimmer mit Zugang auf die Innenhofterrasse, Sanitärbereich mit Dusche/WC und einen großzügigen Vorraumbereich. Bezug wäre jederzeit möglich. Die Betriebskosten sind bereits in der Miete inkludiert.
| Angaben gemäß gesetzlichem Erfordernis: | |||
| Miete | € | 418,18 | zzgl 10% USt. |
| Betriebskosten | € | 180 | |
| Umsatzsteuer | € | 41,82 | |
| ------------------------------------------------------------------ | |||
| Gesamtbetrag | € | 640 | |
| ------------------------------------------------------------------ | |||
| Heizwärmebedarf: | 98.0 kWh/(m²a) | ||
| Klasse Heizwärmebedarf: | B | ||
Objektdaten
Ausstattung
- Zentralheizung
- Fern Befeuerung
- Bus
- Küche Möbliert
- Stadtzentrum
- Straßenbahn
- Zentralheizung mit Fernwärme
Zustand
- Zustand
- GEPFLEGT
Flächen
- Anzahl der Zimmer
- 1.5
- Anzahl der Badezimmer
- 1
- Anzahl der sep. WCs
- 1
- Anzahl der Terrassen
- 1
- Wohnfläche
- 46m²
- Terrassenfläche
- 1m²
Kosten
- Kaltmiete
- € 640,00
- Nebenkosten
- € 180,00
- Kaution
- € 1.920,00
- Betriebskosten Brutto
- € 180,00
Verwaltung
- Verfügbar ab
- Sofort
- Mietdauer
- bis 5,0 Jahre
Wohnungen zum Mieten in Österreich
Wohnungen zum Mieten in Österreich
Wohnungen zum Mieten in Österreich
Andere Besucher suchen nach...
- Grundstücke kaufen in 3400 Weidlingbach
- Wohnungen kaufen in 4663 Laakirchen
- Häuser in 7471 Rechnitz
- Wohnungen in 2410 Hainburg an der Donau
- Häuser kaufen in 2432 Schwadorf
- Wohnungen kaufen in 3002 Purkersdorf
- Häuser in 3150 Wilhelmsburg
- Wohnungen kaufen in 3470 Engelmannsbrunn
- Grundstücke kaufen im Bezirk Mattersburg
- Grundstücke kaufen im Bezirk Gmunden