Moderne 3-Zimmer-Wohnung in ruhiger Lage nahe Zentrum & Messe
Beschreibung
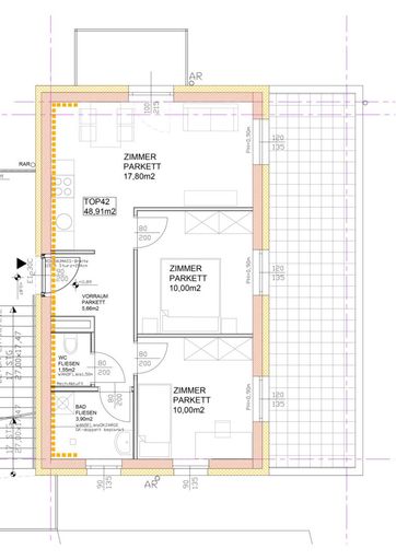
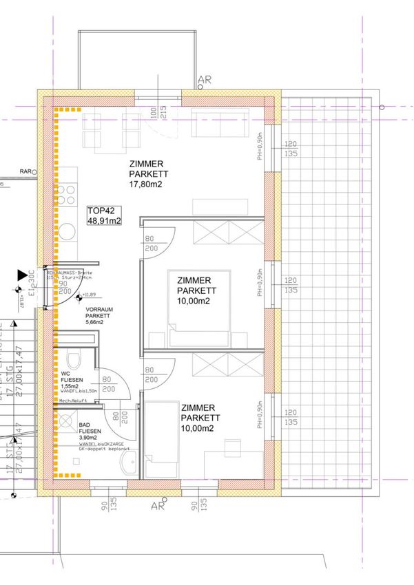
Diese attraktive 3-Zimmer-Wohnung befindet sich im 4. Obergeschoss eines gepflegten Wohnhauses in der Kasernstraße 12, 8010 Graz und ist bequem per Lift erreichbar. Mit einer Wohnfläche von ca. 48,91 m² eignet sie sich ideal für Singles, Paare oder kleine Familien.
Die Wohnung überzeugt durch ihre durchdachte Raumaufteilung sowie die ruhige Lage bei gleichzeitig hervorragender Anbindung an das Stadtzentrum und die Grazer Messe.
Ausstattung:
- Heller Wohnbereich mit Parkettboden
- Nassräume mit modernen Fliesen
- Badezimmer mit Dusche und WC
- Möblierte Einbauküche
- Lift im Haus
Die Kombination aus ruhigem Wohnumfeld und zentraler Lage macht diese Wohnung besonders attraktiv. Einkaufsmöglichkeiten, öffentliche Verkehrsmittel sowie...
Diese attraktive 3-Zimmer-Wohnung befindet sich im 4. Obergeschoss eines gepflegten Wohnhauses in der Kasernstraße 12, 8010 Graz und ist bequem per Lift erreichbar. Mit einer Wohnfläche von ca. 48,91 m² eignet sie sich ideal für Singles, Paare oder kleine Familien.
Die Wohnung überzeugt durch ihre durchdachte Raumaufteilung sowie die ruhige Lage bei gleichzeitig hervorragender Anbindung an das Stadtzentrum und die Grazer Messe.
Ausstattung:
- Heller Wohnbereich mit Parkettboden
- Nassräume mit modernen Fliesen
- Badezimmer mit Dusche und WC
- Möblierte Einbauküche
- Lift im Haus
Die Kombination aus ruhigem Wohnumfeld und zentraler Lage macht diese Wohnung besonders attraktiv. Einkaufsmöglichkeiten, öffentliche Verkehrsmittel sowie zahlreiche Freizeitangebote befinden sich in unmittelbarer Nähe.
Eine ideale Wohnung für alle, die stadtnah und dennoch ruhig wohnen möchten.
Haben wir Ihr Interesse geweckt? Kontaktieren Sie uns für eine Besichtigung!
Alle Angaben entsprechen dem Kenntnisstand zum Zeitpunkt der Veröffentlichung. Für Fehler, Abweichungen, Irrtümer oder falsche Angaben kann keine Haftung übernommen werden.
Wir weisen darauf hin, dass zwischen dem Vermittler und dem zu vermittelnden Dritten ein familiäres oder wirtschaftliches Naheverhältnis besteht.
Infrastruktur / Entfernungen
Gesundheit
Arzt <500m
Apotheke <500m
Klinik <1.500m
Krankenhaus <2.500m
Kinder & Schulen
Schule <500m
Kindergarten <500m
Universität <1.000m
Höhere Schule <1.500m
Nahversorgung
Supermarkt <500m
Bäckerei <500m
Einkaufszentrum <1.500m
Sonstige
Geldautomat <500m
Bank <500m
Post <1.000m
Polizei <500m
Verkehr
Bus <500m
Straßenbahn <500m
Autobahnanschluss <3.500m
Bahnhof <500m
Flughafen <7.500m
Angaben Entfernung Luftlinie / Quelle: OpenStreetMap
Objektdaten
Ausstattung
- Bad mit Dusche
- Bad mit Fenster
- Einbauküche
- Fliesenboden
- Parkettboden
- Fernwärme Heizung
- Fußbodenheizung
- Fern Befeuerung
- Personen Fahrstuhl
- Flachdach
- Massiv Bauweise
Zustand
- Zustand
- GEPFLEGT
- Baujahr
- 2017
- Alter
- NEUBAU
- HWB
- 45 kWh/m² pro Jahr
- Klasse HWB
- B
- fGEE
- 0.83
- Klasse fGEE
- A
Flächen
- Anzahl der Zimmer
- 3
- Anzahl der Badezimmer
- 1
- Anzahl der sep. WCs
- 1
- Anzahl der Balkone
- 1
- Wohnfläche
- 49m²
Kosten
- Gesamtmiete Brutto
- € 816,60
- Kaution
- € 2.700,00
- Miete
- € 629,87
- Betriebskosten
- € 112,49
- Heizkosten
- € 53,80
- Umsatzsteuer
- € 85,00
- Monatl. Gesamtbelastung Brutto
- € 881,16
Verwaltung
- Mietdauer
- bis 5,0 Jahre
Wohnungen zum Mieten in Österreich
Wohnungen zum Mieten in Österreich
Andere Besucher suchen nach...
- Grundstücke kaufen in 3400 Weidlingbach
- Wohnungen kaufen in 4663 Laakirchen
- Häuser in 7471 Rechnitz
- Wohnungen in 2410 Hainburg an der Donau
- Häuser kaufen in 2432 Schwadorf
- Wohnungen kaufen in 3002 Purkersdorf
- Häuser in 3150 Wilhelmsburg
- Wohnungen kaufen in 3470 Engelmannsbrunn
- Grundstücke kaufen im Bezirk Mattersburg
- Grundstücke kaufen im Bezirk Gmunden