Moderne 1-Zimmer-Wohnung mit Loggia – kompakt, stilvoll und urban
-
ab sofort
Beschreibung
Liebe Interessentin, lieber Interessent,
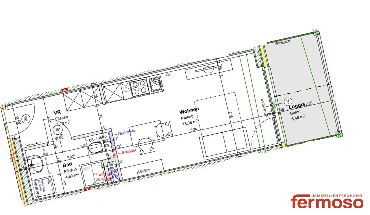
diese moderne 1-Zimmer-Wohnung überzeugt durch eine durchdachte Raumaufteilung, eine angenehme Wohnatmosphäre und eine attraktive Loggia, die zusätzlichen Freiraum bietet. Die Wohnung eignet sich ideal für Singles, Studierende oder Anleger, die eine kompakte und funktionale Wohnung in urbaner Lage suchen.
Der offene Wohn- und Schlafbereich bildet das Herzstück der Wohnung und bietet ausreichend Platz für Wohnen, Arbeiten und Entspannen. Die integrierte Küche fügt sich harmonisch in den Wohnraum ein und schafft eine moderne, offene Wohnlösung.
🏡 Raumaufteilung
-
Wohn- und Schlafbereich mit Küche – ca. 18 m², offen gestaltet
-
Vorraum – mit Platz für...
Liebe Interessentin, lieber Interessent,
diese moderne 1-Zimmer-Wohnung überzeugt durch eine durchdachte Raumaufteilung, eine angenehme Wohnatmosphäre und eine attraktive Loggia, die zusätzlichen Freiraum bietet. Die Wohnung eignet sich ideal für Singles, Studierende oder Anleger, die eine kompakte und funktionale Wohnung in urbaner Lage suchen.
Der offene Wohn- und Schlafbereich bildet das Herzstück der Wohnung und bietet ausreichend Platz für Wohnen, Arbeiten und Entspannen. Die integrierte Küche fügt sich harmonisch in den Wohnraum ein und schafft eine moderne, offene Wohnlösung.
🏡 Raumaufteilung
Wohn- und Schlafbereich mit Küche – ca. 18 m², offen gestaltet
Vorraum – mit Platz für Garderobe
Badezimmer – modern ausgestattet mit Dusche und WC
Loggia – ca. 6,46 m², ideal zum Entspannen im Freien
✨ Highlights der Wohnung
Kompakte und effiziente Raumaufteilung
Helle Wohnräume
Loggia als private Freifläche
Moderne Bauweise
Ideal für Eigennutzer oder als Anlageobjekt
📍 Lage – Graz, Bezirk Lend
Die Wohnung befindet sich im beliebten Grazer Bezirk Lend, einem der dynamischsten und kreativsten Stadtteile der Stadt. Zahlreiche Cafés, Restaurants, Einkaufsmöglichkeiten sowie der bekannte Lendplatz befinden sich in unmittelbarer Nähe. Die Grazer Innenstadt ist schnell erreichbar und auch die Anbindung an öffentliche Verkehrsmittel ist hervorragend.
📞 Kontakt:
Dean Banovic
📧 db@fermoso.at
📱 +43 676 926 15 29
Noch nichts gefunden? Wir informieren Sie über geeignete Immobilienangebote noch vor allen anderen.
Legen Sie jetzt Ihren individuellen Suchagenten unter folgendem Link an. Wir schicken Ihnen passende Immobilien exklusiv vorab zu.
Suchagent anlegen - https://fermoso-immobilientreuhand.service.immo/registrieren/de
Wir weisen darauf hin, dass zwischen dem Vermittler und dem zu vermittelnden Dritten ein familiäres oder wirtschaftliches Naheverhältnis besteht.
Der Immobilienmakler erklärt, dass er – entgegen dem in der Immobilienwirtschaft üblichen Geschäftsgebrauch des Doppelmaklers – einseitig nur für den Vermieter tätig ist.
Infrastruktur / Entfernungen
Gesundheit
Arzt <500m
Apotheke <500m
Klinik <1.000m
Krankenhaus <500m
Kinder & Schulen
Schule <500m
Kindergarten <500m
Universität <1.500m
Höhere Schule <1.000m
Nahversorgung
Supermarkt <500m
Bäckerei <500m
Einkaufszentrum <1.000m
Sonstige
Geldautomat <500m
Bank <500m
Post <1.000m
Polizei <500m
Verkehr
Bus <500m
Straßenbahn <500m
Autobahnanschluss <5.000m
Bahnhof <1.000m
Flughafen <9.500m
Angaben Entfernung Luftlinie / Quelle: OpenStreetMap
Objektdaten
Ausstattung
- Barrierefrei
- Fahrradraum
- Bad mit Dusche
- Fliesenboden
- Parkettboden
- Fern Befeuerung
Dokumente / Links
Zustand
- Baujahr
- 2014
- Alter
- NEUBAU
- HWB
- 42.2 kWh/m² pro Jahr
- Klasse HWB
- B
- fGEE
- 0.91
- Klasse fGEE
- B
Flächen
- Anzahl der Zimmer
- 1
- Anzahl der Logia
- 1
- Wohnfläche
- 34m²
Kosten
- Gesamtmiete Brutto
- € 579,00
- Miete
- € 416,30
- Betriebskosten
- € 110,06
- Umsatzsteuer
- € 52,64
- Monatl. Gesamtbelastung Brutto
- € 579,00
Verwaltung
- Verfügbar ab
- ab sofort
- Mietdauer
- bis 5,0 Jahre
Wohnungen zum Mieten in Österreich
Wohnungen zum Mieten in Österreich
Andere Besucher suchen nach...
- Grundstücke kaufen in 3400 Weidlingbach
- Wohnungen kaufen in 4663 Laakirchen
- Häuser in 7471 Rechnitz
- Wohnungen in 2410 Hainburg an der Donau
- Häuser kaufen in 2432 Schwadorf
- Wohnungen kaufen in 3002 Purkersdorf
- Häuser in 3150 Wilhelmsburg
- Wohnungen kaufen in 3470 Engelmannsbrunn
- Grundstücke kaufen im Bezirk Mattersburg
- Grundstücke kaufen im Bezirk Gmunden