Neuwertige, geförderte 2 Zimmer Wohnung in zentraler Lage - Idlhofgasse 70 - Top 57
-
2023
-
kurzfristig
Beschreibung
Das Objekt "Idlhofgasse 70 I Wohnen in der City" bietet Ihnen innerstädtisches Wohnen mit ausgezeichneter Infrastruktur. Mit der geräumigen Wohnküche und dem Schlafzimmer ist diese Wohnung ein perfektes Zuhause für Singles, Paare u. Familien. RAUMAUFTEILUNG: Vorraum, offenen Wohnküche, Schlafzimmer, Bad/Toiletten, Kellerabteil. AUSSTATTUNG : Die Wohnung ist mit hochwertigen Parkettböden im Wohn- und Schlafraum sowie schönen Fliesen im Bad ausgestattet. Das Badezimmer ist unter anderem mit einer Dusche und einem Waschmaschinenanschluss ausgestattet. Darüber hinaus verfügt die Wohnung über eine exklusive Einbauküche inklusive Elektrogeräten. Dieser Wohnung ist auch ein Kellerabteil zugeteilt. LAGE: ruhige und zentrale Lage in der Idlhofgasse 70 PARKEN: Es...
Das Objekt "Idlhofgasse 70 I Wohnen in der City" bietet Ihnen innerstädtisches Wohnen mit ausgezeichneter Infrastruktur. Mit der geräumigen Wohnküche und dem Schlafzimmer ist diese Wohnung ein perfektes Zuhause für Singles, Paare u. Familien.
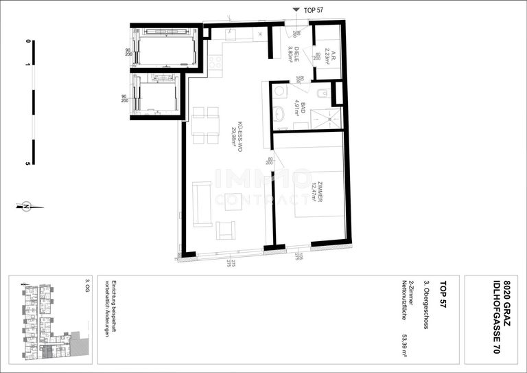
RAUMAUFTEILUNG: Vorraum, offenen Wohnküche, Schlafzimmer, Bad/Toiletten, Kellerabteil.
AUSSTATTUNG : Die Wohnung ist mit hochwertigen Parkettböden im Wohn- und Schlafraum sowie schönen Fliesen im Bad ausgestattet. Das Badezimmer ist unter anderem mit einer Dusche und einem Waschmaschinenanschluss ausgestattet. Darüber hinaus verfügt die Wohnung über eine exklusive Einbauküche inklusive Elektrogeräten. Dieser Wohnung ist auch ein Kellerabteil zugeteilt.
LAGE: ruhige und zentrale Lage in der Idlhofgasse 70
PARKEN: Es besteht die Möglichkeit, Parkplätze in der hauseigenen Tiefgarage (ab € 75,00 ) anzumieten.
Der Immobilienmakler erklärt, dass er - entgegen dem in der Immobilienwirtschaft üblichen Geschäftsgebrauch des Doppelmaklers - einseitig nur für den Vermieter tätig ist.
Wir weisen darauf hin, dass zwischen dem Vermittler und dem zu vermittelnden Dritten ein familiäres oder wirtschaftliches Naheverhältnis besteht.
Der Immobilienmakler erklärt, dass er – entgegen dem in der Immobilienwirtschaft üblichen Geschäftsgebrauch des Doppelmaklers – einseitig nur für den Vermieter tätig ist.
Infrastruktur / Entfernungen
Gesundheit
Arzt <200m
Apotheke <300m
Klinik <450m
Krankenhaus <550m
Kinder & Schulen
Schule <300m
Kindergarten <100m
Universität <1.125m
Höhere Schule <1.275m
Nahversorgung
Supermarkt <375m
Bäckerei <150m
Einkaufszentrum <600m
Sonstige
Geldautomat <550m
Bank <550m
Post <550m
Polizei <525m
Verkehr
Bus <175m
Straßenbahn <700m
Autobahnanschluss <3.800m
Bahnhof <725m
Flughafen <8.675m
Angaben Entfernung Luftlinie / Quelle: OpenStreetMap
Objektdaten
Ausstattung
- Fahrradraum
- Bad mit Dusche
- Einbauküche
- Offene Küche
- Fliesenboden
- Parkettboden
- Zentralheizung
- Fernwärme Heizung
- Fußbodenheizung
- Personen Fahrstuhl
- Massiv Bauweise
Zustand
- Zustand
- NEUWERTIG
- Baujahr
- 2023
- HWB
- 30.92 kWh/m² pro Jahr
- Klasse HWB
- B
- fGEE
- 0.75
- Klasse fGEE
- A
Flächen
- Anzahl der Zimmer
- 2
- Anzahl der Badezimmer
- 1
- Anzahl der sep. WCs
- 1
- Wohnfläche
- 53m²
- Kellerfläche
- 3m²
Kosten
- Gesamtmiete Brutto
- € 598,76
- Miete
- € 442,41
- Betriebskosten
- € 101,92
- Heizkosten
- € 46,71
- Umsatzsteuer
- € 63,77
- Monatl. Gesamtbelastung Brutto
- € 654,81
Verwaltung
- Verfügbar ab
- kurzfristig
Wohnungen zum Mieten in Österreich
Wohnungen zum Mieten in Österreich
Andere Besucher suchen nach...
- Grundstücke kaufen in 3400 Weidlingbach
- Wohnungen kaufen in 4663 Laakirchen
- Häuser in 7471 Rechnitz
- Wohnungen in 2410 Hainburg an der Donau
- Häuser kaufen in 2432 Schwadorf
- Wohnungen kaufen in 3002 Purkersdorf
- Häuser in 3150 Wilhelmsburg
- Wohnungen kaufen in 3470 Engelmannsbrunn
- Grundstücke kaufen im Bezirk Mattersburg
- Grundstücke kaufen im Bezirk Gmunden