*51 m² hochwertige Wohnung in Reininghaus mit Balkon & Einbauküche – ab 1.2.26 verfügbar
-
ab 1.3.26
Beschreibung
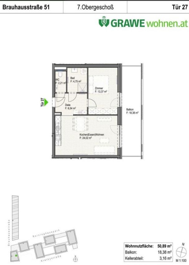
50,05 m² Wohnung in der Brauhausstraße 51 im 7. Stock mit Lift und BALKON bestehend aus,
- 1 Wohn- und Esszimmer mit Küche
- 1 Schlafzimmer
- Bad mit Dusche
- WC extra
- Vorraum
- Balkon ca 18 m²
- Kellerabteil
- verfügbar ab 1.3.2026
HWB (kwh/m²/Jahr): 24,72
Mietpreis: € 680,-- inkl. BK/UST exklusive Heizung und Strom Kaution: € 2100,-- PROVISIONSFREI
Konnte ich Ihre Interesse wecken?
Gerne vereinbare ich mit Ihnen einen Termin um weitere Details zu besprechen.
+43 676 36 06 620 (Wallner Manuela)
info@immo-kollektiv.at www.immo-kollektiv.com
Die angegebenen Daten stammen vom Eigentümer und/oder Dritten und wurden mit Sorgfalt...
50,05 m² Wohnung in der Brauhausstraße 51 im 7. Stock mit Lift und BALKON bestehend aus,
- 1 Wohn- und Esszimmer mit Küche
- 1 Schlafzimmer
- Bad mit Dusche
- WC extra
- Vorraum
- Balkon ca 18 m²
- Kellerabteil
- verfügbar ab 1.3.2026
HWB (kwh/m²/Jahr): 24,72
Mietpreis: € 680,-- inkl. BK/UST exklusive Heizung und Strom
Kaution: € 2100,--
PROVISIONSFREI
Konnte ich Ihre Interesse wecken?
Gerne vereinbare ich mit Ihnen einen Termin um weitere Details zu besprechen.
+43 676 36 06 620 (Wallner Manuela)
info@immo-kollektiv.at
www.immo-kollektiv.com
Die angegebenen Daten stammen vom Eigentümer und/oder Dritten und wurden mit Sorgfalt erhoben. Für die Richtigkeit und Vollständigkeit kann jedoch keine Haftung übernommen werden. Zahlenangaben können gegebenenfalls gerundet oder geschätzt sein. Das Angebot ist freibleibend und unverbindlich. Irrtümer und Änderungen sind vorbehalten. Nachdruck/Vervielfältigung nur mit Genehmigung der Prosi Immobilien e.U.
Der Immobilienmakler erklärt, dass er – entgegen dem in der Immobilienwirtschaft üblichen Geschäftsgebrauch des Doppelmaklers – einseitig nur für den Vermieter tätig ist.
Infrastruktur / Entfernungen
Gesundheit
Arzt <500m
Apotheke <1.500m
Klinik <500m
Krankenhaus <500m
Kinder & Schulen
Schule <1.000m
Kindergarten <500m
Universität <1.000m
Höhere Schule <1.000m
Nahversorgung
Supermarkt <500m
Bäckerei <500m
Einkaufszentrum <1.500m
Sonstige
Geldautomat <500m
Bank <500m
Post <1.000m
Polizei <1.000m
Verkehr
Bus <500m
Straßenbahn <500m
Autobahnanschluss <3.500m
Bahnhof <1.000m
Flughafen <9.000m
Angaben Entfernung Luftlinie / Quelle: OpenStreetMap
Objektdaten
Ausstattung
- Barrierefrei
- Gäste-WC
- Bad mit Badewanne
- Fernwärme Heizung
- Fern Befeuerung
- Personen Fahrstuhl
Zustand
- HWB
- 24.72 kWh/m² pro Jahr
- fGEE
- 0.79
Flächen
- Anzahl der Zimmer
- 1
- Anzahl der Badezimmer
- 1
- Anzahl der sep. WCs
- 1
- Anzahl der Balkone
- 1
- Wohnfläche
- 51m²
Kosten
- Gesamtmiete Brutto
- € 691,76
- Kaution
- € 2.100,00
- Miete
- € 691,76
- Monatl. Gesamtbelastung Brutto
- € 691,76
Verwaltung
- Verfügbar ab
- ab 1.3.26
Wohnungen zum Mieten in Österreich
Wohnungen zum Mieten in Österreich
Andere Besucher suchen nach...
- Grundstücke kaufen in 3400 Weidlingbach
- Wohnungen kaufen in 4663 Laakirchen
- Häuser in 7471 Rechnitz
- Wohnungen in 2410 Hainburg an der Donau
- Häuser kaufen in 2432 Schwadorf
- Wohnungen kaufen in 3002 Purkersdorf
- Häuser in 3150 Wilhelmsburg
- Wohnungen kaufen in 3470 Engelmannsbrunn
- Grundstücke kaufen im Bezirk Mattersburg
- Grundstücke kaufen im Bezirk Gmunden