Moderne 2-Zimmer-Wohnung mit Parkplatz in Bad Schallerbach
€ 898 / Monat
€ 15 / m²
4701 Bad Schallerbach
-
lt. Vereinbarung
Beschreibung
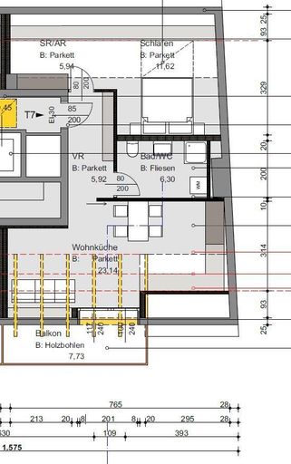
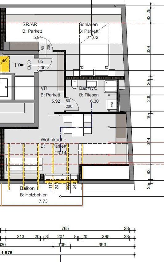
Moderne 2-Zimmer-Wohnung mit Parkplatz in Bad Schallerbach Diese attraktive, ca. 60 m² große Mietwohnung befindet sich in zentraler Lage in Bad Schallerbach im 2. Stock und überzeugt durch eine durchdachte Raumaufteilung sowie moderne Ausstattung. Die Wohnung eignet sich ideal für Singles oder Paare. Die Wohnung ist ab dem 01.05.2026 verfügbar. Raumaufteilung -Vorraum -Badezimmer inklusive WC und Waschmaschinenanschluss -Heller Küchen-, Wohn- und Essbereich -Schlafzimmer -Balkon Ausstattung & Highlights -Moderne Einbauküche im Mietpreis inkludiert -Praktischer Abstellraum für zusätzlichen Stauraum -Lift im Haus -Fix zugeordneter Parkplatz -Helle, freundliche Wohnräume Beheizt wird die Wohnung mittels einer Fußbodenheizung über die zentrale Gasheizung. Infrastrukturelle Einrichtungen wie...
Moderne 2-Zimmer-Wohnung mit Parkplatz in Bad Schallerbach
Diese attraktive, ca. 60 m² große Mietwohnung befindet sich in zentraler Lage in Bad Schallerbach im 2. Stock und überzeugt durch eine durchdachte Raumaufteilung sowie moderne Ausstattung. Die Wohnung eignet sich ideal für Singles oder Paare. Die Wohnung ist ab dem 01.05.2026 verfügbar.
Raumaufteilung
-Vorraum
-Badezimmer inklusive WC und Waschmaschinenanschluss
-Heller Küchen-, Wohn- und Essbereich
-Schlafzimmer
-Balkon
Ausstattung & Highlights
-Moderne Einbauküche im Mietpreis inkludiert
-Praktischer Abstellraum für zusätzlichen Stauraum
-Lift im Haus
-Fix zugeordneter Parkplatz
-Helle, freundliche Wohnräume
Beheizt wird die Wohnung mittels einer Fußbodenheizung über die zentrale Gasheizung.
Infrastrukturelle Einrichtungen wie Kindergarten, Schulen, Banken, Arzt und Supermärkte sind binnen weniger Minuten zu Fuß erreichbar.
Am Ort führen die Bundesstraßen 134 und 137 vorbei, Bus- und Bahnverbindung nach Wels, Grieskirchen und Linz, die Innkreisautobahn ist binnen weniger Minuten erreichbar.
Sollten wir Ihr Interesse geweckt haben, zögern Sie nicht lange und vereinbaren Sie noch heute einen Besichtigungstermin!
Kaution: € 2.697,-
Bad Schallerbach Card:
Jeder/Jede in Bad Schallerbach mit Hauptwohnsitz gemeldete Bewohner (in) ab 6 Jahren erhält die kostenlose Bad Schallerbach-Card mit Funktion Kundenkarte.
Bitte beachten Sie, dass wir aus Nachweispflicht gegenüber dem Eigentümer nur Anfragen mit vollständigem Namen und Anschrift bearbeiten können. Gerne senden wir Ihnen ein kostenloses Detailangebot zu. Alle Angaben basieren auf Informationen des Eigentümers bzw. Dritter und erfolgen ohne Gewähr.
Diese attraktive, ca. 60 m² große Mietwohnung befindet sich in zentraler Lage in Bad Schallerbach im 2. Stock und überzeugt durch eine durchdachte Raumaufteilung sowie moderne Ausstattung. Die Wohnung eignet sich ideal für Singles oder Paare. Die Wohnung ist ab dem 01.05.2026 verfügbar.
Raumaufteilung
-Vorraum
-Badezimmer inklusive WC und Waschmaschinenanschluss
-Heller Küchen-, Wohn- und Essbereich
-Schlafzimmer
-Balkon
Ausstattung & Highlights
-Moderne Einbauküche im Mietpreis inkludiert
-Praktischer Abstellraum für zusätzlichen Stauraum
-Lift im Haus
-Fix zugeordneter Parkplatz
-Helle, freundliche Wohnräume
Beheizt wird die Wohnung mittels einer Fußbodenheizung über die zentrale Gasheizung.
Infrastrukturelle Einrichtungen wie Kindergarten, Schulen, Banken, Arzt und Supermärkte sind binnen weniger Minuten zu Fuß erreichbar.
Am Ort führen die Bundesstraßen 134 und 137 vorbei, Bus- und Bahnverbindung nach Wels, Grieskirchen und Linz, die Innkreisautobahn ist binnen weniger Minuten erreichbar.
Sollten wir Ihr Interesse geweckt haben, zögern Sie nicht lange und vereinbaren Sie noch heute einen Besichtigungstermin!
Kaution: € 2.697,-
Bad Schallerbach Card:
Jeder/Jede in Bad Schallerbach mit Hauptwohnsitz gemeldete Bewohner (in) ab 6 Jahren erhält die kostenlose Bad Schallerbach-Card mit Funktion Kundenkarte.
Bitte beachten Sie, dass wir aus Nachweispflicht gegenüber dem Eigentümer nur Anfragen mit vollständigem Namen und Anschrift bearbeiten können. Gerne senden wir Ihnen ein kostenloses Detailangebot zu. Alle Angaben basieren auf Informationen des Eigentümers bzw. Dritter und erfolgen ohne Gewähr.
| Angaben gemäß gesetzlichem Erfordernis: | |||
| Miete | € | 590 | zzgl 10% USt. |
| Betriebskosten | € | 150 | zzgl 10% USt. |
| Heizkosten | € | 50 | zzgl 20% USt. |
| Autoabstellplatz | € | 20 | zzgl 20% USt. |
| Umsatzsteuer | € | 88 | |
| ------------------------------------------------------------------ | |||
| Gesamtbetrag | € | 898 | |
| ------------------------------------------------------------------ | |||
| Heizwärmebedarf: | 58.0 kWh/(m²a) | ||
| Klasse Heizwärmebedarf: | C | ||
Objektdaten
Ausstattung
- Unterkellert
- Zentralheizung
- Befeuerung mit Gas
- Küche Möbliert
- Zentralheizung mit Gas
Zustand
- Baujahr
- ca. 1991
Flächen
- Anzahl der Zimmer
- 2
- Anzahl der Badezimmer
- 1
- Anzahl der sep. WCs
- 1
- Anzahl der Balkone
- 1
- Stellplätze
- 1
- Wohnfläche
- 60m²
- Kellerfläche
- 3m²
Kosten
- Kaltmiete
- € 898,00
- Nebenkosten
- € 249,00
- Kaution
- € 2.697,00
- Betriebskosten Brutto
- € 165,00
- Heizkosten Brutto
- € 60,00
Verwaltung
- Verfügbar ab
- lt. Vereinbarung
- Mietdauer
- bis 3,0 Jahre
Wohnungen zum Mieten im Umkreis von Bad Schallerbach
Wohnungen zum Mieten in Österreich
Andere Besucher suchen nach...
- Immobilien kaufen in 2601 Sollenau
- Immobilien in 4951 Polling im Innkreis, Oberösterreich
- Immobilien in 4742 Pram, Oberösterreich kaufen oder mieten
- Häuser kaufen in 2340 Mödling, Niederösterreich
- Häuser kaufen in 9421 Gemmersdorf, Kärnten
- Wohnungen / Eigentumswohnungen kaufen in 9431 St. Stefan, Kärnten
- Häuser kaufen in Bruck an der Leitha, Niederösterreich
- Immobilien mieten in Krems an der Donau, Niederösterreich
- Häuser zum Kaufen im Bezirk St. Pölten Land, Niederösterreich
- Büro / Praxen mieten in Rohrbach, Oberösterreich