2-Zimmer-Wohnung in Grieskirchen – Ihr neues Zuhause wartet!
-
Kurzfristig
Beschreibung
Immobilienart: 2-Zimmer Wohnung
Lage/Objekt: Zentrum von Grieskirchen
Lage/Mietgegenstand: 2-Zimmer-Wohnung im 2. Obergeschoß (kein Lift)
Vermittlungstyp: Mietwohnung, befristetes Mietverhältnis
Wohnnutzfläche: ca. 62,37 m²
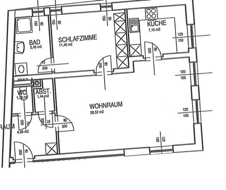
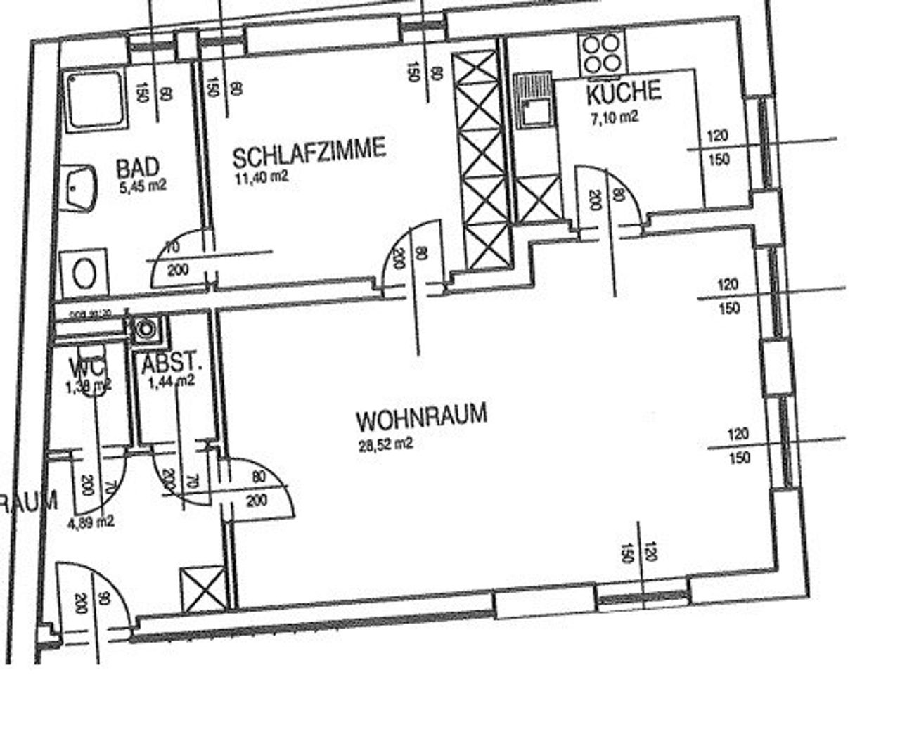
Raumaufteilung: Vorraum, Bad (mit Dusche), WC, Abstellraum, Küche, Wohn/Essbereich, Schlafzimmer
Zubehör: zugewiesenes Kellerabteil
Miete Wohnung:
Hauptmietzins inkl. 10 % USt 445,95 € Betriebskosten Akonto inkl. 10 % USt 195,53 € Heizkosten Akonto inkl. 20 % USt 71,10 € Gesamtmietzins 712,58 €
Mietbeginn/Dauer: nach Vereinbarung / befristetes Mietverhältnis
Kaution: Euro 2.000,00
Energiekennzahl: HWB-ref 111,5 kWh/m²a
Energiedaten: Energieausweis: liegt vor HWB: 111,50
Der Immobilienmakler erklärt,...
Immobilienart: 2-Zimmer Wohnung
Lage/Objekt: Zentrum von Grieskirchen
Lage/Mietgegenstand: 2-Zimmer-Wohnung im 2. Obergeschoß (kein Lift)
Vermittlungstyp: Mietwohnung, befristetes Mietverhältnis
Wohnnutzfläche: ca. 62,37 m²
Raumaufteilung: Vorraum, Bad (mit Dusche), WC, Abstellraum, Küche, Wohn/Essbereich, Schlafzimmer
Zubehör: zugewiesenes Kellerabteil
Miete Wohnung:
Hauptmietzins inkl. 10 % USt 445,95 €
Betriebskosten Akonto inkl. 10 % USt 195,53 €
Heizkosten Akonto inkl. 20 % USt 71,10 €
Gesamtmietzins 712,58 €
Mietbeginn/Dauer: nach Vereinbarung / befristetes Mietverhältnis
Kaution: Euro 2.000,00
Energiekennzahl: HWB-ref 111,5 kWh/m²a
Energiedaten:
Energieausweis: liegt vor
HWB: 111,50
Der Immobilienmakler erklärt, dass er – entgegen dem in der Immobilienwirtschaft üblichen Geschäftsgebrauch des Doppelmaklers – einseitig nur für den Vermieter tätig ist.
Infrastruktur / Entfernungen
Gesundheit
Arzt <500m
Apotheke <500m
Krankenhaus <1.500m
Kinder & Schulen
Schule <500m
Kindergarten <500m
Nahversorgung
Supermarkt <500m
Bäckerei <500m
Einkaufszentrum <500m
Sonstige
Bank <500m
Geldautomat <500m
Post <1.000m
Polizei <500m
Verkehr
Bus <500m
Bahnhof <1.000m
Autobahnanschluss <7.000m
Angaben Entfernung Luftlinie / Quelle: OpenStreetMap
Objektdaten
Ausstattung
- Zentralheizung
- Befeuerung mit Gas
Zustand
- HWB
- 111.5 kWh/m² pro Jahr
Flächen
- Anzahl der Zimmer
- 2
- Anzahl der Badezimmer
- 1
- Anzahl der sep. WCs
- 1
- Wohnfläche
- 62m²
- Gesamtfläche
- 62m²
Kosten
- Gesamtmiete Brutto
- € 601,79
- Kaution
- € 2.000,00
- Miete
- € 445,95
- Betriebskosten
- € 155,84
- Heizkosten
- € 44,90
- Monatl. Gesamtbelastung Brutto
- € 646,69
Verwaltung
- Verfügbar ab
- Kurzfristig
Wohnungen zum Mieten im Umkreis von Grieskirchen
Wohnungen zum Mieten im Umkreis von Grieskirchen
Wohnungen zum Mieten in Österreich
Andere Besucher suchen nach...
- Grundstücke kaufen in 3400 Weidlingbach
- Wohnungen kaufen in 4663 Laakirchen
- Häuser in 7471 Rechnitz
- Wohnungen in 2410 Hainburg an der Donau
- Häuser kaufen in 2432 Schwadorf
- Wohnungen kaufen in 3002 Purkersdorf
- Häuser in 3150 Wilhelmsburg
- Wohnungen kaufen in 3470 Engelmannsbrunn
- Grundstücke kaufen im Bezirk Mattersburg
- Grundstücke kaufen im Bezirk Gmunden