ruhige 2-Zimmer-Mietwohnung in Grieskirchen
-
Sofort
Beschreibung
Immobilienart: 2-Zimmer Wohnung
Lage/Objekt: Zentrum von Grieskirchen
Lage/Mietgegenstand: 2-Zimmer-Wohnung im 1. Obergeschoß (kein Lift)
Vermittlungstyp: Mietwohnung, befristetes Mietverhältnis, Kündigung nach Ablauf des ersten Mietjahres zu jedem Monatsletzten, unter Einhaltung einer 3-monatigen Frist möglich.
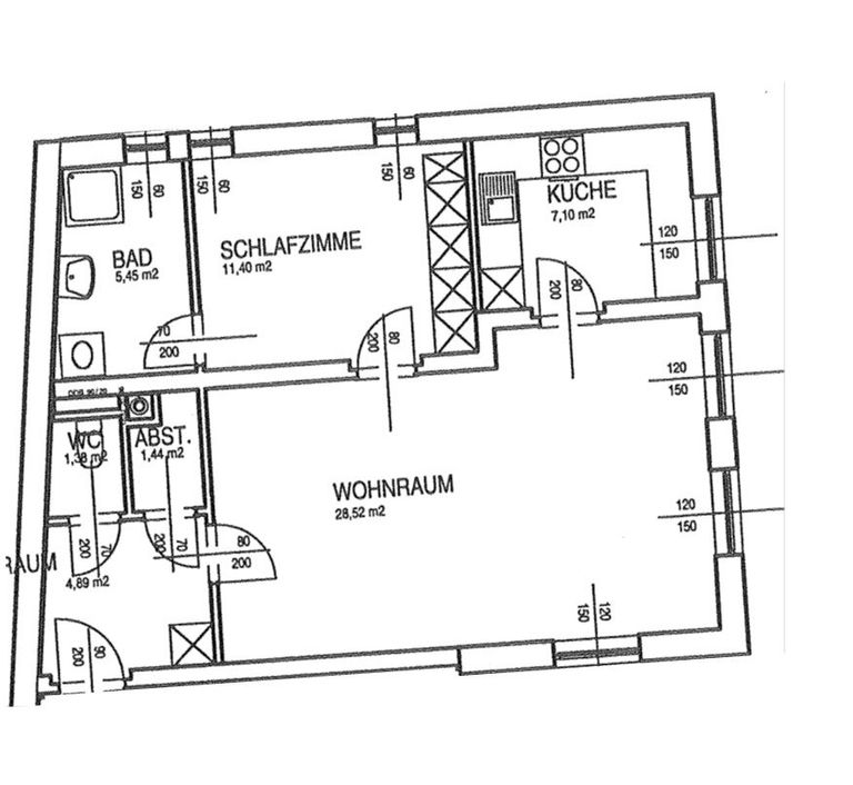
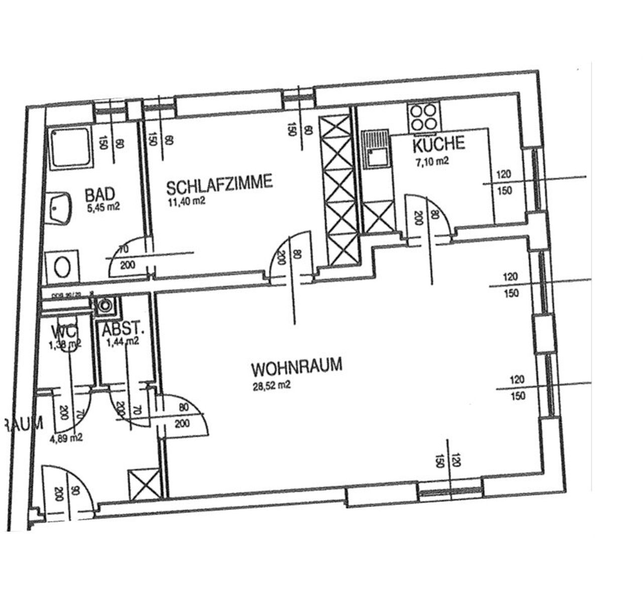
Wohnnutzfläche: ca. 62,49 m²
Detailbeschreibung: Diese ca. 62 m² große Wohnung befindet sich in zentraler Lage der Stadtgemeinde Grieskirchen und ist nur ca. 3 Gehminuten vom Stadtplatz entfernt. Die Wohnung befindet sich im ersten Obergeschoß und besticht durch eine gute Raumaufteilung.
Raumaufteilung: Vorraum, Abstellraum, Bad,...
Immobilienart: 2-Zimmer Wohnung
Lage/Objekt: Zentrum von Grieskirchen
Lage/Mietgegenstand: 2-Zimmer-Wohnung im 1. Obergeschoß (kein Lift)
Vermittlungstyp: Mietwohnung, befristetes Mietverhältnis, Kündigung nach Ablauf des ersten Mietjahres zu jedem Monatsletzten, unter Einhaltung einer 3-monatigen Frist möglich.
Wohnnutzfläche: ca. 62,49 m²
Detailbeschreibung: Diese ca. 62 m² große Wohnung befindet sich in zentraler Lage der Stadtgemeinde Grieskirchen und ist nur ca. 3 Gehminuten vom Stadtplatz entfernt. Die Wohnung befindet sich im ersten Obergeschoß und besticht durch eine gute Raumaufteilung.
Raumaufteilung: Vorraum, Abstellraum, Bad, WC, Küche, Wohn/Essbereich, Schlafzimmer
Ein PKW-Stellplatz kann optional angemietet werden.
Miete Wohnung:
Monatsmiete inkl. 10 % USt 446,80 €
Betriebskosten Akonto inkl. 10 % USt 195,91 €
Heizkosten Akonto inkl. 20 % USt 71,24 €
Gesamtmietzins 713,95 €/Monat
Mietbeginn/Dauer: ab sofort
befristetes Mietverhältnis
Kaution: Euro 2.000,00mittels Überweisung
Energiekennzahl: HWB-ref 133 kWh/m²a
Energiedaten:
Energieausweis: liegt vor
HWB: 133,00
Der Immobilienmakler erklärt, dass er – entgegen dem in der Immobilienwirtschaft üblichen Geschäftsgebrauch des Doppelmaklers – einseitig nur für den Vermieter tätig ist.
Infrastruktur / Entfernungen
Gesundheit
Arzt <500m
Apotheke <500m
Krankenhaus <1.000m
Kinder & Schulen
Schule <500m
Kindergarten <500m
Nahversorgung
Supermarkt <500m
Bäckerei <500m
Einkaufszentrum <500m
Sonstige
Bank <500m
Geldautomat <500m
Post <500m
Polizei <500m
Verkehr
Bus <500m
Bahnhof <1.000m
Autobahnanschluss <7.000m
Angaben Entfernung Luftlinie / Quelle: OpenStreetMap
Objektdaten
Ausstattung
- Zentralheizung
- Befeuerung mit Gas
Zustand
- HWB
- 133 kWh/m² pro Jahr
Flächen
- Anzahl der Zimmer
- 2
- Anzahl der Badezimmer
- 1
- Anzahl der sep. WCs
- 1
- Stellplätze
- 1
- Wohnfläche
- 62m²
- Gesamtfläche
- 62m²
Kosten
- Gesamtmiete Brutto
- € 602,95
- Kaution
- € 2.000,00
- Miete
- € 446,80
- Betriebskosten
- € 156,15
- Heizkosten
- € 44,99
- Monatl. Gesamtbelastung Brutto
- € 647,94
Verwaltung
- Verfügbar ab
- Sofort
Wohnungen zum Mieten im Umkreis von Grieskirchen
Wohnungen zum Mieten im Umkreis von Grieskirchen
Wohnungen zum Mieten in Österreich
Andere Besucher suchen nach...
- Grundstücke kaufen in 3400 Weidlingbach
- Wohnungen kaufen in 4663 Laakirchen
- Häuser in 7471 Rechnitz
- Wohnungen in 2410 Hainburg an der Donau
- Häuser kaufen in 2432 Schwadorf
- Wohnungen kaufen in 3002 Purkersdorf
- Häuser in 3150 Wilhelmsburg
- Wohnungen kaufen in 3470 Engelmannsbrunn
- Grundstücke kaufen im Bezirk Mattersburg
- Grundstücke kaufen im Bezirk Gmunden