2-Zimmer-Wohnung Nähe Hauptplatz in 3730 Eggenburg
Beschreibung
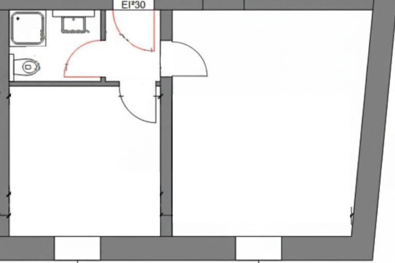
Diese charmante 2-Zimmer-Wohnung überzeugt durch ihre durchdachte Raumaufteilung. In der Wohnung erwarten Sie eine moderne Wohnküche mit bereits eingebauter Küchenzeile inklusive Geräten, ein nettes Schlafzimmer sowie Badezimmer mit Dusche und WC. Darüber hinaus stehen ein Allgemeinflächen wie ein Fahrradraum und ein Kinderwagenraum zur Verfügung. Ein Kellerabteil ist der Wohnung zugewiesen.
Im Überblick:
- Wohnküche mit eingebauter Küchenzeile inkl. Geräte
- Schlafzimmer
- Badezimmer mit WC
- Kellerabteil
- Allgemeinflächen: Fahrradraum, Kinderwagenraum
- Aufzug
In der Gesamtbelastung von 575 Euro sind die Betriebskosten, Heizkosten und das Warmwasser enthalten.
Noch nichts gefunden? Wir informieren Sie über geeignete Immobilienangebote noch vor allen anderen. Legen...
Diese charmante 2-Zimmer-Wohnung überzeugt durch ihre durchdachte Raumaufteilung. In der Wohnung erwarten Sie eine moderne Wohnküche mit bereits eingebauter Küchenzeile inklusive Geräten, ein nettes Schlafzimmer sowie Badezimmer mit Dusche und WC. Darüber hinaus stehen ein Allgemeinflächen wie ein Fahrradraum und ein Kinderwagenraum zur Verfügung. Ein Kellerabteil ist der Wohnung zugewiesen.
Im Überblick:
- Wohnküche mit eingebauter Küchenzeile inkl. Geräte
- Schlafzimmer
- Badezimmer mit WC
- Kellerabteil
- Allgemeinflächen: Fahrradraum, Kinderwagenraum
- Aufzug
In der Gesamtbelastung von 575 Euro sind die Betriebskosten, Heizkosten und das Warmwasser enthalten.
Noch nichts gefunden? Wir informieren Sie über geeignete Immobilienangebote noch vor allen anderen.
Legen Sie jetzt Ihren individuellen Suchagenten unter folgendem Link an. Wir schicken Ihnen passende Immobilien exklusiv vorab zu.
Suchagent anlegen - https://levanto.service.immo/registrieren/de
Wir weisen darauf hin, dass zwischen dem Vermittler und dem zu vermittelnden Dritten ein wirtschaftliches Naheverhältnis mit gesellschaftlicher Verflechtung besteht.
Der Immobilienmakler erklärt, dass er – entgegen dem in der Immobilienwirtschaft üblichen Geschäftsgebrauch des Doppelmaklers – einseitig nur für den Vermieter tätig ist.
Infrastruktur / Entfernungen
Gesundheit
Arzt <8.000m
Apotheke <500m
Klinik <1.000m
Kinder & Schulen
Kindergarten <7.500m
Schule <7.500m
Höhere Schule <7.000m
Nahversorgung
Supermarkt <500m
Bäckerei <500m
Sonstige
Bank <500m
Geldautomat <500m
Post <500m
Polizei <1.500m
Verkehr
Bus <500m
Bahnhof <500m
Angaben Entfernung Luftlinie / Quelle: OpenStreetMap
Objektdaten
Ausstattung
- Kabel/SAT-TV
- Fahrradraum
- Bad mit Dusche
- Einbauküche
- Fliesenboden
- Laminatboden
- Zentralheizung
- Fern Befeuerung
- Personen Fahrstuhl
- Massiv Bauweise
Zustand
- HWB
- 108 kWh/m² pro Jahr
- Klasse HWB
- D
- fGEE
- 1.83
- Klasse fGEE
- D
Flächen
- Anzahl der Zimmer
- 2
- Anzahl der Badezimmer
- 1
- Wohnfläche
- 40m²
Kosten
- Gesamtmiete Brutto
- € 540,75
- Kaution
- € 1.725,00
- Miete
- € 427,38
- Betriebskosten
- € 64,21
- Heizkosten
- € 28,54
- Umsatzsteuer
- € 54,87
- Monatl. Gesamtbelastung Brutto
- € 575,00
Wohnungen zum Mieten im Umkreis von Eggenburg
Wohnungen zum Mieten im Umkreis von Eggenburg
Wohnungen zum Mieten in Österreich
Andere Besucher suchen nach...
- Grundstücke kaufen in 3400 Weidlingbach
- Wohnungen kaufen in 4663 Laakirchen
- Häuser in 7471 Rechnitz
- Wohnungen in 2410 Hainburg an der Donau
- Häuser kaufen in 2432 Schwadorf
- Wohnungen kaufen in 3002 Purkersdorf
- Häuser in 3150 Wilhelmsburg
- Wohnungen kaufen in 3470 Engelmannsbrunn
- Grundstücke kaufen im Bezirk Mattersburg
- Grundstücke kaufen im Bezirk Gmunden