Donau-Uni & IMC Nähe: 146m² Stilaltbau mit Fischgrätparkett & Flügeltüren
-
01.05.2026
Beschreibung
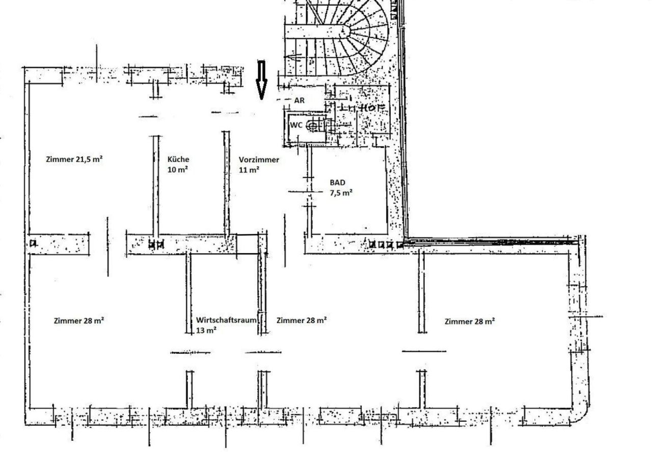
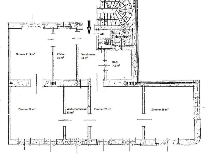
145,64 m² Wohnfläche 1. Stock ohne Lift – Sofortbezug
Raumaufteilung: Vorzimmer, 5 Zimmer, Küche, Tageslichtbadezimmer mit Dusche, Toilette, Abstellraum
Ausstattung: Hohe Decken mit rund 3,10 Meter, Fischgrätparketten, Stilaltbau Flügeltüren, Kassettentüren und Zargen, Einbauküche
Miete gesamt: € 1.699,- inkl. BK/USt.
Kaution: 3 BMM
Parksituation: Anwohner mit Hauptwohnsitz in der Zone können eine Bewohnerparkkarte beantragen und zeitlich unbegrenzt parken
Wir weisen darauf hin, dass zwischen dem Vermittler und dem zu vermittelnden Dritten ein familiäres oder wirtschaftliches Naheverhältnis besteht.
Der Immobilienmakler erklärt, dass er – entgegen dem in der Immobilienwirtschaft üblichen Geschäftsgebrauch des...
145,64 m² Wohnfläche
1. Stock ohne Lift – Sofortbezug
Raumaufteilung: Vorzimmer, 5 Zimmer, Küche, Tageslichtbadezimmer mit Dusche, Toilette, Abstellraum
Ausstattung: Hohe Decken mit rund 3,10 Meter, Fischgrätparketten, Stilaltbau Flügeltüren, Kassettentüren und Zargen, Einbauküche
Miete gesamt: € 1.699,- inkl. BK/USt.
Kaution: 3 BMM
Parksituation: Anwohner mit Hauptwohnsitz in der Zone können eine Bewohnerparkkarte beantragen und zeitlich unbegrenzt parken
Wir weisen darauf hin, dass zwischen dem Vermittler und dem zu vermittelnden Dritten ein familiäres oder wirtschaftliches Naheverhältnis besteht.
Der Immobilienmakler erklärt, dass er – entgegen dem in der Immobilienwirtschaft üblichen Geschäftsgebrauch des Doppelmaklers – einseitig nur für den Vermieter tätig ist.
Infrastruktur / Entfernungen
Gesundheit
Arzt <250m
Apotheke <750m
Klinik <500m
Krankenhaus <2.000m
Kinder & Schulen
Schule <500m
Kindergarten <500m
Universität <500m
Höhere Schule <500m
Nahversorgung
Supermarkt <500m
Bäckerei <250m
Einkaufszentrum <2.500m
Sonstige
Geldautomat <750m
Bank <750m
Post <1.000m
Polizei <750m
Verkehr
Bus <250m
Autobahnanschluss <2.500m
Bahnhof <500m
Flughafen <5.500m
Angaben Entfernung Luftlinie / Quelle: OpenStreetMap
Objektdaten
Ausstattung
- Kabel/SAT-TV
- DVBT
- Seniorengerecht
- Bad mit Dusche
- Bad mit Fenster
- Einbauküche
- Fliesenboden
- Parkettboden
- Etage Heizung
- Befeuerung mit Gas
- Massiv Bauweise
- WG geeignet
Zustand
- Zustand
- TEIL_VOLLRENOVIERT
- Baujahr
- 1900
- Alter
- ALTBAU
- HWB
- 181.8 kWh/m² pro Jahr
- Klasse HWB
- E
- fGEE
- 2.7
- Klasse fGEE
- E
Flächen
- Anzahl der Zimmer
- 5
- Anzahl der Badezimmer
- 1
- Anzahl der sep. WCs
- 1
- Wohnfläche
- 146m²
Kosten
- Gesamtmiete Brutto
- € 1.699,00
- Miete
- € 1.179,13
- Betriebskosten
- € 365,42
- Umsatzsteuer
- € 154,45
- Monatl. Gesamtbelastung Brutto
- € 1.699,00
Verwaltung
- Verfügbar ab
- 01.05.2026, ab 01. 05. 2026
Wohnungen zum Mieten in Österreich
Wohnungen zum Mieten in Österreich
Wohnungen zum Mieten in Österreich
Andere Besucher suchen nach...
- Grundstücke kaufen in 3400 Weidlingbach
- Wohnungen kaufen in 4663 Laakirchen
- Häuser in 7471 Rechnitz
- Wohnungen in 2410 Hainburg an der Donau
- Häuser kaufen in 2432 Schwadorf
- Wohnungen kaufen in 3002 Purkersdorf
- Häuser in 3150 Wilhelmsburg
- Wohnungen kaufen in 3470 Engelmannsbrunn
- Grundstücke kaufen im Bezirk Mattersburg
- Grundstücke kaufen im Bezirk Gmunden