Erstbezug -Gartenwohnung! 3 Zimmer mit 2 Balkonen außergewöhnlich großem Privatgarten – ideal für Familien
€ 1.391 / Monat
€ 19 / m²
4470 Enns
-
Erstbezug
-
2026
Beschreibung
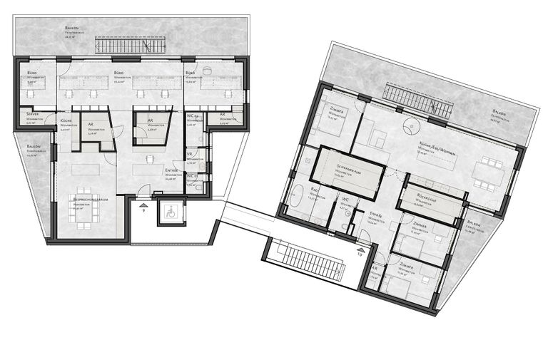
Die moderne Wohnanlage bietet zeitgemäße Mietwohnungen in guter Lage von Enns und wird 2026 fertiggestellt! Wohnungsdetails auf einen Blick • 3-Zimmer-Garten-Mietwohnung im Erdgeschoss • Wohnfläche ca. 75 m² • 2 Balkone ca. 37 m², Ausrichtung Osten und Süden • Highlight: Privatgarten über 185 m² (Ost bis West entlang der Wohnung) • Geräumige Ess-Wohnküche mit Balkonzugang • Schlafzimmer mit Balkonzugang • Zusätzliches Zimmer als Büro oder Kinderzimmer mit Balkonzugang • Badezimmer mit Dusche und Badewanne • Separate Toilette • Abstellraum / Stauraum • Vorraum Diese exklusive 3-Zimmer-Garten-Mietwohnung im Erdgeschoss besticht durch einen riesigen Privatgarten von über 185 m², der sich entlang...
Die moderne Wohnanlage bietet zeitgemäße Mietwohnungen in guter Lage von Enns und wird 2026 fertiggestellt!
Wohnungsdetails auf einen Blick
• 3-Zimmer-Garten-Mietwohnung im Erdgeschoss
• Wohnfläche ca. 75 m²
• 2 Balkone ca. 37 m², Ausrichtung Osten und Süden
• Highlight: Privatgarten über 185 m² (Ost bis West entlang der Wohnung)
• Geräumige Ess-Wohnküche mit Balkonzugang
• Schlafzimmer mit Balkonzugang
• Zusätzliches Zimmer als Büro oder Kinderzimmer mit Balkonzugang
• Badezimmer mit Dusche und Badewanne
• Separate Toilette
• Abstellraum / Stauraum
• Vorraum
Diese exklusive 3-Zimmer-Garten-Mietwohnung im Erdgeschoss besticht durch einen riesigen Privatgarten von über 185 m², der sich entlang der Wohnung von Osten bis Westen erstreckt. Ergänzt wird das Highlight durch zwei Balkone mit Ost- und Südausrichtung (insgesamt 37 m²), die für zusätzliche Freiflächen sorgen. Die Wohnfläche beträgt ca. 75 m².
Die Wohnung verfügt über eine geräumige Ess-Wohnküche mit Balkonzugang, ein Schlafzimmer mit Balkonzugang, ein weiteres Zimmer als Büro oder Kinderzimmer mit Balkonzugang, einen Abstellraum, ein Badezimmer mit Dusche und Badewanne, eine separate Toilette sowie einen Vorraum.
Ideal für Familien oder Paare, die großzügige Außenflächen und vielseitige Wohnräume schätzen und im Freien privaten Garten genießen möchten.
Das Gebäude ist vollständig unterkellert, wobei jeder Wohnung ein eigenes Kellerabteil zugeordnet ist. Tiefgaragenstellplätze stehen zur Verfügung und können zusätzlich angemietet werden. Ein Personenlift erschließt alle Geschosse des viergeschossigen Wohnbaus.
Das Naherholungsgebiet Eichberg befindet sich in unmittelbarer Nähe und bietet vielfältige Möglichkeiten für Freizeit, Sport und Erholung. Ebenso sind ein Erlebnisfreibad sowie weitere Sporteinrichtungen in unmittelbarer Umgebung.
Der Hauptplatz von Enns mit Restaurants, Gastronomiebetrieben und kulturellen Angeboten ist in etwa 10 Gehminuten erreichbar und Geschäfte des täglichen Bedarfs befinden sich ebenfalls in fußläufiger Distanz.
Der Fußweg zu Bus- und Bahnanschlüssen ist maximal 15 Minuten und mit dem Auto beträgt die Fahrtzeit nach Linz, Amstetten oder Steyr rund 25 Minuten.
Der Mietpreis Brutto inkl. Betriebskosten EUR 1.391,36.
Nicht enthalten sind die Heizkosten (Fernwärme) sowie Strom- und Wasserkosten. Diese werden verbrauchsabhängig direkt verrechnet. Die Wohnung wird ohne Küche und Küchengeräte vermietet. Auf Wunsch kann der Vermieter eine Küche einbauen, deren Kosten über 10 Jahre zusätzlich zur Miete umgelegt werden.
In diesem Wohnblock warten weitere attraktive Wohnungen auf Sie – wir informieren Sie gerne!
Detaillierte Informationen erhalten Sie gerne auf Anfrage.
Um die rasche Übermittlung näherer Informationen und Unterlagen samt Adresse zu gewährleisten, übermitteln Sie uns bitte Ihre VOLLSTÄNDIGEN KONTAKTDATEN (Vor- und Nachname, aktuelle Wohnadresse, Telefonnummer und E-Mail-Adresse).
Ich freue mich auf Ihre Anfrage!
Wohnungsdetails auf einen Blick
• 3-Zimmer-Garten-Mietwohnung im Erdgeschoss
• Wohnfläche ca. 75 m²
• 2 Balkone ca. 37 m², Ausrichtung Osten und Süden
• Highlight: Privatgarten über 185 m² (Ost bis West entlang der Wohnung)
• Geräumige Ess-Wohnküche mit Balkonzugang
• Schlafzimmer mit Balkonzugang
• Zusätzliches Zimmer als Büro oder Kinderzimmer mit Balkonzugang
• Badezimmer mit Dusche und Badewanne
• Separate Toilette
• Abstellraum / Stauraum
• Vorraum
Diese exklusive 3-Zimmer-Garten-Mietwohnung im Erdgeschoss besticht durch einen riesigen Privatgarten von über 185 m², der sich entlang der Wohnung von Osten bis Westen erstreckt. Ergänzt wird das Highlight durch zwei Balkone mit Ost- und Südausrichtung (insgesamt 37 m²), die für zusätzliche Freiflächen sorgen. Die Wohnfläche beträgt ca. 75 m².
Die Wohnung verfügt über eine geräumige Ess-Wohnküche mit Balkonzugang, ein Schlafzimmer mit Balkonzugang, ein weiteres Zimmer als Büro oder Kinderzimmer mit Balkonzugang, einen Abstellraum, ein Badezimmer mit Dusche und Badewanne, eine separate Toilette sowie einen Vorraum.
Ideal für Familien oder Paare, die großzügige Außenflächen und vielseitige Wohnräume schätzen und im Freien privaten Garten genießen möchten.
Das Gebäude ist vollständig unterkellert, wobei jeder Wohnung ein eigenes Kellerabteil zugeordnet ist. Tiefgaragenstellplätze stehen zur Verfügung und können zusätzlich angemietet werden. Ein Personenlift erschließt alle Geschosse des viergeschossigen Wohnbaus.
Das Naherholungsgebiet Eichberg befindet sich in unmittelbarer Nähe und bietet vielfältige Möglichkeiten für Freizeit, Sport und Erholung. Ebenso sind ein Erlebnisfreibad sowie weitere Sporteinrichtungen in unmittelbarer Umgebung.
Der Hauptplatz von Enns mit Restaurants, Gastronomiebetrieben und kulturellen Angeboten ist in etwa 10 Gehminuten erreichbar und Geschäfte des täglichen Bedarfs befinden sich ebenfalls in fußläufiger Distanz.
Der Fußweg zu Bus- und Bahnanschlüssen ist maximal 15 Minuten und mit dem Auto beträgt die Fahrtzeit nach Linz, Amstetten oder Steyr rund 25 Minuten.
Der Mietpreis Brutto inkl. Betriebskosten EUR 1.391,36.
Nicht enthalten sind die Heizkosten (Fernwärme) sowie Strom- und Wasserkosten. Diese werden verbrauchsabhängig direkt verrechnet. Die Wohnung wird ohne Küche und Küchengeräte vermietet. Auf Wunsch kann der Vermieter eine Küche einbauen, deren Kosten über 10 Jahre zusätzlich zur Miete umgelegt werden.
In diesem Wohnblock warten weitere attraktive Wohnungen auf Sie – wir informieren Sie gerne!
Detaillierte Informationen erhalten Sie gerne auf Anfrage.
Um die rasche Übermittlung näherer Informationen und Unterlagen samt Adresse zu gewährleisten, übermitteln Sie uns bitte Ihre VOLLSTÄNDIGEN KONTAKTDATEN (Vor- und Nachname, aktuelle Wohnadresse, Telefonnummer und E-Mail-Adresse).
Ich freue mich auf Ihre Anfrage!
| Angaben gemäß gesetzlichem Erfordernis: | |||
| Miete | € | 1054,06 | zzgl 10% USt. |
| Betriebskosten | € | 210,81 | zzgl 10% USt. |
| Umsatzsteuer | € | 126,49 | |
| ------------------------------------------------------------------ | |||
| Gesamtbetrag | € | 1391,36 | |
Objektdaten
Ausstattung
- Unterkellert
- Personen Fahrstuhl
- Neubaustandard
Zustand
- Zustand
- ERSTBEZUG
- Baujahr
- 2026
Flächen
- Anzahl der Zimmer
- 3
- Anzahl der Schlafzimmer
- 2
- Anzahl der Badezimmer
- 1
- Anzahl der sep. WCs
- 1
- Anzahl der Balkone
- 2
- Wohnfläche
- 75m²
- Gartenfläche
- 185m²
- Kellerfläche
- 2m²
Kosten
- Kaltmiete
- € 1.391,36
- Nebenkosten
- € 231,89
- Kaution
- € 4.200,00
- Betriebskosten Brutto
- € 231,89
Wohnungen zum Mieten in Österreich
Wohnungen zum Mieten in Österreich
Wohnungen zum Mieten in Österreich
Andere Besucher suchen nach...
- Grundstücke kaufen in 3400 Weidlingbach
- Wohnungen kaufen in 4663 Laakirchen
- Häuser in 7471 Rechnitz
- Wohnungen in 2410 Hainburg an der Donau
- Häuser kaufen in 2432 Schwadorf
- Wohnungen kaufen in 3002 Purkersdorf
- Häuser in 3150 Wilhelmsburg
- Wohnungen kaufen in 3470 Engelmannsbrunn
- Grundstücke kaufen im Bezirk Mattersburg
- Grundstücke kaufen im Bezirk Gmunden