Klassische, ruhige 2-Zimmer-Wohnung mit Loggia
€ 859 / Monat
€ 17 / m²
4020 Linz
-
sofort
Beschreibung
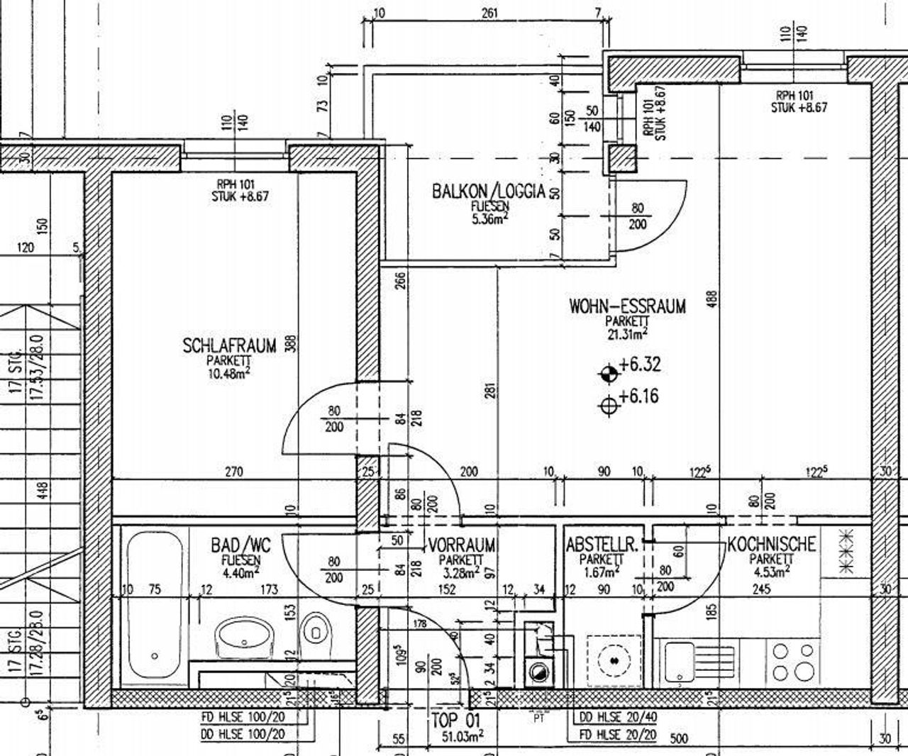
Die klassische ca. 51,03 m² große 2-Zimmer-Wohnung (inkl. Loggia!), befindet sich im 2. Obergeschoß (mit Lift!) eines 3-stöckigen Hauses in der Anastasius-Grün-Straße 26-28 in 4020 Linz. Die Wohnung besteht aus einem Vorraum, einem hellen Wohn- Esszimmer mit direktem Zugang zur südseitig ausgerichteten Loggia (ca. 5,36 m²), einer Kochnische mit angrenzendem Abstellraum (mit Waschmaschinenanschluß), einem Schlafzimmer und einem Badezimmer (mit Badewanne samt Duscharmaturen, Toilette und Waschbecken). Ein geräumiges Kellerabteil ist ebenfalls fixer Bestandteil dieser Mietimmobilie. Im Erdgeschoß befindet sich ein Fahrradabstellraum. Ein KFZ-Abstellplatz in der hauseigenen Tiefgarage kann zum Preis von EUR 60,-- (inkl. BK und USt.) angemietet werden! Die Stromkosten...
Die klassische ca. 51,03 m² große 2-Zimmer-Wohnung (inkl. Loggia!), befindet sich im 2. Obergeschoß (mit Lift!) eines 3-stöckigen Hauses in der Anastasius-Grün-Straße 26-28 in 4020 Linz.
Die Wohnung besteht aus einem Vorraum, einem hellen Wohn- Esszimmer mit direktem Zugang zur südseitig ausgerichteten Loggia (ca. 5,36 m²), einer Kochnische mit angrenzendem Abstellraum (mit Waschmaschinenanschluß), einem Schlafzimmer und einem Badezimmer (mit Badewanne samt Duscharmaturen, Toilette und Waschbecken).
Ein geräumiges Kellerabteil ist ebenfalls fixer Bestandteil dieser Mietimmobilie.
Im Erdgeschoß befindet sich ein Fahrradabstellraum.
Ein KFZ-Abstellplatz in der hauseigenen Tiefgarage kann zum Preis von EUR 60,-- (inkl. BK und USt.) angemietet werden!
Die Stromkosten sind in den angegebenen Preisen nicht inkludiert - der Liefervertrag muß mit dem gewünschten Anbieter direkt abgeschlossen werden!
Die Kosten für die Erstellung des Mietvertrages betragen einmalig EUR 375,--.
Für nähere Informationen sowie für die Terminvereinbarung einer gemeinsamen Besichtigung steht Ihnen Herr Norbert Riha unter 0664 - 21 605 12 gerne zur Verfügung.
Die Wohnung besteht aus einem Vorraum, einem hellen Wohn- Esszimmer mit direktem Zugang zur südseitig ausgerichteten Loggia (ca. 5,36 m²), einer Kochnische mit angrenzendem Abstellraum (mit Waschmaschinenanschluß), einem Schlafzimmer und einem Badezimmer (mit Badewanne samt Duscharmaturen, Toilette und Waschbecken).
Ein geräumiges Kellerabteil ist ebenfalls fixer Bestandteil dieser Mietimmobilie.
Im Erdgeschoß befindet sich ein Fahrradabstellraum.
Ein KFZ-Abstellplatz in der hauseigenen Tiefgarage kann zum Preis von EUR 60,-- (inkl. BK und USt.) angemietet werden!
Die Stromkosten sind in den angegebenen Preisen nicht inkludiert - der Liefervertrag muß mit dem gewünschten Anbieter direkt abgeschlossen werden!
Die Kosten für die Erstellung des Mietvertrages betragen einmalig EUR 375,--.
Für nähere Informationen sowie für die Terminvereinbarung einer gemeinsamen Besichtigung steht Ihnen Herr Norbert Riha unter 0664 - 21 605 12 gerne zur Verfügung.
| Angaben gemäß gesetzlichem Erfordernis: | |||
| Miete | € | 590,76 | zzgl 10% USt. |
| Betriebskosten | € | 94,41 | zzgl 10% USt. |
| Heizkosten | € | 37,76 | zzgl 20% USt. |
| Autoabstellplatz | € | 50 | zzgl 20% USt. |
| Umsatzsteuer | € | 86,07 | |
| ------------------------------------------------------------------ | |||
| Gesamtbetrag | € | 859 | |
| ------------------------------------------------------------------ | |||
| Heizwärmebedarf: | 55.0 kWh/(m²a) | ||
| Klasse Heizwärmebedarf: | C | ||
| Faktor Gesamtenergieeffizienz: | 1.18 | ||
| Klasse Faktor Gesamtenergieeffizienz: | C | ||
Objektdaten
Ausstattung
- Gartennutzung
- Rollstuhlgerecht
- Kabel/SAT-TV
- Barrierefrei
- Unterkellert
- Zentralheizung
- Fern Befeuerung
- Personen Fahrstuhl
- Neubaustandard
- Barrierefrei
- Bus
- Eisenbahn
- Gegensprechanlage
- Kabel/SAT-TV
- Küche Möbliert
- Sonstiges
- Rollstuhlgerecht
- Ruhe Lage
- Straßenbahn
- Zentralheizung mit Fernwärme
Dokumente / Links
Zustand
- Baujahr
- ca. 2000
- Alter
- NEUBAU
Flächen
- Anzahl der Zimmer
- 2
- Anzahl der Schlafzimmer
- 1
- Anzahl der Badezimmer
- 1
- Anzahl der sep. WCs
- 1
- Wohnfläche
- 51m²
- Kellerfläche
- 3m²
Kosten
- Kaltmiete
- € 859,00
- Nebenkosten
- € 149,16
- Kaution
- € 2.250,00
- Betriebskosten Brutto
- € 103,85
- Heizkosten Brutto
- € 45,31
Verwaltung
- Verfügbar ab
- sofort
- Mietdauer
- 1,0 Jahr bis 5,0 Jahre
Wohnungen zum Mieten in Österreich
Wohnungen zum Mieten in Österreich
Andere Besucher suchen nach...
- Immobilien kaufen in 2601 Sollenau
- Immobilien in 4951 Polling im Innkreis, Oberösterreich
- Immobilien in 4742 Pram, Oberösterreich kaufen oder mieten
- Häuser kaufen in 2340 Mödling, Niederösterreich
- Häuser kaufen in 9421 Gemmersdorf, Kärnten
- Wohnungen / Eigentumswohnungen kaufen in 9431 St. Stefan, Kärnten
- Häuser kaufen in Bruck an der Leitha, Niederösterreich
- Immobilien mieten in Krems an der Donau, Niederösterreich
- Häuser zum Kaufen im Bezirk St. Pölten Land, Niederösterreich
- Büro / Praxen mieten in Rohrbach, Oberösterreich