Fein wohnen an der Herrengasse!
-
Erstbezug
-
2022
-
sofort
Beschreibung
Geförderte Wohnung in Niedrigenergiebauweise mit PKW-Abstellplatz.
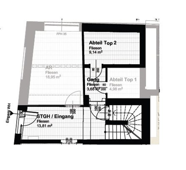
Im Obergeschoss des Bestandsobjekts befindet sich die Wohnungen mit ca. 72 m².
Die Wohnung besteht aus einer Wohnküche, zwei Schlafzimmern, Bad, WC und Abstellraum.
Die Nassräume, Abstellräume und der Eingangsbereich sind mit hochwertigen Fliesen und die Wohnräume mit eleganten Dekor Eiche Laminat ausgestattet.
Alle Sanitärelemente sind Fabrikate der Firma Vigour. Badewanne, Waschtische und WC sowie Anschlüsse für Waschmaschine sind vorhanden.
Die Versorgung mit Wärme erfolgt über Fernwärme. In der Wohnung befindet sich eine Wohnungsstation, in der das Warmwasser erhitzt wird.
Die Wärmeabgabe erfolgt über Radiatoren.
Die gesamte Wohnhausanlage wird mit einer Gemeinschafts-Photovoltaikanlage ausgestattet....
Geförderte Wohnung in Niedrigenergiebauweise mit PKW-Abstellplatz.
Im Obergeschoss des Bestandsobjekts befindet sich die Wohnungen mit ca. 72 m².
Die Wohnung besteht aus einer Wohnküche, zwei Schlafzimmern, Bad, WC und Abstellraum.
Die Nassräume, Abstellräume und der Eingangsbereich sind mit hochwertigen Fliesen und die Wohnräume mit eleganten Dekor Eiche Laminat ausgestattet.
Alle Sanitärelemente sind Fabrikate der Firma Vigour. Badewanne, Waschtische und WC sowie Anschlüsse für Waschmaschine sind vorhanden.
Die Versorgung mit Wärme erfolgt über Fernwärme. In der Wohnung befindet sich eine Wohnungsstation, in der das Warmwasser erhitzt wird.
Die Wärmeabgabe erfolgt über Radiatoren.
Die gesamte Wohnhausanlage wird mit einer Gemeinschafts-Photovoltaikanlage ausgestattet. Die Einspeisung erfolgt in den allgemeinen Zähler.
Die TV-Versorgung erfolgt über eine digitale SAT-Anlage (Astra-Satellit). Die Wohnung verfügt über einen vorbereiteten SAT-Anschluss im Wohnzimmer. Weitere SAT-Anschlüsse in anderen Räumen sind auf Sonderwunsch möglich.
Die Wohnhausanlage liegt im Zentrum von Neunkirchen, nur wenige Meter vom Hauptplatz entfernt, in absoluter Ruhelage
Neunkirchen ist ein essenzieller Verkehrsknotenpunkt, der Straßenverkehr ist durch die S6 Semmering-Schnellstraße, die A2 Südautobahn sowie die Wiener Straße B17 optimal erschlossen. Der Bahnhof Neunkirchen ist durch die Südbahn einfach zu erreichen und die Fahrzeiten zum Wiener Hauptbahnhof betragen, je nach Verbindungsart (Railjet, REX), lediglich 48 Minuten.
Die solide gewachsene Infrastruktur der Stadtgemeinde bietet nicht nur zahlreiche Nahversorger, Ärzte, Schulen und ein Landesklinikum in der Nähe an, sondern ermöglicht Ihnen auch einen Besuch im ortsansässigen Erholungszentrum mit integriertem Frei- und Hallenbad. Zahlreiche Einkaufsmöglichkeiten konzentrieren sich in der Innenstadt, im Panoramapark sowie auch im Handelsgebiet „Am Spitz“.
Miete (netto): 538,34 EUR
Betriebskosten (netto): 154,85 EUR
Umsatzsteuer (gesamt): 69,32 EUR
Gesamtmiete: 762,51 EUR
Baukostenanzahlung: 20.764,77 EUR
Der Immobilienmakler erklärt, dass er – entgegen dem in der Immobilienwirtschaft üblichen Geschäftsgebrauch des Doppelmaklers – einseitig nur für den Vermieter tätig ist.
Objektdaten
Ausstattung
- Kabel/SAT-TV
- Fahrradraum
- Gäste-WC
- Bad mit Badewanne
- Offene Küche
- Fliesenboden
- Laminatboden
- Fernwärme Heizung
- Solar
- Fern Befeuerung
- Massiv Bauweise
- Niedrigenergie
Zustand
- Zustand
- ERSTBEZUG
- Baujahr
- 2022
- Alter
- NEUBAU
- HWB
- 44 kWh/m² pro Jahr
- Klasse HWB
- B
- fGEE
- 0.68
- Klasse fGEE
- A+
Flächen
- Anzahl der Zimmer
- 3
- Anzahl der Badezimmer
- 1
- Anzahl der sep. WCs
- 1
- Stellplätze
- 1
- Wohnfläche
- 69m²
- Nutzfläche
- 80m²
- Kellerfläche
- 11m²
Kosten
- Gesamtmiete Brutto
- € 762,51
- Miete
- € 538,34
- Betriebskosten
- € 154,85
- Umsatzsteuer
- € 69,32
- Monatl. Gesamtbelastung Brutto
- € 762,51
Verwaltung
- Verfügbar ab
- sofort
Wohnungen zum Mieten im Umkreis von Neunkirchen
Wohnungen zum Mieten im Umkreis von Neunkirchen
Wohnungen zum Mieten in Österreich
Andere Besucher suchen nach...
- Grundstücke kaufen in 3400 Weidlingbach
- Wohnungen kaufen in 4663 Laakirchen
- Häuser in 7471 Rechnitz
- Wohnungen in 2410 Hainburg an der Donau
- Häuser kaufen in 2432 Schwadorf
- Wohnungen kaufen in 3002 Purkersdorf
- Häuser in 3150 Wilhelmsburg
- Wohnungen kaufen in 3470 Engelmannsbrunn
- Grundstücke kaufen im Bezirk Mattersburg
- Grundstücke kaufen im Bezirk Gmunden