ERSTES MONAT MIETFREI - moderne barrierefreie Wohnung mit Balkon und tollem Fernblick - inkl. Küche - Top 14
-
2023
-
sofort
Beschreibung
„Wohnen beim Kirchenwirt“ ist ein modernes Wohnbauprojekt entwickelt und geplant vom oberösterreichischem Projektenwickler Trio Development GmbH. Mitten im Innviertel enstand hier ein neuer Lebensraum mit 14 smart geplanten Mietwohnungen, Begegnungszonen und einer revitalisierten Wohnlandnachbarschaft.
Wer den alten Kirchenwirt kennt, der weiß um den Standort des Projekts. Das Revitalisierungsprojekt des ehemaligen „Kirchenwirt“ befindet sich direkt im Ortskern der gesunden Gemeinde Taiskirchen.
Auf drei Etagen enstanden diese freundlichen, barrierefreien Wohneinheiten mit 56-88m2 Wohnnutzfläche, dazugehörige Parkplätze und einer sorgfältig überlegten Gartenlandschaft mit liebevollen Details und Begegnungsarealen.
„Wohnen beim Kirchenwirt“, das bedeutet Wohnen mit Sinn.
Das spiegelt sich auch in den...
„Wohnen beim Kirchenwirt“ ist ein modernes Wohnbauprojekt entwickelt und geplant vom oberösterreichischem Projektenwickler Trio Development GmbH. Mitten im Innviertel enstand hier ein neuer Lebensraum mit 14 smart geplanten Mietwohnungen, Begegnungszonen und einer revitalisierten Wohnlandnachbarschaft.
Wer den alten Kirchenwirt kennt, der weiß um den Standort des Projekts. Das Revitalisierungsprojekt des ehemaligen „Kirchenwirt“ befindet sich direkt im Ortskern der gesunden Gemeinde Taiskirchen.
Auf drei Etagen enstanden diese freundlichen, barrierefreien Wohneinheiten mit 56-88m2 Wohnnutzfläche, dazugehörige Parkplätze und einer sorgfältig überlegten Gartenlandschaft mit liebevollen Details und Begegnungsarealen.
„Wohnen beim Kirchenwirt“, das bedeutet Wohnen mit Sinn.
Das spiegelt sich auch in den smart, als auch barrierefrei geplanten und modern ausgestatteten Wohneinheiten wider. Hier kommen ausschließlich hochwertige Materialien zum Einsatz. Effizienz lautet das Stichwort in puncto Energie. Die Wohnanlage wird in moderner Niedrigenergiebauweise saniert und mittels Fernwärme | Elektro-Boiler beheizt.
Ausreichend Stauraum bieten die, zu den Wohneinheiten zählenden, Abstellräume. Für Fahrzeuge stehen Aussenparkplätze zur Verfügung. Weitere öffentliche Parkplätze der Gemeinde befinden sich in unmittelbarer Umgebung.
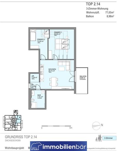
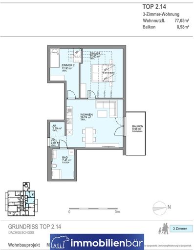
Höhepunkte Top 14
- 77,05 m² Wohnfläche
- 8,98 m² Balkon
- 1 Außenstellplatz, weitere können hinzugemietet werden
- Lichtdurchflutete Wohnung
- Inkl. modernem Bad und WC
- Zentrale Lage
- Barrierefrei durch Lift
- Ruhige Wohnung
- inkl. neue Küche
- Kellerabteil
- Haustiere gestattet (auch Hunde)
Mietzins gesamt inkl. Betriebskosten
Miete Wohnung brutto EUR 617,10
Miete Parkplatz brutto EUR 42,00
Betriebskosten brutto EUR 194,93
Heizkosten brutto EUR 86,92
GESAMT EUR 940,95
Kaution EUR 2.822,85
Der Immobilienmakler erklärt, dass er – entgegen dem in der Immobilienwirtschaft üblichen Geschäftsgebrauch des Doppelmaklers – einseitig nur für den Vermieter tätig ist.
Infrastruktur / Entfernungen
Gesundheit
Arzt <1.000m
Apotheke <6.000m
Klinik <9.500m
Krankenhaus <8.500m
Kinder & Schulen
Schule <500m
Kindergarten <500m
Höhere Schule <10.000m
Nahversorgung
Supermarkt <1.000m
Bäckerei <3.500m
Einkaufszentrum <9.500m
Sonstige
Bank <500m
Geldautomat <500m
Post <500m
Polizei <5.500m
Verkehr
Bus <500m
Bahnhof <4.000m
Autobahnanschluss <4.000m
Angaben Entfernung Luftlinie / Quelle: OpenStreetMap
Objektdaten
Ausstattung
- Barrierefrei
- Bad mit Dusche
- Einbauküche
- Fliesenboden
- Fertigparkettboden
- Fußbodenheizung
- Fern Befeuerung
- Personen Fahrstuhl
- Ausrichtung Balkon/Terrasse - Nord
- Massiv Bauweise
Dokumente / Links
Zustand
- Zustand
- VOLL_SANIERT
- Baujahr
- 2023
- HWB
- 33 kWh/m² pro Jahr
- Klasse HWB
- B
- fGEE
- 0.7
- Klasse fGEE
- A+
Flächen
- Anzahl der Zimmer
- 3
- Anzahl der Badezimmer
- 1
- Anzahl der sep. WCs
- 1
- Anzahl der Balkone
- 1
- Stellplätze
- 1
- Wohnfläche
- 77m²
Kosten
- Gesamtmiete Brutto
- € 854,03
- Miete
- € 561,00
- Betriebskosten
- € 177,21
- Heizkosten
- € 72,43
- Sonstige Kosten
- € 35,00
- Umsatzsteuer
- € 95,31
- Monatl. Gesamtbelastung Brutto
- € 940,95
Verwaltung
- Verfügbar ab
- sofort
- Mietdauer
- bis 3,0 Jahre
Wohnungen zum Mieten im Umkreis von Taiskirchen im Innkreis
Wohnungen zum Mieten im Umkreis von Taiskirchen im Innkreis
Wohnungen zum Mieten in Österreich
Andere Besucher suchen nach...
- Grundstücke kaufen in 3400 Weidlingbach
- Wohnungen kaufen in 4663 Laakirchen
- Häuser in 7471 Rechnitz
- Wohnungen in 2410 Hainburg an der Donau
- Häuser kaufen in 2432 Schwadorf
- Wohnungen kaufen in 3002 Purkersdorf
- Häuser in 3150 Wilhelmsburg
- Wohnungen kaufen in 3470 Engelmannsbrunn
- Grundstücke kaufen im Bezirk Mattersburg
- Grundstücke kaufen im Bezirk Gmunden