"GRÖDIG - Geräumige 2 Zimmer Wohnung (auch als WG geeignet)"
-
sofort
Beschreibung
Die geräumige 2 Zimmer Wohnung befindet sich in einem Wohnkomplex in Grödig mit ca. 12 Wohneinheiten. Das Wohnhaus verfügt über einen Fahrradabstellraum und Pkw- Stellplätze im Freien. Zur Einheit ist ein Kellerabteil und ein eigener Stellplatz zugehörig. Besucherparkplätze sind vorhanden.
Das Gebäude liegt unweit vom Ortskern entfernt und bietet alles was man für den täglichen Bedarf benötigt. Eine optimale Verkehrsanbindung zum Autobahnanschluss und in die Stadt ist ebenso gegeben.
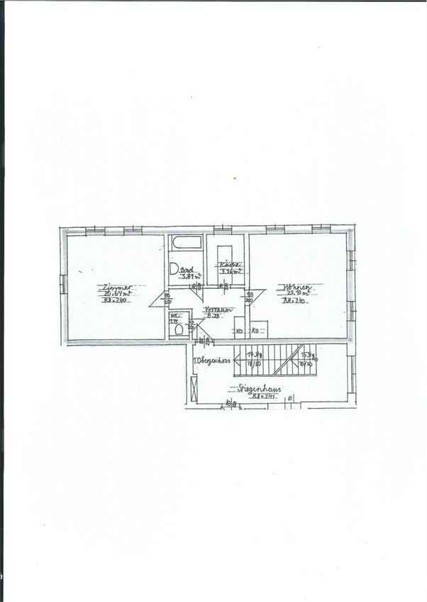
Die Wohnung selbst liegt im 1. Stock mit Blick ins Grüne und ist n/o ausgerichtet. Bestehend ist die Wohnung aus einem Vorraum, Toilette, einem Badezimmer mit Badewanne/Waschtisch/WM-Anschluss, einer abgetrennten Küche, einem...
Die geräumige 2 Zimmer Wohnung befindet sich in einem Wohnkomplex in Grödig mit ca. 12 Wohneinheiten. Das Wohnhaus verfügt über einen Fahrradabstellraum und Pkw- Stellplätze im Freien. Zur Einheit ist ein Kellerabteil und ein eigener Stellplatz zugehörig. Besucherparkplätze sind vorhanden.
Das Gebäude liegt unweit vom Ortskern entfernt und bietet alles was man für den täglichen Bedarf benötigt. Eine optimale Verkehrsanbindung zum Autobahnanschluss und in die Stadt ist ebenso gegeben.
Die Wohnung selbst liegt im 1. Stock mit Blick ins Grüne und ist n/o ausgerichtet. Bestehend ist die Wohnung aus einem Vorraum, Toilette, einem Badezimmer mit Badewanne/Waschtisch/WM-Anschluss, einer abgetrennten Küche, einem Wohnbereich mit Kachelofen und einem Schlafbereich.
Die Kosten für Heizung, Strom, Kabel-TV, Internet und Telefonie muss vom Mieter getragen und direkt mit dem Anbieter abgeschlossen werden!
Wir weisen darauf hin, dass zwischen dem Vermittler und dem zu vermittelnden Dritten ein familiäres oder wirtschaftliches Naheverhältnis besteht.
Der Immobilienmakler erklärt, dass er – entgegen dem in der Immobilienwirtschaft üblichen Geschäftsgebrauch des Doppelmaklers – einseitig nur für den Vermieter tätig ist.
Infrastruktur / Entfernungen
Gesundheit
Arzt <2.500m
Apotheke <500m
Klinik <5.500m
Krankenhaus <6.500m
Kinder & Schulen
Schule <1.000m
Kindergarten <1.500m
Universität <3.500m
Höhere Schule <2.000m
Nahversorgung
Supermarkt <500m
Bäckerei <500m
Einkaufszentrum <6.000m
Sonstige
Bank <500m
Geldautomat <500m
Post <500m
Polizei <2.000m
Verkehr
Bus <500m
Bahnhof <4.500m
Autobahnanschluss <1.500m
Flughafen <6.500m
Angaben Entfernung Luftlinie / Quelle: OpenStreetMap
Objektdaten
Ausstattung
- Kabel/SAT-TV
- Wasch-/Trockenraum
- Fahrradraum
- Bad mit Badewanne
- Einbauküche
- Fliesenboden
- Laminatboden
- Ofen
- Etage Heizung
- Elektrische Befeuerung
- Alternative Befeuerung
- Satteldach
- Massiv Bauweise
Dokumente / Links
Zustand
- Zustand
- GEPFLEGT
- Baujahr
- 1992
- Alter
- NEUBAU
- HWB
- 60 kWh/m² pro Jahr
- Klasse HWB
- C
- fGEE
- 1.72
- Klasse fGEE
- C
Flächen
- Anzahl der Zimmer
- 2
- Anzahl der Badezimmer
- 1
- Anzahl der sep. WCs
- 1
- Stellplätze
- 1
- Wohnfläche
- 61m²
- Nutzfläche
- 61m²
- Gesamtfläche
- 61m²
- Kellerfläche
- 2m²
Kosten
- Gesamtmiete Brutto
- € 874,43
- Miete
- € 681,84
- Betriebskosten
- € 106,06
- Heizkosten
- € 32,09
- Sonstige Kosten
- € 7,04
- Umsatzsteuer
- € 82,70
- Monatl. Gesamtbelastung Brutto
- € 909,73
Verwaltung
- Verfügbar ab
- sofort
- Mietdauer
- bis 5,0 Jahre
Wohnungen zum Mieten im Umkreis von Grödig
Wohnungen zum Mieten in Österreich
Andere Besucher suchen nach...
- Immobilien kaufen in 2601 Sollenau
- Immobilien in 4951 Polling im Innkreis, Oberösterreich
- Immobilien in 4742 Pram, Oberösterreich kaufen oder mieten
- Häuser kaufen in 2340 Mödling, Niederösterreich
- Häuser kaufen in 9421 Gemmersdorf, Kärnten
- Wohnungen / Eigentumswohnungen kaufen in 9431 St. Stefan, Kärnten
- Häuser kaufen in Bruck an der Leitha, Niederösterreich
- Immobilien mieten in Krems an der Donau, Niederösterreich
- Häuser zum Kaufen im Bezirk St. Pölten Land, Niederösterreich
- Büro / Praxen mieten in Rohrbach, Oberösterreich