Schöne Wohnung mit Variante 3 oder 4 Zimmer mit Terrasse und Balkon
-
innerhalb 3 Monaten
Beschreibung
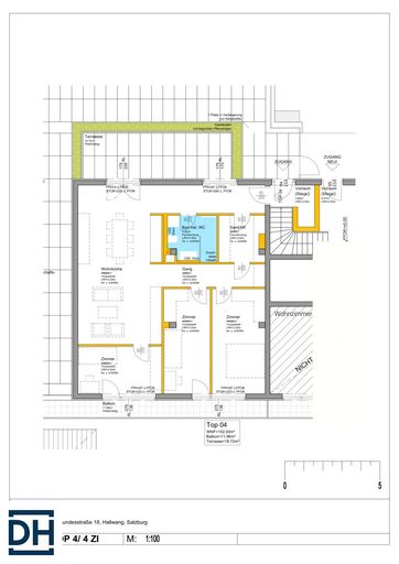
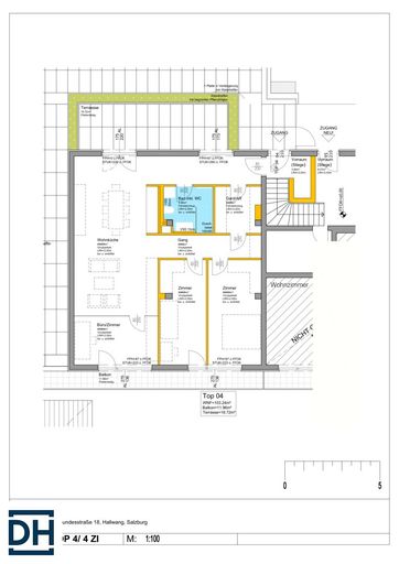
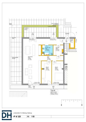
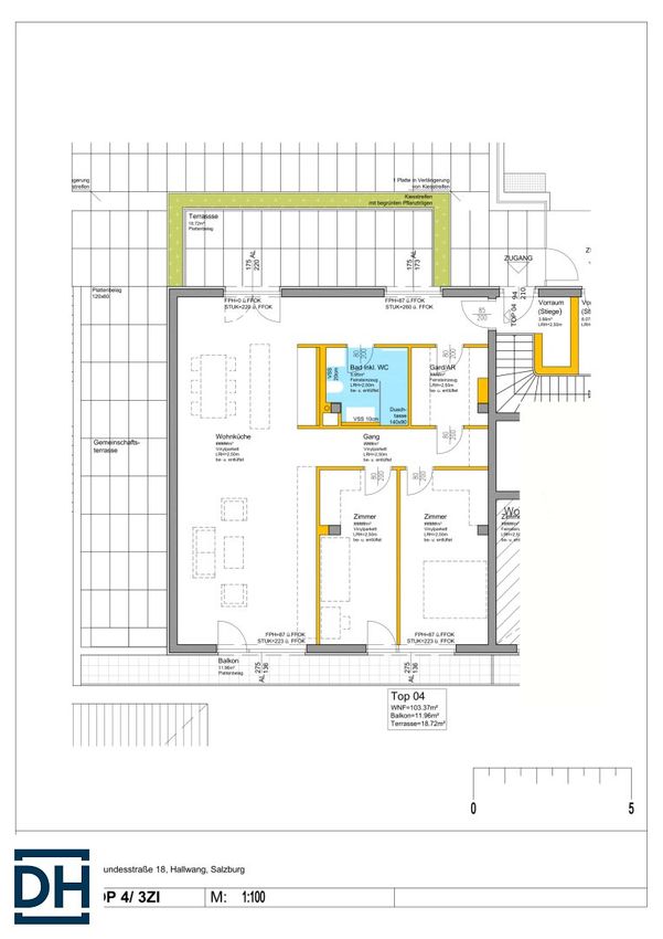
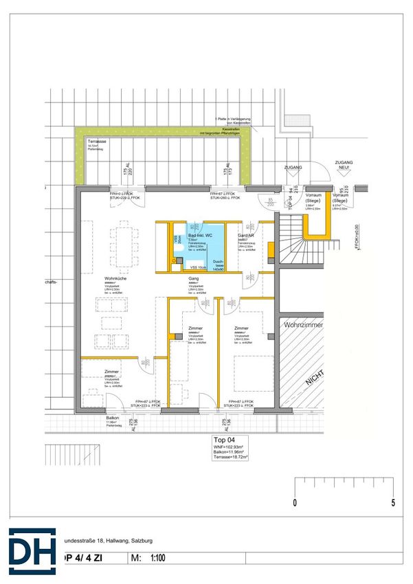
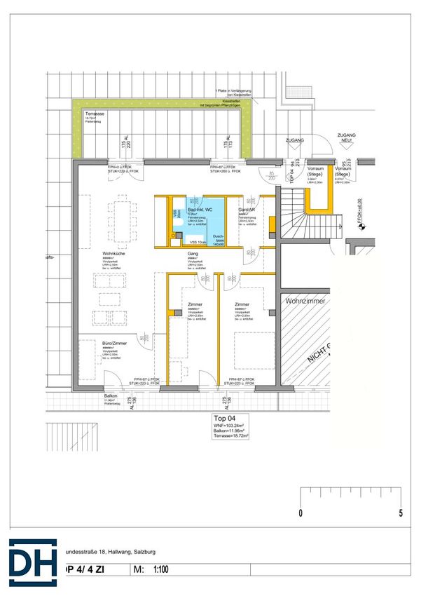
Diese bereits renovierte Wohnung besteht derzeit aus einem großen Raum mit Küche und Bad. Die Wohnung wird nach Vereinbarung je nach Wunsch des zukünftigen Mieters auf eine 3 oder 4 Zi. Wohnung umgebaut ( 3 Varianten möglich siehe Grundriss-Varianten) Dauer Umbau bis zu 3 Monaten. Besonders attraktiv sind die beiden Außenflächen: Eine schöne Terrasse zum ruhigen Innenhof lädt zum Entspannen ein, zusätzlich steht ein Balkon zur Verfügung.
Vor dem Haus befinden sich allgemeine Parkplätze, zudem besteht die Möglichkeit, eine Garage gegen € 65,-/Monat anzumieten.
Details: - Moderne Wohnung in Ausführung 3 oder 4 Zimmer innerhalb 3 Monaten verfügbar - ca.103...
Diese bereits renovierte Wohnung besteht derzeit aus einem großen Raum mit Küche und Bad. Die Wohnung wird nach Vereinbarung je nach Wunsch des zukünftigen Mieters auf eine 3 oder 4 Zi. Wohnung umgebaut ( 3 Varianten möglich siehe Grundriss-Varianten) Dauer Umbau bis zu 3 Monaten. Besonders attraktiv sind die beiden Außenflächen: Eine schöne Terrasse zum ruhigen Innenhof lädt zum Entspannen ein, zusätzlich steht ein Balkon zur Verfügung.
Vor dem Haus befinden sich allgemeine Parkplätze, zudem besteht die Möglichkeit, eine Garage gegen € 65,-/Monat anzumieten.
Details:
- Moderne Wohnung in Ausführung 3 oder 4 Zimmer innerhalb 3 Monaten verfügbar
- ca.103 m² Wfl.
- Balkon 11,96 m²
- Terrasse 18,72 m²
- Bad mit Dusche und WC
- offene Küchenzeile
- Mietpreis inkl. BK € 1.950,00,- (inkl. BK und Heizkosten á Konto)
- Kaution 3 BMM
Für genauere Informationen und Details schicken wir Ihnen gerne ein Exposé.
Irrtum und Änderungen vorbehalten!
Alle Angaben sind ohne Gewähr und basieren ausschließlich auf Informationen, die uns von unserem Auftraggeber bzw. Kooperationspartner übermittelt wurden.
Wir übernehmen keine Gewähr für die Vollständigkeit, Richtigkeit und Aktualität dieser Angaben. Zwischenverkauf bleibt vorbehalten.
Noch nichts gefunden? Wir informieren Sie über geeignete Immobilienangebote noch vor allen anderen.
Legen Sie jetzt Ihren individuellen Suchagenten unter folgendem Link an. Wir schicken Ihnen passende Immobilien exklusiv vorab zu.
Suchagent anlegen - https://d-h.service.immo/registrieren/de
Der Immobilienmakler erklärt, dass er – entgegen dem in der Immobilienwirtschaft üblichen Geschäftsgebrauch des Doppelmaklers – einseitig nur für den Vermieter tätig ist.
Infrastruktur / Entfernungen
Gesundheit
Arzt <500m
Apotheke <500m
Klinik <4.000m
Krankenhaus <4.500m
Kinder & Schulen
Schule <1.000m
Kindergarten <500m
Universität <4.000m
Höhere Schule <3.000m
Nahversorgung
Supermarkt <500m
Bäckerei <1.500m
Einkaufszentrum <3.500m
Sonstige
Bank <500m
Geldautomat <500m
Post <500m
Polizei <2.500m
Verkehr
Bus <500m
Bahnhof <2.000m
Autobahnanschluss <1.500m
Flughafen <8.000m
Angaben Entfernung Luftlinie / Quelle: OpenStreetMap
Objektdaten
Ausstattung
- Rolladen
- Bad mit Dusche
- Offene Küche
- Laminatboden
- Zentralheizung
- Befeuerung mit Gas
- Solar
Zustand
- Zustand
- VOLL_SANIERT
- HWB
- 96 kWh/m² pro Jahr
- Klasse HWB
- C
- fGEE
- 1.22
Flächen
- Anzahl der Zimmer
- 4
- Anzahl der Badezimmer
- 1
- Anzahl der Balkone
- 1
- Anzahl der Terrassen
- 1
- Wohnfläche
- 103m²
- Terrassenfläche
- 1m²
Kosten
- Gesamtmiete Brutto
- € 2.150,00
- Kaution
- € 6.450,00
- Miete
- € 1.685,25
- Betriebskosten
- € 296,22
- Umsatzsteuer
- € 168,53
- Monatl. Gesamtbelastung Brutto
- € 2.150,00
Verwaltung
- Verfügbar ab
- innerhalb 3 Monaten
Wohnungen zum Mieten im Umkreis von Hallwang
Wohnungen zum Mieten im Umkreis von Hallwang
Wohnungen zum Mieten in Österreich
Andere Besucher suchen nach...
- Grundstücke kaufen in 3400 Weidlingbach
- Wohnungen kaufen in 4663 Laakirchen
- Häuser in 7471 Rechnitz
- Wohnungen in 2410 Hainburg an der Donau
- Häuser kaufen in 2432 Schwadorf
- Wohnungen kaufen in 3002 Purkersdorf
- Häuser in 3150 Wilhelmsburg
- Wohnungen kaufen in 3470 Engelmannsbrunn
- Grundstücke kaufen im Bezirk Mattersburg
- Grundstücke kaufen im Bezirk Gmunden