Gemütliche Mietwohnung in ruhiger Lage von Traismauer
-
ab sofort
Beschreibung
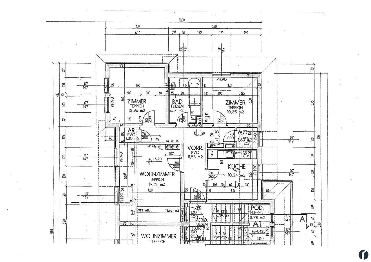
Diese gepflegte 3-Zimmer-Wohnung befindet sich in einem Wohnhaus aus dem Jahr 1997 in ruhiger, hofseitiger Lage von Traismauer. Die Wohnung liegt im 2. Obergeschoss eines Mehrparteienhauses (leider kein Lift vorhanden).
Mit einer Wohnfläche von rund 73 m² bietet die Wohnung eine gut durchdachte Raumaufteilung. Neben dem zentralen Vorraum stehen drei separat begehbare Zimmer zur Verfügung – ideal als Wohn- und Schlafzimmer sowie als Arbeits- oder Gästezimmer.
Die separate Küche ist funktional eingerichtet und mit einem Geschirrspüler, E-Herd, Dunstabzug, Mikrowelle, Kühl-Gefrierkombination sowie einer kleinen Sitzecke ausgestattet.
Das Badezimmer bietet sowohl Badewanne als auch Dusche und wird durch ein Fenster angenehm belichtet...
Diese gepflegte 3-Zimmer-Wohnung befindet sich in einem Wohnhaus aus dem Jahr 1997 in ruhiger, hofseitiger Lage von Traismauer. Die Wohnung liegt im 2. Obergeschoss eines Mehrparteienhauses (leider kein Lift vorhanden).
Mit einer Wohnfläche von rund 73 m² bietet die Wohnung eine gut durchdachte Raumaufteilung. Neben dem zentralen Vorraum stehen drei separat begehbare Zimmer zur Verfügung – ideal als Wohn- und Schlafzimmer sowie als Arbeits- oder Gästezimmer.
Die separate Küche ist funktional eingerichtet und mit einem Geschirrspüler, E-Herd, Dunstabzug, Mikrowelle, Kühl-Gefrierkombination sowie einer kleinen Sitzecke ausgestattet.
Das Badezimmer bietet sowohl Badewanne als auch Dusche und wird durch ein Fenster angenehm belichtet und belüftet. Das WC ist separat untergebracht. Ein Abstellraum ergänzt das Raumangebot.
Beheizt wird die Wohnung über eine Gaszentralheizung mit Radiatoren, das Warmwasser wird mittels Elektroboiler aufbereitet. Die Ausrichtung zum Innenhof sorgt für eine ruhige Wohnatmosphäre. Wobei der Gemeinschaftsgarten allen Bewohner:innen zur Nutzung offen steht.
Im Keller stehen ein Fahrradraum, ein Trockenraum sowie ein eigenes Kellerabteil zur Verfügung.
Zur Wohnung gehört ein Stellplatz im Carport für den Monatlich 50,00 € inkl. Betriebskosten und Steuer berechnet wird. Die Gesamtmiete beträgt sohin monatlich € 795,00
Weitere Details zu Traismauer:
Einkaufsmöglichkeiten:
Supermärkte, Bäckereien und Nahversorger befinden sich in der Umgebung.
Öffentlicher Verkehr:
Buslinien und der Bahnhof Traismauer bieten gute Anbindung nach St. Pölten und Krems.
Autobahnanbindung:
Die S33 sowie die Donaubrücke Traismauer sorgen für rasche Erreichbarkeit der A1 und S5.
Schulen & Kindergarten:
Volksschule, Mittelschule und mehrere Kindergärten sind in Traismauer vorhanden.
Freizeit & Naherholung:
Radwege, Spaziermöglichkeiten und Sportanlagen bieten vielfältige Freizeitoptionen.
Hinweis: Die Angaben zu dieser Immobilie sind ohne Gewähr. Auf Grund der Nachweispflicht gegenüber dem Eigentümer ersuchen wir Sie um Verständnis, dass wir nur Anfragen mit vollständiger Anschrift und Telefonnummer bearbeiten können, sowie keine Auskünfte betreffend Objektunterlagen und der genauen Liegenschaftsadresse erteilen können.
Der Immobilienmakler erklärt, dass er – entgegen dem in der Immobilienwirtschaft üblichen Geschäftsgebrauch des Doppelmaklers – einseitig nur für den Vermieter tätig ist.
Infrastruktur / Entfernungen
Gesundheit
Arzt <1.000m
Apotheke <1.000m
Klinik <1.500m
Kinder & Schulen
Schule <1.000m
Kindergarten <1.000m
Nahversorgung
Supermarkt <1.000m
Bäckerei <1.000m
Einkaufszentrum <9.500m
Sonstige
Bank <1.000m
Geldautomat <1.000m
Post <1.000m
Polizei <1.000m
Verkehr
Bus <500m
Autobahnanschluss <2.000m
Bahnhof <1.500m
Angaben Entfernung Luftlinie / Quelle: OpenStreetMap
Objektdaten
Ausstattung
- Gartennutzung
- Wasch-/Trockenraum
- Fahrradraum
- Bad mit Dusche
- Bad mit Badewanne
- Bad mit Fenster
- Einbauküche
- Fliesenboden
- Laminatboden
- Zentralheizung
- Befeuerung mit Gas
- Massiv Bauweise
Zustand
- Baujahr
- 1997
- Alter
- NEUBAU
- HWB
- 78.6 kWh/m² pro Jahr
- Klasse HWB
- C
- fGEE
- 1.62
- Klasse fGEE
- C
Flächen
- Anzahl der Zimmer
- 3
- Anzahl der Badezimmer
- 1
- Anzahl der sep. WCs
- 1
- Stellplätze
- 1
- Wohnfläche
- 73m²
Kosten
- Gesamtmiete Brutto
- € 745,00
- Kaution
- € 2.385,00
- Miete
- € 531,81
- Betriebskosten
- € 145,46
- Umsatzsteuer
- € 67,73
- Monatl. Gesamtbelastung Brutto
- € 745,00
Verwaltung
- Verfügbar ab
- ab sofort
Wohnungen zum Mieten im Umkreis von Traismauer
Wohnungen zum Mieten im Umkreis von Traismauer
Wohnungen zum Mieten in Österreich
Andere Besucher suchen nach...
- Grundstücke kaufen in 3400 Weidlingbach
- Wohnungen kaufen in 4663 Laakirchen
- Häuser in 7471 Rechnitz
- Wohnungen in 2410 Hainburg an der Donau
- Häuser kaufen in 2432 Schwadorf
- Wohnungen kaufen in 3002 Purkersdorf
- Häuser in 3150 Wilhelmsburg
- Wohnungen kaufen in 3470 Engelmannsbrunn
- Grundstücke kaufen im Bezirk Mattersburg
- Grundstücke kaufen im Bezirk Gmunden