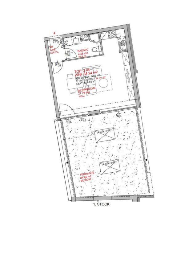
34,24 m² | ca. 37 m² Terrasse | 1. OG | Bezug nach Vereinbarung
Beschreibung
34,24 m² Wohnfläche + ca. 37 m² Terrasse 1. OG - Bezug nach Vereinbarung
Raumaufteilung: Vorzimmer, Einzelwohnraum mit Kochnische, Terrasse, Badezimmer mit Dusche und Badewanne und WC
Miete gesamt: € 549,- inkl. BK/USt.
Kaution: 4 BMM
Wir weisen darauf hin, dass zwischen dem Vermittler und dem zu vermittelnden Dritten ein familiäres oder wirtschaftliches Naheverhältnis besteht.
Der Immobilienmakler erklärt, dass er – entgegen dem in der Immobilienwirtschaft üblichen Geschäftsgebrauch des Doppelmaklers – einseitig nur für den Vermieter tätig ist.
Infrastruktur / Entfernungen
Gesundheit Arzt <250m Apotheke <250m Klinik <750m Krankenhaus <1.250m Kinder & Schulen Schule <250m...
34,24 m² Wohnfläche + ca. 37 m² Terrasse
1. OG - Bezug nach Vereinbarung
Raumaufteilung: Vorzimmer, Einzelwohnraum mit Kochnische, Terrasse, Badezimmer mit Dusche und Badewanne und WC
Miete gesamt: € 549,- inkl. BK/USt.
Kaution: 4 BMM
Wir weisen darauf hin, dass zwischen dem Vermittler und dem zu vermittelnden Dritten ein familiäres oder wirtschaftliches Naheverhältnis besteht.
Der Immobilienmakler erklärt, dass er – entgegen dem in der Immobilienwirtschaft üblichen Geschäftsgebrauch des Doppelmaklers – einseitig nur für den Vermieter tätig ist.
Infrastruktur / Entfernungen
Gesundheit
Arzt <250m
Apotheke <250m
Klinik <750m
Krankenhaus <1.250m
Kinder & Schulen
Schule <250m
Kindergarten <250m
Universität <1.000m
Höhere Schule <250m
Nahversorgung
Supermarkt <250m
Bäckerei <250m
Einkaufszentrum <250m
Sonstige
Bank <250m
Geldautomat <250m
Polizei <250m
Post <250m
Verkehr
Bus <250m
Bahnhof <500m
Autobahnanschluss <3.000m
Flughafen <6.000m
Angaben Entfernung Luftlinie / Quelle: OpenStreetMap
Objektdaten
Ausstattung
- Kabel/SAT-TV
- DVBT
- Barrierefrei
- Fahrradraum
- Seniorengerecht
- Bad mit Dusche
- Offene Küche
- Fliesenboden
- Parkettboden
- Zentralheizung
- Fern Befeuerung
- Personen Fahrstuhl
- Ausrichtung Balkon/Terrasse - Süd
- Kamera
- Flachdach
- Massiv Bauweise
Zustand
- Zustand
- GEPFLEGT
- Alter
- NEUBAU
- HWB
- 77.4 kWh/m² pro Jahr
- Klasse HWB
- C
- fGEE
- 1.21
- Klasse fGEE
- B
Flächen
- Anzahl der Zimmer
- 1
- Anzahl der Badezimmer
- 1
- Anzahl der Terrassen
- 1
- Wohnfläche
- 34m²
- Kellerfläche
- 2m²
- Terrassenfläche
- 1m²
Kosten
- Gesamtmiete Brutto
- € 549,00
- Miete
- € 356,65
- Betriebskosten
- € 128,40
- Sonstige Kosten
- € 14,04
- Umsatzsteuer
- € 49,91
- Monatl. Gesamtbelastung Brutto
- € 549,00
Verwaltung
- Verfügbar ab
- nach Vereinbarung
Wohnungen zum Mieten in Österreich
Wohnungen zum Mieten in Österreich
Wohnungen zum Mieten in Österreich
Andere Besucher suchen nach...
- Grundstücke kaufen in 3400 Weidlingbach
- Wohnungen kaufen in 4663 Laakirchen
- Häuser in 7471 Rechnitz
- Wohnungen in 2410 Hainburg an der Donau
- Häuser kaufen in 2432 Schwadorf
- Wohnungen kaufen in 3002 Purkersdorf
- Häuser in 3150 Wilhelmsburg
- Wohnungen kaufen in 3470 Engelmannsbrunn
- Grundstücke kaufen im Bezirk Mattersburg
- Grundstücke kaufen im Bezirk Gmunden