Wohnen über den Dächern: 135 m² Maisonette mit XXL-Dachterrasse
-
sofort
Beschreibung
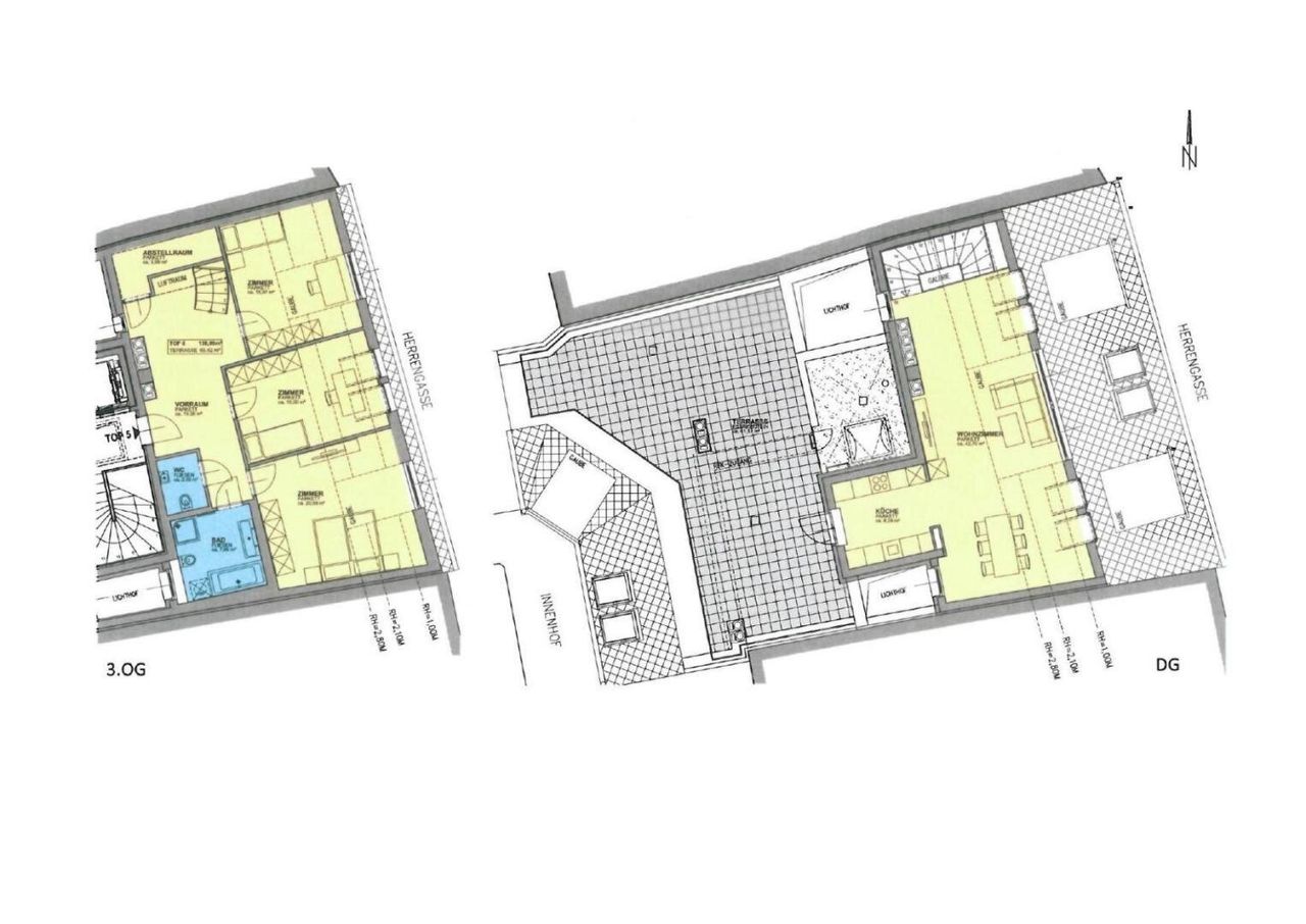
135,30 m² Wohnfläche + 61,17 m² Dachterrasse 3. OG mit Lift – Sofortbezug
Raumaufteilung:
1. Etage: Vorraum, Abstellraum, Treppenhaus, drei Zimmer, Tageslichtbad mit Badewanne, Doppelwaschtisch und WC, zusätzlich Gäste-WC
2. Etage: Wohnküche mit rund 43 m² sowie Dachterrasse mit ca. 61 m²
Miete gesamt: € 1.958,61 inkl. BK/USt.
Kaution: 4 BMM
Wir weisen darauf hin, dass zwischen dem Vermittler und dem zu vermittelnden Dritten ein familiäres oder wirtschaftliches Naheverhältnis besteht.
Der Immobilienmakler erklärt, dass er – entgegen dem in der Immobilienwirtschaft üblichen Geschäftsgebrauch des Doppelmaklers – einseitig nur für den Vermieter tätig ist.
...135,30 m² Wohnfläche + 61,17 m² Dachterrasse
3. OG mit Lift – Sofortbezug
Raumaufteilung:
1. Etage: Vorraum, Abstellraum, Treppenhaus, drei Zimmer, Tageslichtbad mit Badewanne, Doppelwaschtisch und WC, zusätzlich Gäste-WC
2. Etage: Wohnküche mit rund 43 m² sowie Dachterrasse mit ca. 61 m²
Miete gesamt: € 1.958,61 inkl. BK/USt.
Kaution: 4 BMM
Wir weisen darauf hin, dass zwischen dem Vermittler und dem zu vermittelnden Dritten ein familiäres oder wirtschaftliches Naheverhältnis besteht.
Der Immobilienmakler erklärt, dass er – entgegen dem in der Immobilienwirtschaft üblichen Geschäftsgebrauch des Doppelmaklers – einseitig nur für den Vermieter tätig ist.
Infrastruktur / Entfernungen
Gesundheit
Arzt <250m
Apotheke <250m
Klinik <750m
Krankenhaus <1.250m
Kinder & Schulen
Schule <250m
Kindergarten <250m
Universität <1.250m
Höhere Schule <250m
Nahversorgung
Supermarkt <250m
Bäckerei <250m
Einkaufszentrum <250m
Sonstige
Bank <250m
Geldautomat <250m
Polizei <250m
Post <250m
Verkehr
Bus <250m
Bahnhof <500m
Autobahnanschluss <3.000m
Flughafen <6.000m
Angaben Entfernung Luftlinie / Quelle: OpenStreetMap
Objektdaten
Ausstattung
- WG geeignet
- Klimatisiert
- Kabel/SAT-TV
- DVBT
- Fahrradraum
- Gäste-WC
- Seniorengerecht
- Bad mit Badewanne
- Bad mit Fenster
- Offene Küche
- Fliesenboden
- Parkettboden
- Zentralheizung
- Fern Befeuerung
- Personen Fahrstuhl
- Ausrichtung Balkon/Terrasse - West
- Satteldach
- Massiv Bauweise
Zustand
- Zustand
- NEUWERTIG
- Baujahr
- 2014
- Alter
- NEUBAU
- HWB
- 30 kWh/m² pro Jahr
- Klasse HWB
- B
- fGEE
- 1
- Klasse fGEE
- B
Flächen
- Anzahl der Zimmer
- 4.5
- Anzahl der Badezimmer
- 1
- Anzahl der sep. WCs
- 2
- Anzahl der Terrassen
- 1
- Wohnfläche
- 135m²
- Terrassenfläche
- 1m²
Kosten
- Gesamtmiete Brutto
- € 1.958,61
- Miete
- € 1.217,70
- Betriebskosten
- € 507,38
- Sonstige Kosten
- € 55,47
- Umsatzsteuer
- € 178,06
- Monatl. Gesamtbelastung Brutto
- € 1.958,61
Verwaltung
- Verfügbar ab
- sofort
Wohnungen zum Mieten in Österreich
Wohnungen zum Mieten in Österreich
Wohnungen zum Mieten in Österreich
Andere Besucher suchen nach...
- Grundstücke kaufen in 3400 Weidlingbach
- Wohnungen kaufen in 4663 Laakirchen
- Häuser in 7471 Rechnitz
- Wohnungen in 2410 Hainburg an der Donau
- Häuser kaufen in 2432 Schwadorf
- Wohnungen kaufen in 3002 Purkersdorf
- Häuser in 3150 Wilhelmsburg
- Wohnungen kaufen in 3470 Engelmannsbrunn
- Grundstücke kaufen im Bezirk Mattersburg
- Grundstücke kaufen im Bezirk Gmunden