Attraktive 2-Zimmer Wohnung inkl. Balkon in Schardenberg – Gattern 49! Verfügbar ab sofort!
-
01.04.2026
Beschreibung
Passau / Schärding / Schardenberg / Gattern 49:
Diese gemütliche und gut geschnittene 2-Zimmer Wohnung bietet idealen Wohnkomfort in angenehmer Lage von Schardenberg. Sie befindet sich im 2. Obergeschoss eines gepflegten Wohnhauses und überzeugt durch durchdachte Raumaufteilung, helles Wohngefühl und praktische Nutzungsmöglichkeiten.
Raumaufteilung & Highlights
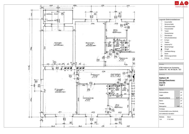
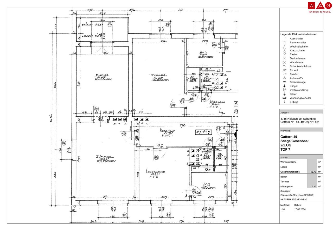
Raumaufteilung:
- Vorraum: 8,96 m² – einladender Eingang mit Platz für Garderob
- Esszimmer/Küche: 11,25 m² – offen und praktisch für Kochen & Essen
- Wohnzimmer: 14,65 m² – heller Wohnbereich mit flexiblem Nutzungspotenzial
- Schlafzimmer: 18,33 m² – großzügige Schlafzone
- Badezimmer: 4,01 m² – mit ausreichend Platz für Badmöbel
- WC: 1,02 m² – separat und...
Passau / Schärding / Schardenberg / Gattern 49:
Diese gemütliche und gut geschnittene 2-Zimmer Wohnung bietet idealen Wohnkomfort in angenehmer Lage von Schardenberg. Sie befindet sich im 2. Obergeschoss eines gepflegten Wohnhauses und überzeugt durch durchdachte Raumaufteilung, helles Wohngefühl und praktische Nutzungsmöglichkeiten.
Raumaufteilung & Highlights
Raumaufteilung:
- Vorraum: 8,96 m² – einladender Eingang mit Platz für Garderob
- Esszimmer/Küche: 11,25 m² – offen und praktisch für Kochen & Essen
- Wohnzimmer: 14,65 m² – heller Wohnbereich mit flexiblem Nutzungspotenzial
- Schlafzimmer: 18,33 m² – großzügige Schlafzone
- Badezimmer: 4,01 m² – mit ausreichend Platz für Badmöbel
- WC: 1,02 m² – separat und bequem
- Abstellraum: 1,22 m² – zusätzlicher Stauraum im Wohnungsinneren
Highlights
- durchdachter Grundriss mit klarer Trennung von Wohn- und Schlafbereich
- helle Räume und angenehme Wohnatmosphäre
- praktischer eigener Abstellraum
- ruhige Lage innerhalb der Wohnanlage
- funktionale Wohnfläche ohne Platzverschwendung
Mietkonditionen
- Miete inkl. Betriebskosten & MwSt.: € 524,60 / Monat
- Kaution / BKZ: € 1.573,80
Alle üblichen Betriebskosten sind im Mietpreis inkludiert – keine versteckten Zusatzkosten.
Verfügbarkeit
Die Wohnung ist ab sofort verfügbar – bezugsfertig für deinen Einzug im Frühling.
Der Immobilienmakler erklärt, dass er – entgegen dem in der Immobilienwirtschaft üblichen Geschäftsgebrauch des Doppelmaklers – einseitig nur für den Vermieter tätig ist.
Sie sind an weiteren Wohnungs- bzw. Gewerbeangeboten interessiert? Ein vielfältiges Angebot finden Sie auf unserer Website.
Zur WAG-Immobiliensuche: SUCHE
Zur WAG-Wohnungsanmeldung: Wohnungsanmeldung
Gerne beraten wir Sie persönlich über unser vielfältiges Angebot, rufen Sie uns einfach an! Und das natürlich ohne Vermittlungsgebühren und provisionsfrei!
Angaben sind ohne Gewähr auf Richtigkeit und Vollständigkeit. Druckfehler vorbehalten.
Infrastruktur / Entfernungen
Gesundheit
Arzt <3.500m
Apotheke <3.500m
Krankenhaus <4.000m
Klinik <3.000m
Kinder & Schulen
Schule <3.500m
Kindergarten <3.500m
Universität <3.500m
Höhere Schule <5.000m
Nahversorgung
Bäckerei <500m
Supermarkt <3.000m
Einkaufszentrum <4.000m
Sonstige
Bank <3.000m
Geldautomat <3.000m
Polizei <3.000m
Post <3.500m
Verkehr
Bus <500m
Bahnhof <3.500m
Autobahnanschluss <9.500m
Angaben Entfernung Luftlinie / Quelle: OpenStreetMap
Objektdaten
Ausstattung
- Kabel/SAT-TV
- Wasch-/Trockenraum
- Bad mit Badewanne
- Bad mit Fenster
- Fliesenboden
- Parkettboden
- Zentralheizung
- Befeuerung mit Gas
- Massiv Bauweise
Dokumente / Links
Zustand
- Zustand
- GEPFLEGT
- HWB
- 56 kWh/m² pro Jahr
- Klasse HWB
- C
- fGEE
- 1.28
- Klasse fGEE
- C
Flächen
- Anzahl der Zimmer
- 2
- Anzahl der Badezimmer
- 1
- Anzahl der sep. WCs
- 1
- Anzahl der Balkone
- 1
- Wohnfläche
- 63m²
Kosten
- Gesamtmiete Brutto
- € 524,60
- Kaution
- € 1.573,80
- Miete
- € 338,58
- Betriebskosten
- € 138,33
- Umsatzsteuer
- € 47,69
- Monatl. Gesamtbelastung Brutto
- € 524,60
Verwaltung
- Verfügbar ab
- 01.04.2026
Wohnungen zum Mieten im Umkreis von Schardenberg
Wohnungen zum Mieten im Umkreis von Schardenberg
Wohnungen zum Mieten in Österreich
Andere Besucher suchen nach...
- Grundstücke kaufen in 3400 Weidlingbach
- Wohnungen kaufen in 4663 Laakirchen
- Häuser in 7471 Rechnitz
- Wohnungen in 2410 Hainburg an der Donau
- Häuser kaufen in 2432 Schwadorf
- Wohnungen kaufen in 3002 Purkersdorf
- Häuser in 3150 Wilhelmsburg
- Wohnungen kaufen in 3470 Engelmannsbrunn
- Grundstücke kaufen im Bezirk Mattersburg
- Grundstücke kaufen im Bezirk Gmunden