3-Zimmer-Gartenwohnung mit Fernwärme 2 Parkplätzen
€ 750 / Monat
€ 10 / m²
3435 Erpersdorf
-
ab sofort
Beschreibung
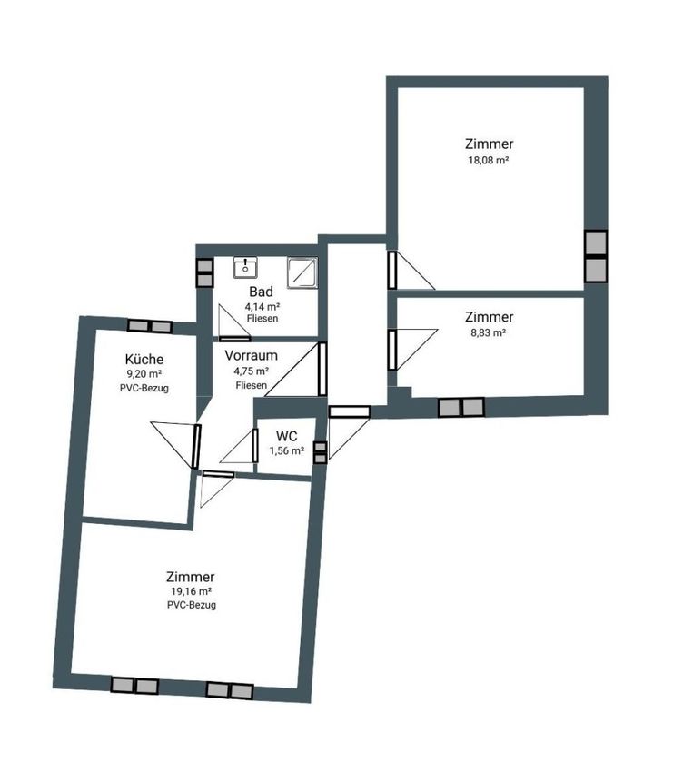
"Sanierte 3-Zimmer-Gartenwohnung mit Fernwärme & 2 Parkplätzen" Zur Vermietung gelangt diese 2025 sanierte 3-Zimmer-Mietwohnung mit rund 75 m² Wohnfläche liegt in angenehmer Wohnlage in Erpersdorf und verbindet ruhiges Wohnen mit guter Erreichbarkeit. Die Wohnung verfügt über drei gut geschnittene Zimmer und eine separate Küche mit ausreichend Platz für einen Essbereich. Ein Vorraum sorgt für eine praktische Raumaufteilung. Das Badezimmer ist gepflegt und mit einer Dusche ausgestattet. Ergänzt wird das Raumangebot durch einen zur Wohnung gehörenden Abstellraum außerhalb der Wohnung. Beheizt wird die Wohnung mittels Fernwärme, was für angenehmen Wohnkomfort sorgt. Ein besonderes Highlight ist der private Garten mit ca. 25...
"Sanierte 3-Zimmer-Gartenwohnung mit Fernwärme & 2 Parkplätzen"
Zur Vermietung gelangt diese 2025 sanierte 3-Zimmer-Mietwohnung mit rund 75 m² Wohnfläche liegt in angenehmer Wohnlage in Erpersdorf und verbindet ruhiges Wohnen mit guter Erreichbarkeit.
Die Wohnung verfügt über drei gut geschnittene Zimmer und eine separate Küche mit ausreichend Platz für einen Essbereich. Ein Vorraum sorgt für eine praktische Raumaufteilung. Das Badezimmer ist gepflegt und mit einer Dusche ausgestattet. Ergänzt wird das Raumangebot durch einen zur Wohnung gehörenden Abstellraum außerhalb der Wohnung.
Beheizt wird die Wohnung mittels Fernwärme, was für angenehmen Wohnkomfort sorgt.
Ein besonderes Highlight ist der private Garten mit ca. 25 m².
Zwei zur Wohnung gehörende Parkplätze stehen ebenfalls zur Verfügung.
Die Infrastruktur ist sehr gut: Nahversorger, Kindergarten, Gastronomie und Freizeiteinrichtungen befinden sich in der näheren Umgebung.
Die Verkehrsanbindung ist ideal für Pendler: Der Bahnhof Tulln ist rasch erreichbar, von dort bestehen direkte Bahnverbindungen nach Wien. Auch mit dem Auto sind Tulln und das Wiener Stadtgebiet gut angebunden.
Energieausweis befindet sich derzeit in Arbeit!
Kaution:
Kaution: € 2.700,00
Miete:
Miete: € 637,00
Betriebskosten: € 116,00
Abstellplatz: € 25,00
Heizkosten Akonto: € 112,00
Gesamtmiete(brutto) inkl. HEIZUNG, BK und MwSt. NUR: € 890,00
Es wird auf die einseitige Vertretung des Vermieters hingewiesen – eine Doppelmakler-Tätigkeit ist ausgeschlossen.
Zur Vermietung gelangt diese 2025 sanierte 3-Zimmer-Mietwohnung mit rund 75 m² Wohnfläche liegt in angenehmer Wohnlage in Erpersdorf und verbindet ruhiges Wohnen mit guter Erreichbarkeit.
Die Wohnung verfügt über drei gut geschnittene Zimmer und eine separate Küche mit ausreichend Platz für einen Essbereich. Ein Vorraum sorgt für eine praktische Raumaufteilung. Das Badezimmer ist gepflegt und mit einer Dusche ausgestattet. Ergänzt wird das Raumangebot durch einen zur Wohnung gehörenden Abstellraum außerhalb der Wohnung.
Beheizt wird die Wohnung mittels Fernwärme, was für angenehmen Wohnkomfort sorgt.
Ein besonderes Highlight ist der private Garten mit ca. 25 m².
Zwei zur Wohnung gehörende Parkplätze stehen ebenfalls zur Verfügung.
Die Infrastruktur ist sehr gut: Nahversorger, Kindergarten, Gastronomie und Freizeiteinrichtungen befinden sich in der näheren Umgebung.
Die Verkehrsanbindung ist ideal für Pendler: Der Bahnhof Tulln ist rasch erreichbar, von dort bestehen direkte Bahnverbindungen nach Wien. Auch mit dem Auto sind Tulln und das Wiener Stadtgebiet gut angebunden.
Energieausweis befindet sich derzeit in Arbeit!
Kaution:
Kaution: € 2.700,00
Miete:
Miete: € 637,00
Betriebskosten: € 116,00
Abstellplatz: € 25,00
Heizkosten Akonto: € 112,00
Gesamtmiete(brutto) inkl. HEIZUNG, BK und MwSt. NUR: € 890,00
Es wird auf die einseitige Vertretung des Vermieters hingewiesen – eine Doppelmakler-Tätigkeit ist ausgeschlossen.
| Angaben gemäß gesetzlichem Erfordernis: | |||
| Miete | € | 750 | |
| Umsatzsteuer | € | 0 | |
| ------------------------------------------------------------------ | |||
| Gesamtbetrag | € | 750 | |
Objektdaten
Ausstattung
- Gartennutzung
- Rollstuhlgerecht
- Zentralheizung
- Fern Befeuerung
- Massiv Bauweise
- Zeigelmassiv
- Bus
- Eisenbahn
- Grüne Lage
- Küche Möbliert
- Rollstuhlgerecht
- Sonnige Lage
- Zentralheizung mit Fernwärme
- Rollstuhlgerecht
Zustand
- Baujahr
- ca. 1990
Flächen
- Anzahl der Zimmer
- 3
- Anzahl der Badezimmer
- 1
- Anzahl der sep. WCs
- 1
- Anzahl der Terrassen
- 1
- Stellplätze
- 2
- Wohnfläche
- 75m²
- Gartenfläche
- 25m²
- Terrassenfläche
- 1m²
Kosten
- Kaltmiete
- € 750,00
- Kaution
- € 2.700,00
Verwaltung
- Verfügbar ab
- ab sofort
- Mietdauer
- ab 5,0 Jahre
Wohnungen zum Mieten in Österreich
Wohnungen zum Mieten in Österreich
Wohnungen zum Mieten in Österreich
Andere Besucher suchen nach...
- Grundstücke kaufen in 3400 Weidlingbach
- Wohnungen kaufen in 4663 Laakirchen
- Häuser in 7471 Rechnitz
- Wohnungen in 2410 Hainburg an der Donau
- Häuser kaufen in 2432 Schwadorf
- Wohnungen kaufen in 3002 Purkersdorf
- Häuser in 3150 Wilhelmsburg
- Wohnungen kaufen in 3470 Engelmannsbrunn
- Grundstücke kaufen im Bezirk Mattersburg
- Grundstücke kaufen im Bezirk Gmunden