Park Residenz Bad Mühllacken – Modernes Wohnen für Best Ager - Wohnungstyp P1
€ 2.122 / Monat
€ 27 / m²
4101 Feldkirchen an der Donau
-
September 2026
Beschreibung
Exklusives Wohnen für Best Ager – Park Residenz Bad Mühllacken In der PARK Residenz Bad Mühllacken entstehen moderne, komfortable Wohnungen speziell für Menschen ab 55 Jahren, die Wert auf Lebensqualität, Sicherheit und Service legen. All-Inclusive Wohnen Im Mietpreis sind bereits sämtliche Kosten enthalten: Betriebskosten, Heizkosten, Strom, Wasser, Abwasser, Abfallentsorgung sowie Telefonie und Internet – keine versteckten Zusatzkosten. Diese attraktive Penthousewohnung bietet zwei helle Schlafzimmer, die Ruhe und Rückzugsraum garantieren. Der offene Wohn- und Essbereich mit großer, modern ausgestatteter Küche lädt zum gemütlichen Beisammensein ein. Vom Wohn- und Schlafzimmerbereich aus gelangt man auf den Balkon mit Loggia, der zusätzlichen Platz im...
Exklusives Wohnen für Best Ager – Park Residenz Bad Mühllacken
In der PARK Residenz Bad Mühllacken entstehen moderne, komfortable Wohnungen speziell für Menschen ab 55 Jahren, die Wert auf Lebensqualität, Sicherheit und Service legen.
All-Inclusive Wohnen
Im Mietpreis sind bereits sämtliche Kosten enthalten:
Betriebskosten, Heizkosten, Strom, Wasser, Abwasser, Abfallentsorgung sowie Telefonie und Internet – keine versteckten Zusatzkosten.
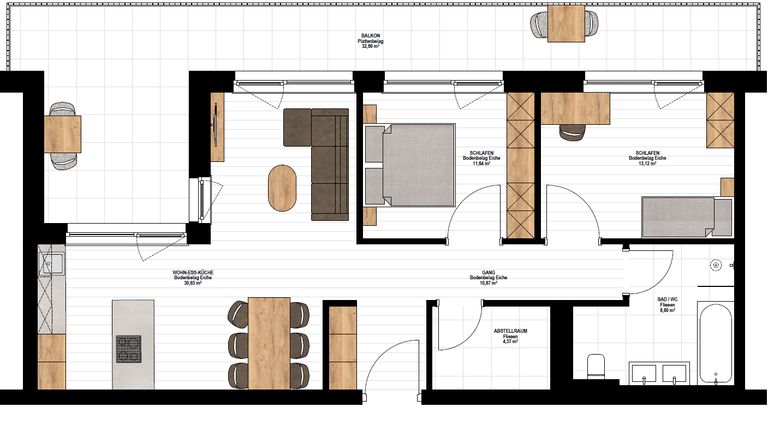
Diese attraktive Penthousewohnung bietet zwei helle Schlafzimmer, die Ruhe und Rückzugsraum garantieren. Der offene Wohn- und Essbereich mit großer, modern ausgestatteter Küche lädt zum gemütlichen Beisammensein ein. Vom Wohn- und Schlafzimmerbereich aus gelangt man auf den Balkon mit Loggia, der zusätzlichen Platz im Freien bietet und zum Entspannen einlädt.
Dieser Wohnungstyp ist im Dachgeschoss verfügbar.
Rundum-Service inklusive
• wöchentliche Reinigung durch eine Reinigungskraft
• Nutzung des hauseigenen SPA-Bereichs mit Saunalandschaft
• Fitnessstudio direkt im Haus
Individuell hinzubuchbar
• Verpflegung nach Wunsch: reichhaltiges Frühstück, Mittagsbuffet und Abendessen
• Pflege- und Betreuungsleistungen durch die Caritas OÖ möglich
Ausstattung im Überblick
• Barrierefrei
• Voll ausgestattete Küchenzeile
• Hochwertige Sanitärobjekte
• Anschluss für Waschmaschine vorhanden
• Echtholzboden im Wohn- und Schlafbereich
• Feinsteinzeug in Bad und WC
• Fußbodenheizung in allen Wohnräumen
• Beheizung und Kühlung mittels moderner Wärmepumpe
• Eigene Hygienelüftung in jeder Wohnung für hohe Luftqualität
• Parkplätze vorhanden
Eröffnung im September 2026
Eine Besichtigung der ersten Musterwohnung ist bereits jetzt möglich!
Unverbindlich und kostenlos besichtigen – wir freuen uns auf Ihre Anfrage!
In der PARK Residenz Bad Mühllacken entstehen moderne, komfortable Wohnungen speziell für Menschen ab 55 Jahren, die Wert auf Lebensqualität, Sicherheit und Service legen.
All-Inclusive Wohnen
Im Mietpreis sind bereits sämtliche Kosten enthalten:
Betriebskosten, Heizkosten, Strom, Wasser, Abwasser, Abfallentsorgung sowie Telefonie und Internet – keine versteckten Zusatzkosten.
Diese attraktive Penthousewohnung bietet zwei helle Schlafzimmer, die Ruhe und Rückzugsraum garantieren. Der offene Wohn- und Essbereich mit großer, modern ausgestatteter Küche lädt zum gemütlichen Beisammensein ein. Vom Wohn- und Schlafzimmerbereich aus gelangt man auf den Balkon mit Loggia, der zusätzlichen Platz im Freien bietet und zum Entspannen einlädt.
Dieser Wohnungstyp ist im Dachgeschoss verfügbar.
Rundum-Service inklusive
• wöchentliche Reinigung durch eine Reinigungskraft
• Nutzung des hauseigenen SPA-Bereichs mit Saunalandschaft
• Fitnessstudio direkt im Haus
Individuell hinzubuchbar
• Verpflegung nach Wunsch: reichhaltiges Frühstück, Mittagsbuffet und Abendessen
• Pflege- und Betreuungsleistungen durch die Caritas OÖ möglich
Ausstattung im Überblick
• Barrierefrei
• Voll ausgestattete Küchenzeile
• Hochwertige Sanitärobjekte
• Anschluss für Waschmaschine vorhanden
• Echtholzboden im Wohn- und Schlafbereich
• Feinsteinzeug in Bad und WC
• Fußbodenheizung in allen Wohnräumen
• Beheizung und Kühlung mittels moderner Wärmepumpe
• Eigene Hygienelüftung in jeder Wohnung für hohe Luftqualität
• Parkplätze vorhanden
Eröffnung im September 2026
Eine Besichtigung der ersten Musterwohnung ist bereits jetzt möglich!
Unverbindlich und kostenlos besichtigen – wir freuen uns auf Ihre Anfrage!
Objektdaten
Ausstattung
- Klimatisiert
- Gartennutzung
- Teilmöbliert
- Rollstuhlgerecht
- Kabel/SAT-TV
- Barrierefrei
- Sauna
- Wasch-/Trockenraum
- Sporteinrichtungen
- Zentralheizung
- Personen Fahrstuhl
- Barrierefrei
- Bus
- Geschirrspüler
- Glaskeramikfeld
- Grüne Lage
- Kabel/SAT-TV
- Ländliche Lage
- Rollstuhlgerecht
- Ruhe Lage
- Kabel/SAT-TV
- Sonnenschutz
- Sonnige Lage
- Teilmöbliert
- Trockner
- Waschmaschine
- Zentralheizung mit Wärmepumpe
- Luftwärmepumpe
- Barrierefrei
- Kabel/SAT-TV
- Rollstuhlgerecht
- Kabel/SAT-TV
- Teilmöbliert
Dokumente / Links
Zustand
- Zustand
- GEPFLEGT
Flächen
- Anzahl der Zimmer
- 3.5
- Anzahl der Badezimmer
- 1
- Anzahl der Balkone
- 1
- Wohnfläche
- 79m²
Kosten
- Kaltmiete
- € 2.122,00
Verwaltung
- Verfügbar ab
- September 2026, ab 17. 08. 2026
- Mietdauer
- ab 5,0 Jahre
Wohnungen zum Mieten in Österreich
Wohnungen zum Mieten in Österreich
Andere Besucher suchen nach...
- Immobilien kaufen in 2601 Sollenau
- Immobilien in 4951 Polling im Innkreis, Oberösterreich
- Immobilien in 4742 Pram, Oberösterreich kaufen oder mieten
- Häuser kaufen in 2340 Mödling, Niederösterreich
- Häuser kaufen in 9421 Gemmersdorf, Kärnten
- Wohnungen / Eigentumswohnungen kaufen in 9431 St. Stefan, Kärnten
- Häuser kaufen in Bruck an der Leitha, Niederösterreich
- Immobilien mieten in Krems an der Donau, Niederösterreich
- Häuser zum Kaufen im Bezirk St. Pölten Land, Niederösterreich
- Büro / Praxen mieten in Rohrbach, Oberösterreich