Gartenwohnung inkl. Einbauküche - Top 02
€ 1.022 / Monat
€ 20 / m²
4101 Feldkirchen an der Donau
-
AB SOFORT
Beschreibung
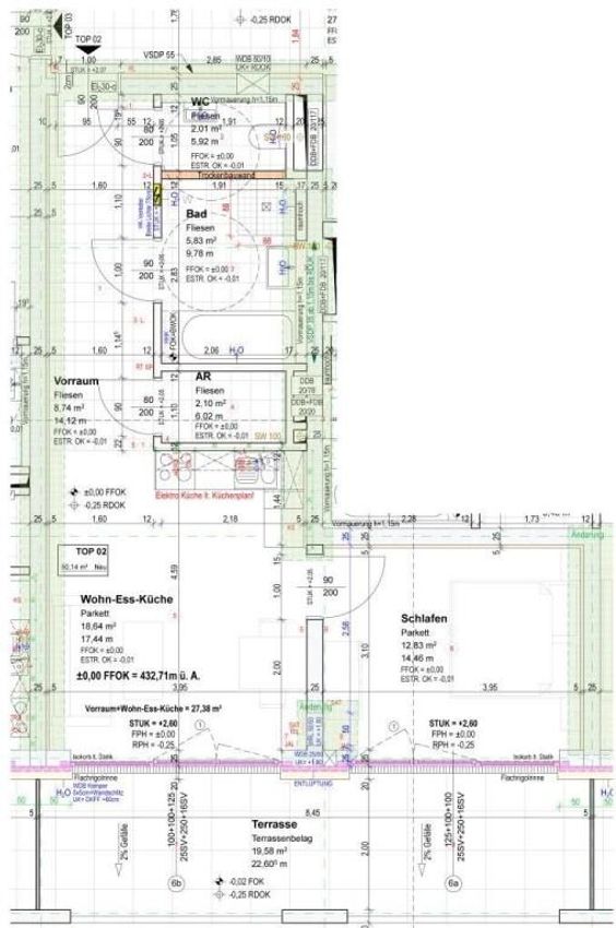
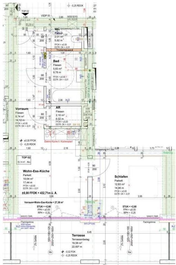
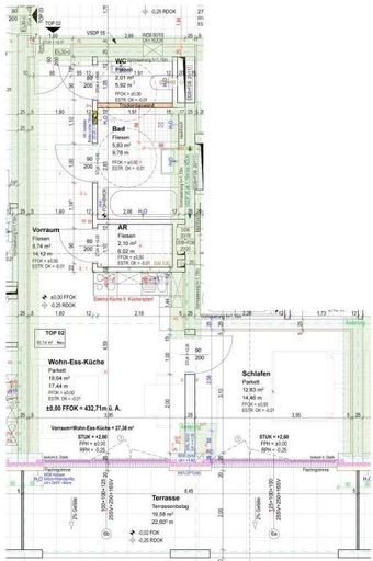
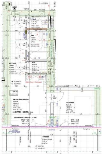
Gartenwohnung inkl. Einbauküche - Top 02 Mietgegenstand: Top 02 - Nutzfläche: ca. 51 m² - Terrasse: ca. 19,58 m² - privater Garten: ca. 55,30 m² - ein Tiefgaragenparkplatz - ein Kellerabteil Die Wohnung überzeugt durch eine durchdachte Raumaufteilung mit Vorraum, Badezimmer, separatem WC, Abstellraum, Wohn-/Ess-/Küchenbereich, einem Schlafzimmer und einem großzügigen Garten. Freuen Sie sich auf ein Zuhause in Niedrigenergiequalität mit geringen Heizkosten und vielen praktischen Extras: Die gemütliche Terasse mit privatem Garten lädt zum Entspannen ein, jede Wohnung verfügt über ein eigenes Kellerabteil, und ein Lift sorgt für barrierefreien Zugang. Integrierte Jalousien bieten zusätzlichen Komfort, und ein Tiefgaragenstellplatz ist inklusive....
Gartenwohnung inkl. Einbauküche - Top 02
Mietgegenstand: Top 02
- Nutzfläche: ca. 51 m²
- Terrasse: ca. 19,58 m²
- privater Garten: ca. 55,30 m²
- ein Tiefgaragenparkplatz
- ein Kellerabteil
Die Wohnung überzeugt durch eine durchdachte Raumaufteilung mit Vorraum, Badezimmer, separatem WC, Abstellraum, Wohn-/Ess-/Küchenbereich, einem Schlafzimmer und einem großzügigen Garten.
Freuen Sie sich auf ein Zuhause in Niedrigenergiequalität mit geringen Heizkosten und vielen praktischen Extras: Die gemütliche Terasse mit privatem Garten lädt zum Entspannen ein, jede Wohnung verfügt über ein eigenes Kellerabteil, und ein Lift sorgt für barrierefreien Zugang. Integrierte Jalousien bieten zusätzlichen Komfort, und ein Tiefgaragenstellplatz ist inklusive.
Die Wohnung ist mit hochwertigen Sanitärobjekten ausgestattet – WC, Badewanne, Dusche und Waschtisch – sowie Anschlüsse für Handtuchheizkörper und Waschmaschine.
Echtholzboden sorgt in Wohn- und Schlafbereichen für gemütliche Atmosphäre, während Küche, Bad, WC, Vorraum und Abstellraum mit pflegeleichtem Feinsteinzeug ausgelegt sind.
Alle Wohnräume verfügen über Fußbodenheizung, das gesamte Objekt wird mit einer modernen Wärmepumpe beheizt und gekühlt, und jede Wohnung besitzt eine eigene Hygienelüftung für frische Luft bei niedrigen Energiekosten.
Überzeugen Sie sich selbst bei einer unverbindlichen und kostenlosen Besichtigung – wir freuen uns auf Ihre Anfrage!
Tel.: 07233 / 20033
E-Mail: office@fah.at
Mietgegenstand: Top 02
- Nutzfläche: ca. 51 m²
- Terrasse: ca. 19,58 m²
- privater Garten: ca. 55,30 m²
- ein Tiefgaragenparkplatz
- ein Kellerabteil
Die Wohnung überzeugt durch eine durchdachte Raumaufteilung mit Vorraum, Badezimmer, separatem WC, Abstellraum, Wohn-/Ess-/Küchenbereich, einem Schlafzimmer und einem großzügigen Garten.
Freuen Sie sich auf ein Zuhause in Niedrigenergiequalität mit geringen Heizkosten und vielen praktischen Extras: Die gemütliche Terasse mit privatem Garten lädt zum Entspannen ein, jede Wohnung verfügt über ein eigenes Kellerabteil, und ein Lift sorgt für barrierefreien Zugang. Integrierte Jalousien bieten zusätzlichen Komfort, und ein Tiefgaragenstellplatz ist inklusive.
Die Wohnung ist mit hochwertigen Sanitärobjekten ausgestattet – WC, Badewanne, Dusche und Waschtisch – sowie Anschlüsse für Handtuchheizkörper und Waschmaschine.
Echtholzboden sorgt in Wohn- und Schlafbereichen für gemütliche Atmosphäre, während Küche, Bad, WC, Vorraum und Abstellraum mit pflegeleichtem Feinsteinzeug ausgelegt sind.
Alle Wohnräume verfügen über Fußbodenheizung, das gesamte Objekt wird mit einer modernen Wärmepumpe beheizt und gekühlt, und jede Wohnung besitzt eine eigene Hygienelüftung für frische Luft bei niedrigen Energiekosten.
Überzeugen Sie sich selbst bei einer unverbindlichen und kostenlosen Besichtigung – wir freuen uns auf Ihre Anfrage!
Tel.: 07233 / 20033
E-Mail: office@fah.at
| Angaben gemäß gesetzlichem Erfordernis: | |||
| Miete | € | 675,49 | zzgl 10% USt. |
| Betriebskosten | € | 129,67 | zzgl 10% USt. |
| Heizkosten | € | 58,38 | zzgl 20% USt. |
| Autoabstellplatz | € | 55,37 | zzgl 20% USt. |
| Umsatzsteuer | € | 103,27 | |
| ------------------------------------------------------------------ | |||
| Gesamtbetrag | € | 1022,18 | |
| ------------------------------------------------------------------ | |||
| Heizwärmebedarf: | 23.98 kWh/(m²a) | ||
Objektdaten
Ausstattung
- Gartennutzung
- Rollstuhlgerecht
- Kabel/SAT-TV
- Unterkellert
- Zentralheizung
- Personen Fahrstuhl
- Neubaustandard
- Aussichtslage
- Aussichtslage Unverbaubar
- Bus
- Dorfrand
- Eisenbahn
- Gegensprechanlage
- Geschirrspüler
- Glaskeramikfeld
- Grüne Lage
- Kabel/SAT-TV
- Küche Möbliert
- Ländliche Lage
- Sonstiges
- Rollstuhlgerecht
- Ruhe Lage
- Kabel/SAT-TV
- Sonnige Lage
- Zentralheizung mit Wärmepumpe
- Luftwärmepumpe
- Kabel/SAT-TV
- Rollstuhlgerecht
- Kabel/SAT-TV
Zustand
- Zustand
- GEPFLEGT
- Baujahr
- ca. 2016
- Alter
- NEUBAU
Flächen
- Anzahl der Zimmer
- 2.5
- Anzahl der Badezimmer
- 1
- Anzahl der sep. WCs
- 1
- Anzahl der Terrassen
- 1
- Stellplätze
- 1
- Wohnfläche
- 51m²
- Terrassenfläche
- 1m²
- Gartenfläche
- 55m²
Kosten
- Kaltmiete
- € 1.022,18
- Nebenkosten
- € 279,14
- Kaution
- € 3.285,00
- Betriebskosten Brutto
- € 142,64
- Heizkosten Brutto
- € 70,06
Verwaltung
- Verfügbar ab
- AB SOFORT
- Mietdauer
- ab 5,0 Jahre
Wohnungen zum Mieten in Österreich
Wohnungen zum Mieten in Österreich
Andere Besucher suchen nach...
- Immobilien kaufen in 2601 Sollenau
- Immobilien in 4951 Polling im Innkreis, Oberösterreich
- Immobilien in 4742 Pram, Oberösterreich kaufen oder mieten
- Häuser kaufen in 2340 Mödling, Niederösterreich
- Häuser kaufen in 9421 Gemmersdorf, Kärnten
- Wohnungen / Eigentumswohnungen kaufen in 9431 St. Stefan, Kärnten
- Häuser kaufen in Bruck an der Leitha, Niederösterreich
- Immobilien mieten in Krems an der Donau, Niederösterreich
- Häuser zum Kaufen im Bezirk St. Pölten Land, Niederösterreich
- Büro / Praxen mieten in Rohrbach, Oberösterreich