Ankommen und wohlfühlen: Stilvolle Dachgeschosswohnung mit Parkplatz
Beschreibung
Wohnen am Waldrand in gemütlicher Dachgeschosswohnung
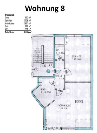
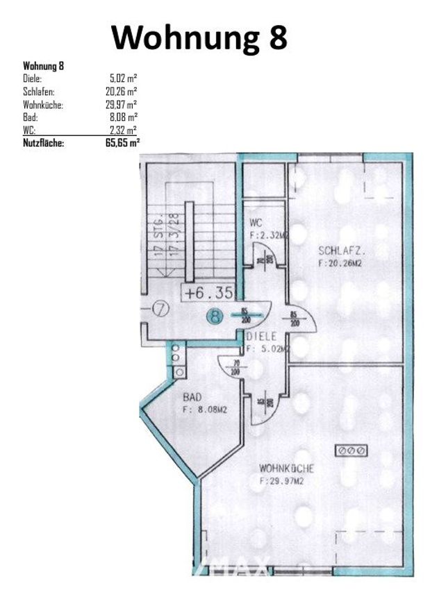
Diese 2 Zimmer-Dachgeschosswohnung (ohne Lift) bietet jungen Paaren ein ideales Zuhause zum Wohlfühlen und Ankommen. Auf ca. 65 m² wartet eine durchdachte Raumaufteilung, die genügenden Platz für den gemeinsamen Alltag schafft. Die natürliche Umgebung und die ruhige Lage machen die Wohnung zum perfekten Ort, um nach der Arbeit runterzukommen.
Direkt am Waldrand gelegen, beginnt die Erholung schon vor der Haustür - ideal für Spaziergänge, kleine Auszeiten zu zweit oder sportliche Aktivitäten im Grünen. Gleichzeitig erreicht man Einkaufsmöglichkeiten, Gastronomie und Dinge des täglichen Bedarfs in wenigen Gehminuten - perfekt für ein unkompliziertes, modernes Leben. Raumaufteilung
...Wohnen am Waldrand in gemütlicher Dachgeschosswohnung
Diese 2 Zimmer-Dachgeschosswohnung (ohne Lift) bietet jungen Paaren ein ideales Zuhause zum Wohlfühlen und Ankommen. Auf ca. 65 m² wartet eine durchdachte Raumaufteilung, die genügenden Platz für den gemeinsamen Alltag schafft. Die natürliche Umgebung und die ruhige Lage machen die Wohnung zum perfekten Ort, um nach der Arbeit runterzukommen.
Direkt am Waldrand gelegen, beginnt die Erholung schon vor der Haustür - ideal für Spaziergänge, kleine Auszeiten zu zweit oder sportliche Aktivitäten im Grünen. Gleichzeitig erreicht man Einkaufsmöglichkeiten, Gastronomie und Dinge des täglichen Bedarfs in wenigen Gehminuten - perfekt für ein unkompliziertes, modernes Leben.
Raumaufteilung
- Offener Wohn- und Essbereich mit integrierter Küche - der Mittelpunkt für gemeinsames Kochen und gemütliche Abende
- Helles Schlafzimmer
- Großzügiges Badezimmer mit Badewanne - perfekt zum Entspannen
- Separates WC
- Praktisches Kellerabteil
- Gemeinschaftlicher Trockenraum
Ihre Vorteile auf einen Blick
- Gemütliche Dachgeschosswohnung - perfekt zum Zurückziehen
- 2 Parkplätze im Mietumfang enthalten
- Haustiere erlaubt - für Paare mit Vierbeinern
- Ruhige, naturnahe Lage direkt am Waldrand - Erholung inklusive
- Infrastruktur (Einkaufen, Öffis, Kinderbetreuung etc.) fußläufig erreichbar
- Nähe zur Lipizzanerheimat - ideal für Freizeit- und Naturfans
- Überschaubares, gepflegtes Wohnhaus mit nur 9 Einheiten
Lage - ruhig, grün & dennoch zentral
Die Wohnung liegt in einem angenehmen Wohngebiet nahe dem Zentrum von Bärnbach. Für junge Paare bietet die Umgebung alles, was das Leben unkompliziert macht: Natur vor der Tür, Freizeitrouten in der Umgebung, kurze Wege zu Einkauf, Gastronomie und öffentlichen Verkehrsmitteln. Alles in ca. 10 Gehminuten erreichbar.
Der Immobilienmakler erklärt, dass er – entgegen dem in der Immobilienwirtschaft üblichen Geschäftsgebrauch des Doppelmaklers – einseitig nur für den Vermieter tätig ist.
Infrastruktur / Entfernungen
Gesundheit
Arzt <1.000m
Apotheke <1.000m
Klinik <2.500m
Krankenhaus <2.000m
Kinder & Schulen
Schule <1.000m
Kindergarten <500m
Nahversorgung
Supermarkt <1.000m
Bäckerei <1.000m
Einkaufszentrum <2.000m
Sonstige
Geldautomat <1.000m
Bank <1.000m
Post <1.000m
Polizei <2.500m
Verkehr
Bus <500m
Bahnhof <1.500m
Angaben Entfernung Luftlinie / Quelle: OpenStreetMap
Objektdaten
Ausstattung
- Kamin
- Gartennutzung
- Kabel/SAT-TV
- Wasch-/Trockenraum
- Zentralheizung
- Fern Befeuerung
Dokumente / Links
Zustand
- Zustand
- GEPFLEGT
- Baujahr
- 1969
- HWB
- 79.9 kWh/m² pro Jahr
- Klasse HWB
- C
- fGEE
- 1.19
- Klasse fGEE
- C
Flächen
- Anzahl der Zimmer
- 2
- Anzahl der Badezimmer
- 1
- Anzahl der sep. WCs
- 1
- Stellplätze
- 2
- Wohnfläche
- 66m²
Kosten
- Gesamtmiete Brutto
- € 591,66
- Kaution
- € 2.026,98
- Miete
- € 377,87
- Betriebskosten
- € 119,00
- Heizkosten
- € 70,00
- Sonstige Kosten
- € 40,00
- Umsatzsteuer
- € 68,79
- Monatl. Gesamtbelastung Brutto
- € 675,66
Wohnungen zum Mieten im Umkreis von Bärnbach
Wohnungen zum Mieten in Österreich
Andere Besucher suchen nach...
- Grundstücke kaufen in 3400 Weidlingbach
- Wohnungen kaufen in 4663 Laakirchen
- Häuser in 7471 Rechnitz
- Wohnungen in 2410 Hainburg an der Donau
- Häuser kaufen in 2432 Schwadorf
- Wohnungen kaufen in 3002 Purkersdorf
- Häuser in 3150 Wilhelmsburg
- Wohnungen kaufen in 3470 Engelmannsbrunn
- Grundstücke kaufen im Bezirk Mattersburg
- Grundstücke kaufen im Bezirk Gmunden