Naturnahes Wohnen in Gunskirchen - geförderte Mietwohnungen in moderner Hybridbauweise
-
Erstbezug
-
2025
-
Mitte 2026
Beschreibung
Wohnen in Gunskirchen
Am ehemaligen Sportplatz in der Gärtnerstraße in Gunskirchen errichtet die WAG drei moderne Wohngebäude mit insgesamt 60 geförderten Mietwohnungen und einer Tiefgarage mit 81 Stellplätzen. Die Anlage entsteht in nachhaltiger Hybridbauweise und bietet Wohnraum für unterschiedliche Lebenssituationen.
Wie bei allen WAG-Neubauprojekten steht der Einsatz energieeffizienter und umweltschonender Technologien im Vordergrund: Die Geschoßdecken verfügen über eine integrierte Deckenheizung, die in den Wintermonaten nicht nur wohlige Wärme erzeugt, sondern auch im Sommer zur sanften Temperierung eingesetzt werden kann. Das Flachdach wird begrünt und mit einer Photovoltaikanlage ausgestattet – das sorgt für ein besseres Mikroklima sowie ein Plus an Nachhaltigkeit.
...Wohnen in Gunskirchen
Am ehemaligen Sportplatz in der Gärtnerstraße in Gunskirchen errichtet die WAG drei moderne Wohngebäude mit insgesamt 60 geförderten Mietwohnungen und einer Tiefgarage mit 81 Stellplätzen. Die Anlage entsteht in nachhaltiger Hybridbauweise und bietet Wohnraum für unterschiedliche Lebenssituationen.
Wie bei allen WAG-Neubauprojekten steht der Einsatz energieeffizienter und umweltschonender Technologien im Vordergrund: Die Geschoßdecken verfügen über eine integrierte Deckenheizung, die in den Wintermonaten nicht nur wohlige Wärme erzeugt, sondern auch im Sommer zur sanften Temperierung eingesetzt werden kann. Das Flachdach wird begrünt und mit einer Photovoltaikanlage ausgestattet – das sorgt für ein besseres Mikroklima sowie ein Plus an Nachhaltigkeit.
Bei dieser Wohnung sind zwei Tiefgaragenplätze zugordnet. In der Gesamtmiete sind bereits die beiden Tiefgaragenplätze inkludiert.
Wohnung Top 17, 2. OG, mit Balkon:
Miete inkl. Betriebs- und Verwaltungskosten sowie MwSt: € 892,72
Heizung samt Deckentemperierung inkl. MwSt.: ca. € 114,64
Miete 1. TG-Stellplatz inkl. MwSt.: ca. € 91,43
Miete 2. TG-Stellplatz inkl. MwSt.: ca. € 90,02
Monatliche Kosten gesamt: € 1.188,81 (ohne Strom)
Baukostenbetrag Wohnung: € 3.126,81
Baukostenbeitrag 1. Tiefgaragenplatz: ca. € 530,00
Baukostenbeitrag 2. Tiefgaragenplatz: ca. € 530,00
Sie sind an weiteren Wohnungs- bzw. Gewerbeangeboten interessiert? Ein vielfältiges Angebot finden Sie auf unserer Website.
Zur WAG-Immobiliensuche: SUCHE
Zur WAG-Wohnungsanmeldung: Wohnungsanmeldung
Gerne beraten wir Sie persönlich über unser vielfältiges Angebot, rufen Sie uns einfach an! Und das natürlich ohne Vermittlungsgebühren und provisionsfrei!
Angaben sind ohne Gewähr auf Richtigkeit und Vollständigkeit. Druckfehler vorbehalten.
Infrastruktur / Entfernungen
Gesundheit
Arzt <1.000m
Apotheke <1.000m
Klinik <5.500m
Krankenhaus <8.000m
Kinder & Schulen
Schule <1.000m
Kindergarten <1.000m
Universität <7.000m
Nahversorgung
Supermarkt <500m
Bäckerei <1.000m
Einkaufszentrum <3.000m
Sonstige
Bank <1.000m
Geldautomat <1.000m
Post <1.000m
Polizei <1.000m
Verkehr
Bus <500m
Autobahnanschluss <4.000m
Bahnhof <500m
Flughafen <9.500m
Angaben Entfernung Luftlinie / Quelle: OpenStreetMap
Objektdaten
Ausstattung
- Barrierefrei
- Bad mit Badewanne
- Offene Küche
- Fliesenboden
- Parkettboden
- Personen Fahrstuhl
- Ausrichtung Balkon/Terrasse - Südwest
- Flachdach
Dokumente / Links
Zustand
- Zustand
- ERSTBEZUG
- Baujahr
- 2025
- Alter
- NEUBAU
- HWB
- 32.8 kWh/m² pro Jahr
- fGEE
- 0.75
Flächen
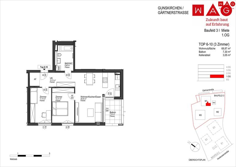
- Anzahl der Zimmer
- 3
- Anzahl der Balkone
- 1
- Stellplätze
- 1
- Wohnfläche
- 69m²
- Kellerfläche
- 3m²
Kosten
- Gesamtmiete Brutto
- € 1.074,17
- Miete
- € 744,32
- Betriebskosten
- € 218,45
- Heizkosten
- € 95,53
- Umsatzsteuer
- € 130,51
- Monatl. Gesamtbelastung Brutto
- € 1.188,81
Verwaltung
- Verfügbar ab
- Mitte 2026
Wohnungen zum Mieten im Umkreis von Gunskirchen
Wohnungen zum Mieten im Umkreis von Gunskirchen
Wohnungen zum Mieten in Österreich
Andere Besucher suchen nach...
- Grundstücke kaufen in 3400 Weidlingbach
- Wohnungen kaufen in 4663 Laakirchen
- Häuser in 7471 Rechnitz
- Wohnungen in 2410 Hainburg an der Donau
- Häuser kaufen in 2432 Schwadorf
- Wohnungen kaufen in 3002 Purkersdorf
- Häuser in 3150 Wilhelmsburg
- Wohnungen kaufen in 3470 Engelmannsbrunn
- Grundstücke kaufen im Bezirk Mattersburg
- Grundstücke kaufen im Bezirk Gmunden