Gemütliche Garçonnière – Lift direkt zur Wohnung - ZU MIETEN
-
sofort
Beschreibung
Gemütliche Garçonnière – Lift direkt zur Wohnung - ZU MIETEN
Diese gepflegte 1-Zimmer-Wohnung in Steinhaus im 1. Obergeschoss bietet ein ideales Zuhause für Singles. Dank des Lifts gelangen Sie direkt in die Wohnung, alternativ ist das 1. OG auch über das Treppenhaus bequem erreichbar. Die ca. 40 m² große Wohnung überzeugt durch eine clevere Raumaufteilung: der einladende Vorraum führt in das helle Wohn- und Schlafzimmer mit integrierter Küche – so entsteht ein offener, funktionaler Wohnbereich. Das Badezimmer ist mit WC und Dusche ausgestattet. Ein komfortables Zuhause, das praktische Ausstattung und gemütliches Wohnen optimal vereint. Die Miete versteht sich inklusive Betriebskosten...
Gemütliche Garçonnière – Lift direkt zur Wohnung - ZU MIETEN
Diese gepflegte 1-Zimmer-Wohnung in Steinhaus im 1. Obergeschoss bietet ein ideales Zuhause für Singles. Dank des Lifts gelangen Sie direkt in die Wohnung, alternativ ist das 1. OG auch über das Treppenhaus bequem erreichbar. Die ca. 40 m² große Wohnung überzeugt durch eine clevere Raumaufteilung: der einladende Vorraum führt in das helle Wohn- und Schlafzimmer mit integrierter Küche – so entsteht ein offener, funktionaler Wohnbereich. Das Badezimmer ist mit WC und Dusche ausgestattet. Ein komfortables Zuhause, das praktische Ausstattung und gemütliches Wohnen optimal vereint. Die Miete versteht sich inklusive Betriebskosten und Heizkosten. Der Lift ist absperrbar.
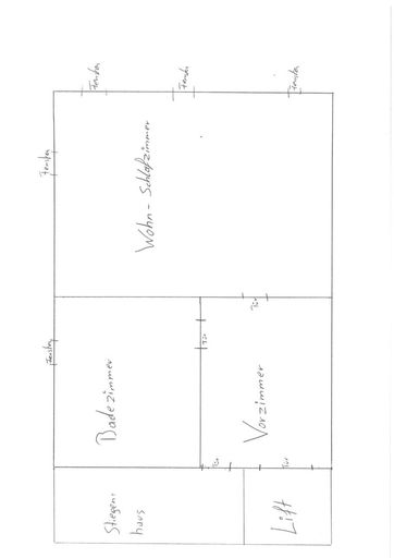
Raumaufteilung
Vorraum - Badezimmer mit WC - Wohn-/Esszimmer
Lage
Die Wohnung verbindet ein ruhiges Wohnumfeld mit hervorragender Infrastruktur. Öffentliche Verkehrsmittel, Einkaufsmöglichkeiten und Nahversorger sind bequem zu Fuß erreichbar. In unmittelbarer Nähe finden Sie Apotheken, Arztpraxen sowie Cafés und Restaurants – ideal für den Alltag. Freizeit- und Grünflächen in der Umgebung laden zu Spaziergängen und Erholung ein.
Sie haben Interesse?
Ansehen lohnt sich - wir freuen uns über Ihr Interesse! Für weitere Fragen stehen wir Ihnen gerne unter der Rufnummer 0664 39 83 462 zur Verfügung.
Auf Wunsch stellen wir gerne einen Kontakt zu Finanzierungsexperten her.
Rechtliche Informationen
Bitte beachten Sie, dass aufgrund unserer ALLEINBEAUFTRAGUNG und Nachweispflicht für den Abgeber ausschließlich Anfragen unter Angabe Ihrer VOLLSTÄNDIGEN DATEN bearbeiten können (NAME, ANSCHRIFT, E-Mail, Telefonnummer). Explizit weisen wir daraufhin, dass alle Angaben nach bestem Wissen erstellt wurden. Irrtümer, Druckfehler und Änderungen vorbehalten. Für Auskünfte u. Angaben, die uns von Seiten der Eigentümer und Dritten zur Verfügung gestellt wurden, können wir keine Haftung übernehmen.
Der Immobilienmakler erklärt, dass er – entgegen dem in der Immobilienwirtschaft üblichen Geschäftsgebrauch des Doppelmaklers – einseitig nur für den Vermieter tätig ist.
Infrastruktur / Entfernungen
Gesundheit
Arzt <500m
Apotheke <4.500m
Klinik <5.000m
Krankenhaus <7.000m
Kinder & Schulen
Schule <500m
Kindergarten <500m
Universität <5.500m
Nahversorgung
Supermarkt <4.500m
Bäckerei <500m
Einkaufszentrum <5.000m
Sonstige
Bank <500m
Geldautomat <5.000m
Post <5.000m
Polizei <5.000m
Verkehr
Bus <500m
Autobahnanschluss <5.000m
Bahnhof <1.000m
Flughafen <8.000m
Angaben Entfernung Luftlinie / Quelle: OpenStreetMap
Objektdaten
Ausstattung
- Bad mit Dusche
- Einbauküche
- Laminatboden
- Befeuerung mit Öl
- Personen Fahrstuhl
Zustand
- Baujahr
- 2000
Flächen
- Anzahl der Zimmer
- 1
- Anzahl der Badezimmer
- 1
- Anzahl der sep. WCs
- 1
- Stellplätze
- 1
- Wohnfläche
- 40m²
Kosten
- Gesamtmiete Brutto
- € 400,00
- Kaution
- € 800,00
- Miete
- € 363,64
- Umsatzsteuer
- € 36,36
- Monatl. Gesamtbelastung Brutto
- € 400,00
Verwaltung
- Verfügbar ab
- sofort
- Mietdauer
- bis 3,0 Jahre
Wohnungen zum Mieten im Umkreis von Steinhaus
Wohnungen zum Mieten im Umkreis von Steinhaus
Wohnungen zum Mieten in Österreich
Andere Besucher suchen nach...
- Grundstücke kaufen in 3400 Weidlingbach
- Wohnungen kaufen in 4663 Laakirchen
- Häuser in 7471 Rechnitz
- Wohnungen in 2410 Hainburg an der Donau
- Häuser kaufen in 2432 Schwadorf
- Wohnungen kaufen in 3002 Purkersdorf
- Häuser in 3150 Wilhelmsburg
- Wohnungen kaufen in 3470 Engelmannsbrunn
- Grundstücke kaufen im Bezirk Mattersburg
- Grundstücke kaufen im Bezirk Gmunden