AB 01.03.2026! KEINE BEFRISTUNG! Geräumige 3-Zimmerwohnung mit rd. 85,00 m² inkl. Lift und praktischem Keller!
-
01.03.2026
Beschreibung
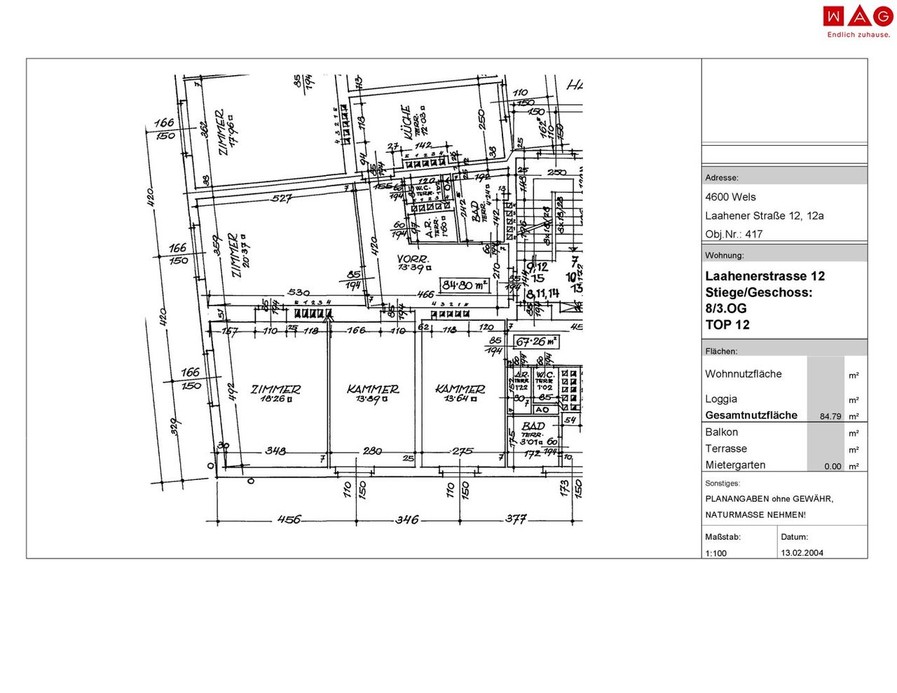
Wels/Laahener Straße 12/ 3. OG Tür 12:
ACHTUNG: Die Wohnung ist leer und wird ohne Möbel vermietet; mögliche Einrichtungsvorschläge wurden nur zur Veranschaulichung visualisiert.
Zur Vermietung steht eine gepflegte ca. 85 m² große 3 Zimmer (+ seperate Küche) - Wohnung mit Lift und Abstellraum in der Laahener Straße 12, 4600 Wels. Ein besonderer Vorteil: Die monatliche Gesamtmiete beinhaltet bereits Heizung und Warmwasser. Die Wohnung überzeugt durch eine großzügige Raumaufteilung, helle Räume und eine sehr gute Infrastruktur – ideal für Paare oder kleine Familien.
Raumaufteilung: Die ca. 85 m² große Wohnung überzeugt durch eine klare, funktionale und gut nutzbare...
Wels/Laahener Straße 12/ 3. OG Tür 12:
ACHTUNG: Die Wohnung ist leer und wird ohne Möbel vermietet; mögliche Einrichtungsvorschläge wurden nur zur Veranschaulichung visualisiert.
Zur Vermietung steht eine gepflegte ca. 85 m² große 3 Zimmer (+ seperate Küche) - Wohnung mit Lift und Abstellraum in der Laahener Straße 12, 4600 Wels.
Ein besonderer Vorteil: Die monatliche Gesamtmiete beinhaltet bereits Heizung und Warmwasser.
Die Wohnung überzeugt durch eine großzügige Raumaufteilung, helle Räume und eine sehr gute Infrastruktur – ideal für Paare oder kleine Familien.
Raumaufteilung:
Die ca. 85 m² große Wohnung überzeugt durch eine klare, funktionale und gut nutzbare Raumaufteilung:
- großzügiger Vorraum mit Platz für Garderobe
- helles Wohnzimmer mit angenehmer Raumgröße
- separate Küche mit guter Arbeits- und Staufläche
- zwei weitere Zimmer, ideal als Schlaf-, Kinder- oder Arbeitszimmer
- Badezimmer mit Badewanne
- separates WC
- Abstellraum innerhalb der Wohnung
- zusätzliches Kellerabteil
Highlights:
- Lift im Haus – bequem erreichbar
- Miete inkl. Heizung & Warmwasser (Fernwärme)
- ca. 85 m² Wohnnutzfläche
- 3-Zimmer-Wohnung mit separater Küche
- praktischer Abstellraum
- gepflegter Zustand
- gute natürliche Belichtung
- zentrale Lage in Wels mit sehr guter Infrastruktur
Aktueller Sanierungsstand (vor Bezug):
Die Wohnung befindet sich derzeit in Sanierung. Die folgenden Instandsetzungs- und Verbesserungsmaßnahmen werden aktuell durchgeführt bzw. demnächst abgeschlossen:
- Erneuerung der Silikonfuge im Badezimmer
- Die gesamte Wohnung wird frisch ausgemalt
- ÖVE-Überprüfung (elektrische Sicherheit) wird durchgeführt
- Böden werden teilweise geschliffen und eingelassen
Lage:
Die Wohnung befindet sich in der Laahener Straße 12, 4600 Wels, einer zentralen und gut angebundenen Wohnlage mit ausgezeichneter Infrastruktur.
Einkaufsmöglichkeiten für den täglichen Bedarf, Schulen, Kindergärten, Ärzte sowie Apotheken sind rasch erreichbar. Öffentliche Verkehrsmittel befinden sich in der Nähe und ermöglichen eine schnelle Verbindung in die Welser Innenstadt sowie zum Hauptbahnhof Wels.
Auch die Anbindung an das überregionale Verkehrsnetz ist sehr gut: Die Autobahnen A25 und A8 sind in wenigen Minuten erreichbar und bieten eine schnelle Verbindung in Richtung Linz, Passau und Salzburg.
Die Lage eignet sich ideal für Berufstätige, Paare und Familien, die eine zentrale Wohnlage mit guter Erreichbarkeit und urbaner Infrastruktur schätzen.
Mietkonditionen:
- Gesamtmiete (brutto): € 820,66 pro Monat
(inkl. Betriebskosten, Heizung und Warmwasser) - Kaution: € 2.461,98
- Mietbeginn / Beziehbarkeit: ab 01.03.2026
- Mietdauer: unbefristet
- Strom: separat nach Verbrauch
Verfügbarkeit:
Die Wohnung ist ab 01.03.2026 verfügbar.
Der Immobilienmakler erklärt, dass er – entgegen dem in der Immobilienwirtschaft üblichen Geschäftsgebrauch des Doppelmaklers – einseitig nur für den Vermieter tätig ist.
Sie sind an weiteren Wohnungs- bzw. Gewerbeangeboten interessiert? Ein vielfältiges Angebot finden Sie auf unserer Website.
Zur WAG-Immobiliensuche: SUCHE
Zur WAG-Wohnungsanmeldung: Wohnungsanmeldung
Gerne beraten wir Sie persönlich über unser vielfältiges Angebot, rufen Sie uns einfach an! Und das natürlich ohne Vermittlungsgebühren und provisionsfrei!
Angaben sind ohne Gewähr auf Richtigkeit und Vollständigkeit. Druckfehler vorbehalten.
Infrastruktur / Entfernungen
Gesundheit
Arzt <300m
Apotheke <100m
Klinik <1.150m
Krankenhaus <1.250m
Kinder & Schulen
Schule <400m
Kindergarten <400m
Universität <925m
Nahversorgung
Supermarkt <175m
Bäckerei <250m
Einkaufszentrum <2.025m
Sonstige
Bank <175m
Geldautomat <175m
Post <250m
Polizei <825m
Verkehr
Bus <25m
Autobahnanschluss <1.975m
Bahnhof <900m
Flughafen <2.700m
Angaben Entfernung Luftlinie / Quelle: OpenStreetMap
Objektdaten
Ausstattung
- Kabel/SAT-TV
- Bad mit Badewanne
- Fliesenboden
- Parkettboden
- Zentralheizung
- Fernwärme Heizung
- Fern Befeuerung
- Personen Fahrstuhl
- Satteldach
- Massiv Bauweise
Dokumente / Links
Zustand
- Zustand
- GEPFLEGT
- HWB
- 46 kWh/m² pro Jahr
- Klasse HWB
- B
- fGEE
- 1.11
- Klasse fGEE
- C
Flächen
- Anzahl der Zimmer
- 3.5
- Anzahl der Badezimmer
- 1
- Anzahl der sep. WCs
- 1
- Wohnfläche
- 85m²
Kosten
- Gesamtmiete Brutto
- € 761,47
- Kaution
- € 2.461,98
- Miete
- € 453,68
- Betriebskosten
- € 238,56
- Heizkosten
- € 51,03
- Umsatzsteuer
- € 77,39
- Monatl. Gesamtbelastung Brutto
- € 820,66
Verwaltung
- Verfügbar ab
- 01.03.2026, ab 01. 03. 2026
Wohnungen zum Mieten in Österreich
Wohnungen zum Mieten in Österreich
Wohnungen zum Mieten in Österreich
Andere Besucher suchen nach...
- Grundstücke kaufen in 3400 Weidlingbach
- Wohnungen kaufen in 4663 Laakirchen
- Häuser in 7471 Rechnitz
- Wohnungen in 2410 Hainburg an der Donau
- Häuser kaufen in 2432 Schwadorf
- Wohnungen kaufen in 3002 Purkersdorf
- Häuser in 3150 Wilhelmsburg
- Wohnungen kaufen in 3470 Engelmannsbrunn
- Grundstücke kaufen im Bezirk Mattersburg
- Grundstücke kaufen im Bezirk Gmunden