Tolle Wohnung mit schönem BALKON - ideal für Kleinfamilien
-
01.03.2026
Beschreibung
Willkommen in Ihrem neuen Zuhause in Wels – einer charmanten Wohnung, die Ihnen nicht nur ein stilvolles Wohnerlebnis, sondern auch eine hervorragende Lebensqualität bietet!
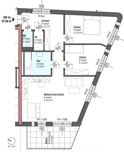
Diese großzügige Wohnung befindet sich in der begehrten 2. Etage eines gepflegten Mehrfamilienhauses und besticht durch ihre durchdachte Raumaufteilung. Mit einer Fläche von 87,06 m² bietet sie genügend Platz für Ihre individuellen Wohnbedürfnisse und lädt dazu ein, persönliche Akzente zu setzen.
Der lichtdurchflutete Wohnbereich ist das Herzstück dieser Wohnung, in dem Sie entspannen und gesellige Abende mit Freunden und Familie verbringen können. Von hier aus gelangen Sie auf den charmanten Balkon, der Ihnen die Möglichkeit bietet,...
Willkommen in Ihrem neuen Zuhause in Wels – einer charmanten Wohnung, die Ihnen nicht nur ein stilvolles Wohnerlebnis, sondern auch eine hervorragende Lebensqualität bietet!
Diese großzügige Wohnung befindet sich in der begehrten 2. Etage eines gepflegten Mehrfamilienhauses und besticht durch ihre durchdachte Raumaufteilung. Mit einer Fläche von 87,06 m² bietet sie genügend Platz für Ihre individuellen Wohnbedürfnisse und lädt dazu ein, persönliche Akzente zu setzen.
Der lichtdurchflutete Wohnbereich ist das Herzstück dieser Wohnung, in dem Sie entspannen und gesellige Abende mit Freunden und Familie verbringen können. Von hier aus gelangen Sie auf den charmanten Balkon, der Ihnen die Möglichkeit bietet, frische Luft zu schnappen und die Sonne zu genießen – der perfekte Ort für Ihre Morgenkaffeemomente oder entspannende Sommerabende.
Die Wohnung ist nicht nur ein Ort zum Leben, sondern auch ein Ort, an dem Sie sich wohlfühlen können. In unmittelbarer Nähe finden Sie eine Vielzahl von Annehmlichkeiten. Ärzte, Apotheken und eine Klinik sind schnell erreichbar, sodass Sie im Falle eines Falles bestens versorgt sind. Für Familien mit Kindern gibt es Schulen und Kindergärten in der Umgebung, die Ihnen eine unkomplizierte Betreuung Ihrer Kleinen garantieren. Supermärkte und Bäckereien sind ebenfalls nur wenige Schritte entfernt, sodass Sie die täglichen Besorgungen bequem erledigen können.
Die Verkehrsanbindung könnte nicht besser sein! Mit der Bushaltestelle und dem Bahnhof in der Nähe sind Sie perfekt an das öffentliche Verkehrsnetz angebunden. Ob für den täglichen Arbeitsweg oder für Ausflüge in die Umgebung – hier sind Sie stets mobil und flexibel.
Ergreifen Sie die Chance und machen Sie diese Wohnung zu Ihrem neuen Zuhause in Wels. Genießen Sie die perfekte Kombination aus urbanem Leben und ländlichem Charme, die Ihnen diese Immobilie bietet. Wir freuen uns darauf, Ihnen diese einzigartige Wohnung persönlich vorzustellen!
Tiefgaragenplatz: wird derzeit mit Euro 74,86 inkl. USt. monatlich akontiert
Heizkosten: werden derzeit mit Euro 80,88 inkl. USt. monatlich akontiert
Wir weisen darauf hin, dass zwischen dem Vermittler und dem zu vermittelnden Dritten ein familiäres oder wirtschaftliches Naheverhältnis besteht.
Der Immobilienmakler erklärt, dass er – entgegen dem in der Immobilienwirtschaft üblichen Geschäftsgebrauch des Doppelmaklers – einseitig nur für den Vermieter tätig ist.
Infrastruktur / Entfernungen
Gesundheit
Arzt <500m
Apotheke <500m
Klinik <1.000m
Krankenhaus <1.500m
Kinder & Schulen
Schule <500m
Kindergarten <500m
Universität <1.500m
Nahversorgung
Supermarkt <500m
Bäckerei <500m
Einkaufszentrum <2.500m
Sonstige
Bank <500m
Geldautomat <500m
Post <500m
Polizei <1.000m
Verkehr
Bus <500m
Autobahnanschluss <2.000m
Bahnhof <1.000m
Flughafen <3.000m
Angaben Entfernung Luftlinie / Quelle: OpenStreetMap
Objektdaten
Flächen
- Anzahl der Zimmer
- 3
- Anzahl der Balkone
- 1
- Stellplätze
- 1
- Wohnfläche
- 87m²
- Kellerfläche
- 4m²
Kosten
- Gesamtmiete Brutto
- € 1.294,64
- Miete
- € 890,15
- Betriebskosten
- € 286,79
- Umsatzsteuer
- € 117,70
- Monatl. Gesamtbelastung Brutto
- € 1.294,64
Verwaltung
- Verfügbar ab
- 01.03.2026, ab 01. 03. 2026
- Mietdauer
- bis 5,0 Jahre
Wohnungen zum Mieten in Österreich
Wohnungen zum Mieten in Österreich
Andere Besucher suchen nach...
- Immobilien kaufen in 2601 Sollenau
- Immobilien in 4951 Polling im Innkreis, Oberösterreich
- Immobilien in 4742 Pram, Oberösterreich kaufen oder mieten
- Häuser kaufen in 2340 Mödling, Niederösterreich
- Häuser kaufen in 9421 Gemmersdorf, Kärnten
- Wohnungen / Eigentumswohnungen kaufen in 9431 St. Stefan, Kärnten
- Häuser kaufen in Bruck an der Leitha, Niederösterreich
- Immobilien mieten in Krems an der Donau, Niederösterreich
- Häuser zum Kaufen im Bezirk St. Pölten Land, Niederösterreich
- Büro / Praxen mieten in Rohrbach, Oberösterreich