Elegante Loft-Wohnung mit Stuckdecken & Intarsientüren
-
16.01.2026
Beschreibung
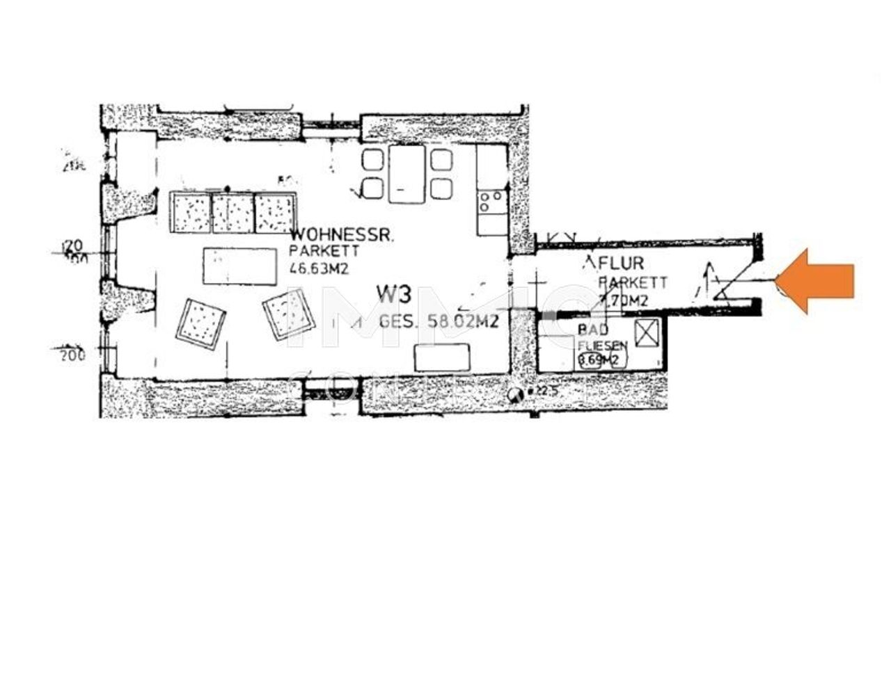
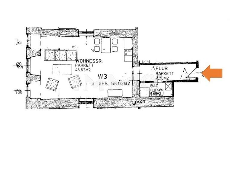
Diese Wohnung befindet sich in einem historischen Gebäude mitten am Welser Stadtplatz. Das Objekt ist mit schönen Parkettböden ausgestattet und verfügt über eine moderne Einbauküche. Diese ist fixer Bestandteil der Wohnung und somit ohne Ablöse. Die Wohnung befindet sich im 1. Obergeschoss und ist auch mittels Lift erreichbar. Raumaufteilung: Vorraum, Badezimmer / WC, Wohn-Ess-Schlafbereich mit moderner Küche.
Der Immobilienmakler erklärt, dass er – entgegen dem in der Immobilienwirtschaft üblichen Geschäftsgebrauch des Doppelmaklers – einseitig nur für den Vermieter tätig ist.
Infrastruktur / Entfernungen
Gesundheit Arzt <500m Apotheke <500m Klinik <1.000m Krankenhaus <2.000m Kinder & Schulen Schule <500m Kindergarten <1.000m Universität...
Diese Wohnung befindet sich in einem historischen Gebäude mitten am Welser Stadtplatz.
Das Objekt ist mit schönen Parkettböden ausgestattet und verfügt über eine moderne Einbauküche. Diese ist fixer Bestandteil der Wohnung und somit ohne Ablöse.
Die Wohnung befindet sich im 1. Obergeschoss und ist auch mittels Lift erreichbar.
Raumaufteilung: Vorraum, Badezimmer / WC, Wohn-Ess-Schlafbereich mit moderner Küche.
Der Immobilienmakler erklärt, dass er – entgegen dem in der Immobilienwirtschaft üblichen Geschäftsgebrauch des Doppelmaklers – einseitig nur für den Vermieter tätig ist.
Infrastruktur / Entfernungen
Gesundheit
Arzt <500m
Apotheke <500m
Klinik <1.000m
Krankenhaus <2.000m
Kinder & Schulen
Schule <500m
Kindergarten <1.000m
Universität <500m
Nahversorgung
Supermarkt <500m
Bäckerei <500m
Einkaufszentrum <3.000m
Sonstige
Bank <500m
Geldautomat <500m
Post <500m
Polizei <500m
Verkehr
Bus <500m
Autobahnanschluss <3.500m
Bahnhof <1.000m
Flughafen <3.000m
Angaben Entfernung Luftlinie / Quelle: OpenStreetMap
Objektdaten
Ausstattung
- Einbauküche
- Zentralheizung
- Personen Fahrstuhl
Zustand
- HWB
- 70.8 kWh/m² pro Jahr
- Klasse HWB
- C
- fGEE
- 1.71
- Klasse fGEE
- C
Flächen
- Anzahl der Zimmer
- 1
- Wohnfläche
- 58m²
Kosten
- Gesamtmiete Brutto
- € 698,46
- Miete
- € 487,37
- Betriebskosten
- € 147,59
- Heizkosten
- € 33,00
- Umsatzsteuer
- € 70,10
- Monatl. Gesamtbelastung Brutto
- € 738,06
Verwaltung
- Verfügbar ab
- 16.01.2026, ab 16. 01. 2026
- Mietdauer
- bis 5,0 Jahre
Wohnungen zum Mieten in Österreich
Wohnungen zum Mieten in Österreich
Wohnungen zum Mieten in Österreich
Andere Besucher suchen nach...
- Grundstücke kaufen in 3400 Weidlingbach
- Wohnungen kaufen in 4663 Laakirchen
- Häuser in 7471 Rechnitz
- Wohnungen in 2410 Hainburg an der Donau
- Häuser kaufen in 2432 Schwadorf
- Wohnungen kaufen in 3002 Purkersdorf
- Häuser in 3150 Wilhelmsburg
- Wohnungen kaufen in 3470 Engelmannsbrunn
- Grundstücke kaufen im Bezirk Mattersburg
- Grundstücke kaufen im Bezirk Gmunden