Großzügige 4-Zimmer-Wohnung mit in Wels/Vogelweide– 89,08 m² – mit Balkon – verfügbar 01.04.2026
-
01.05.2026
Beschreibung
Wels / Innere Stadt Wels / Laahener Straße 8 :
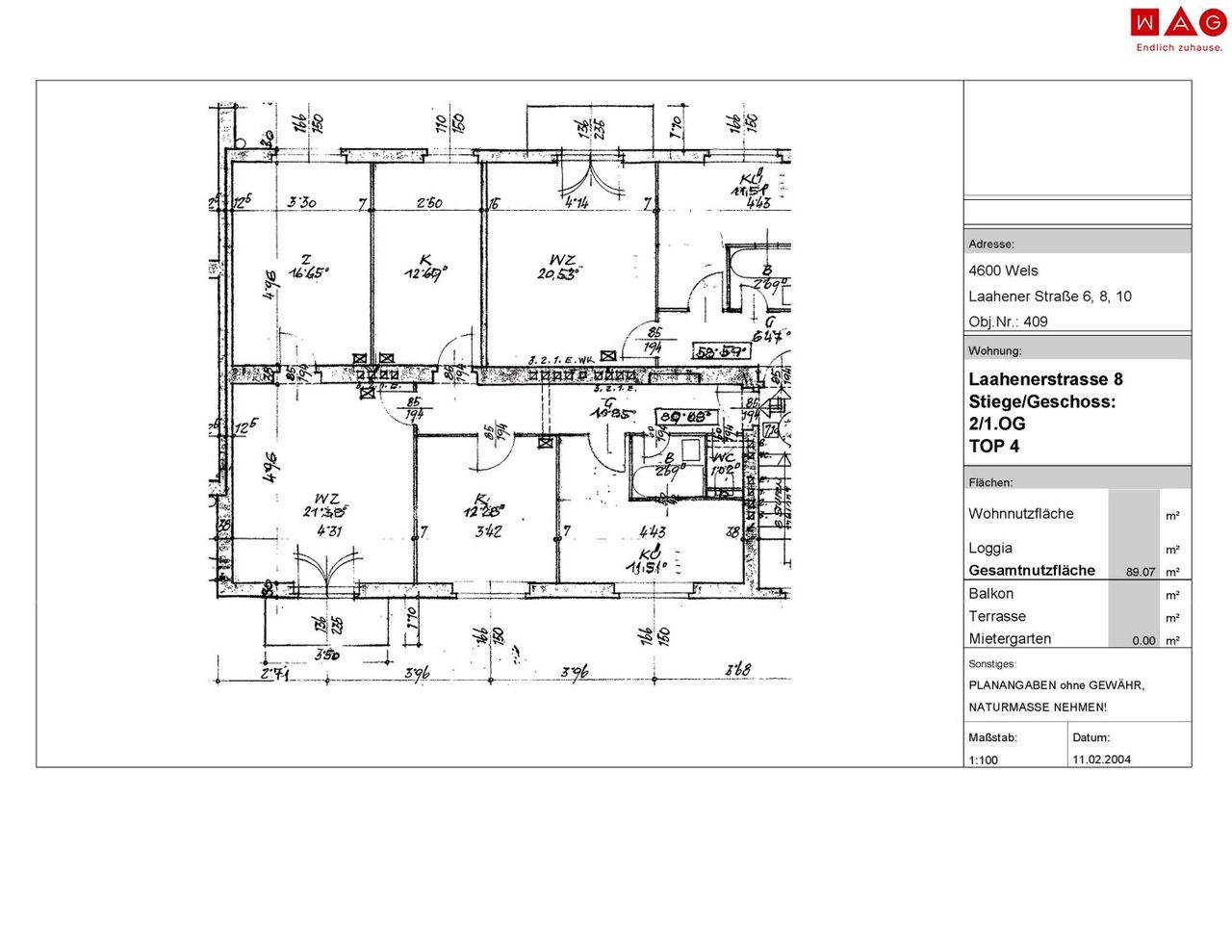
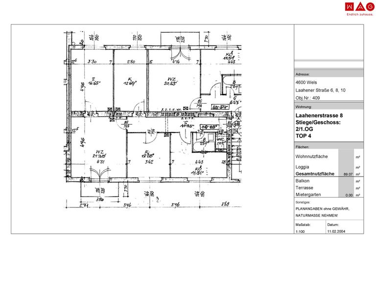
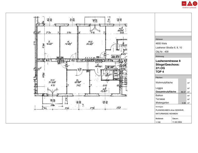
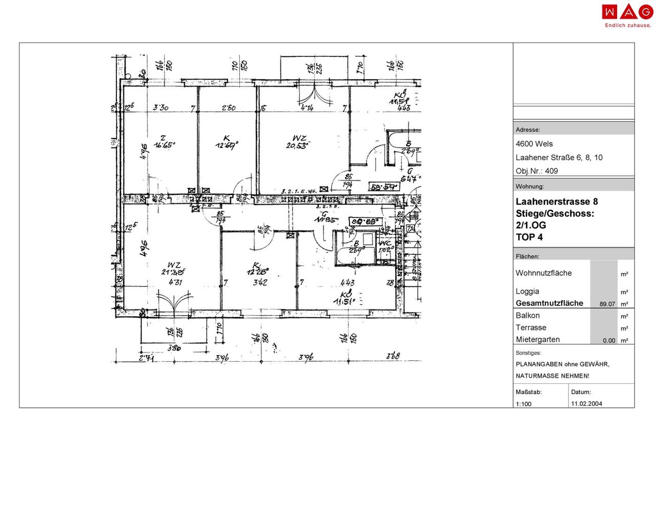
In der Laahener Straße 8, 4600 Wels, steht diese großzügig geschnittene Wohnung im 1. Obergeschoss (Top 4) zur Vermietung. Mit einer Wohnfläche von 89,08 m² bietet die Immobilie viel Platz für Familien, Paare oder Personen mit erhöhtem Platzbedarf. Besonders attraktiv ist das separate Ankleidezimmer, das zusätzlichen Komfort und Stauraum schafft. Die Miete beinhaltet bereits die Betriebskosten, Heizung sowie Warmwasser, wodurch eine gute monatliche Planbarkeit gegeben ist.
Raumaufteilung & Highlights
Raumaufteilung
- Vorraum: 10,85 m²
- WC: 1,02 m²
- Badezimmer: 2,69 m²
- Küche: 11,51 m²
- Wohnzimmer: 21,38 m²
- Schlafzimmer: 16,65 m²
- Kinderzimmer...
Wels / Innere Stadt Wels / Laahener Straße 8 :
In der Laahener Straße 8, 4600 Wels, steht diese großzügig geschnittene Wohnung im 1. Obergeschoss (Top 4) zur Vermietung.
Mit einer Wohnfläche von 89,08 m² bietet die Immobilie viel Platz für Familien, Paare oder Personen mit erhöhtem Platzbedarf. Besonders attraktiv ist das separate Ankleidezimmer, das zusätzlichen Komfort und Stauraum schafft.
Die Miete beinhaltet bereits die Betriebskosten, Heizung sowie Warmwasser, wodurch eine gute monatliche Planbarkeit gegeben ist.
Raumaufteilung & Highlights
Raumaufteilung
- Vorraum: 10,85 m²
- WC: 1,02 m²
- Badezimmer: 2,69 m²
- Küche: 11,51 m²
- Wohnzimmer: 21,38 m²
- Schlafzimmer: 16,65 m²
- Kinderzimmer 1: 12,69 m²
- Kinderzimmer 2: 12,28 m²
Gesamtwohnfläche: 89,08 m²
Highlights
- Großzügige 89,08 m² Wohnfläche
- 3 Zimmer + separates Ankleidezimmer/oder Kinderzimmer
- 1.Obergeschoss
- Heizung und Warmwasser in der Miete inkludiert
- Gut durchdachte Raumaufteilung
- Ideal für Familien oder Paare
Mietkondition
- Monatliche Miete inkl. Betriebskosten, Heizung, Warmwasser und MwSt.:
€ 1.073,91 (exkl. Strom) - Kaution/BKZ: € 3.221,73
Verfügbarkeit
Die Wohnung steht 01.04.2026 zur Verfügung.
Sie sind an weiteren Wohnungs- bzw. Gewerbeangeboten interessiert? Ein vielfältiges Angebot finden Sie auf unserer Website.
Zur WAG-Immobiliensuche: SUCHE
Zur WAG-Wohnungsanmeldung: Wohnungsanmeldung
Gerne beraten wir Sie persönlich über unser vielfältiges Angebot, rufen Sie uns einfach an! Und das natürlich ohne Vermittlungsgebühren und provisionsfrei!
Angaben sind ohne Gewähr auf Richtigkeit und Vollständigkeit. Druckfehler vorbehalten.
Infrastruktur / Entfernungen
Gesundheit
Arzt <300m
Apotheke <125m
Klinik <1.125m
Krankenhaus <1.275m
Kinder & Schulen
Schule <375m
Kindergarten <350m
Universität <900m
Nahversorgung
Supermarkt <125m
Bäckerei <275m
Einkaufszentrum <2.075m
Sonstige
Bank <200m
Geldautomat <200m
Post <300m
Polizei <800m
Verkehr
Bus <75m
Autobahnanschluss <2.000m
Bahnhof <850m
Flughafen <2.700m
Angaben Entfernung Luftlinie / Quelle: OpenStreetMap
Objektdaten
Ausstattung
- Kabel/SAT-TV
- Wasch-/Trockenraum
- Bad mit Badewanne
- Bad mit Fenster
- Fliesenboden
- Parkettboden
- Personen Fahrstuhl
- Massiv Bauweise
Dokumente / Links
Zustand
- Zustand
- GEPFLEGT
- HWB
- 49 kWh/m² pro Jahr
- Klasse HWB
- B
- fGEE
- 1.11
- Klasse fGEE
- C
Flächen
- Anzahl der Zimmer
- 4
- Anzahl der Badezimmer
- 1
- Anzahl der sep. WCs
- 1
- Anzahl der Balkone
- 1
- Wohnfläche
- 89m²
Kosten
- Gesamtmiete Brutto
- € 990,17
- Kaution
- € 3.221,73
- Miete
- € 650,28
- Betriebskosten
- € 249,87
- Heizkosten
- € 71,27
- Umsatzsteuer
- € 102,49
- Monatl. Gesamtbelastung Brutto
- € 1.073,91
Verwaltung
- Verfügbar ab
- 01.05.2026, ab 01. 05. 2026
Wohnungen zum Mieten in Österreich
Wohnungen zum Mieten in Österreich
Wohnungen zum Mieten in Österreich
Andere Besucher suchen nach...
- Grundstücke kaufen in 3400 Weidlingbach
- Wohnungen kaufen in 4663 Laakirchen
- Häuser in 7471 Rechnitz
- Wohnungen in 2410 Hainburg an der Donau
- Häuser kaufen in 2432 Schwadorf
- Wohnungen kaufen in 3002 Purkersdorf
- Häuser in 3150 Wilhelmsburg
- Wohnungen kaufen in 3470 Engelmannsbrunn
- Grundstücke kaufen im Bezirk Mattersburg
- Grundstücke kaufen im Bezirk Gmunden