Komfortable 3-Zimmer-Wohnung in Wels – 94 m², ideal für Paare oder Familien - ab Jänner 2026 zu einem attraktiven Mietpreis!
-
01.01.2026
Beschreibung
Oberösterreich / Wels / Dragonerstraße 44:
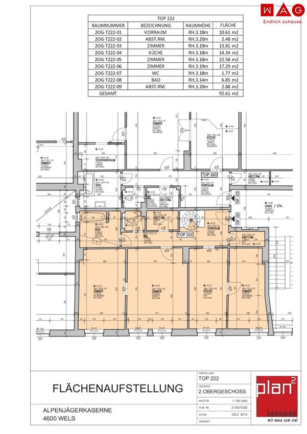
Diese großzügige 3-Zimmer-Wohnung im 2. Obergeschoss eines gepflegten Mehrparteienhauses bietet eine Gesamtfläche von 94 m² und ist ideal für Paare oder Familien, die ein modernes und zentrales Zuhause suchen. Die Wohnung überzeugt durch ihre praktischen Raumaufteilungen und ihre Helligkeit.
Die Wohnung ist wie folgt aufgeteilt:
-
Vorraum (10,61 m²)
-
Abstellräume (jeweils 2,48 m² und 2,88 m²)
-
Wohnzimmer (13,81 m²)
-
Küche (14,34 m²)
-
Zimmer 1 (22,58 m²)
-
Zimmer 2 (17,29 m²)
-
Bad (6,85 m²)
-
WC (1,77 m²)
Oberösterreich / Wels / Dragonerstraße 44:
Diese großzügige 3-Zimmer-Wohnung im 2. Obergeschoss eines gepflegten Mehrparteienhauses bietet eine Gesamtfläche von 94 m² und ist ideal für Paare oder Familien, die ein modernes und zentrales Zuhause suchen. Die Wohnung überzeugt durch ihre praktischen Raumaufteilungen und ihre Helligkeit.
Die Wohnung ist wie folgt aufgeteilt:
Vorraum (10,61 m²)
Abstellräume (jeweils 2,48 m² und 2,88 m²)
Wohnzimmer (13,81 m²)
Küche (14,34 m²)
Zimmer 1 (22,58 m²)
Zimmer 2 (17,29 m²)
Bad (6,85 m²)
WC (1,77 m²)
Die Wohnung ist aufgrund der großzügigen Raumhöhen (ca. 3,18 m) besonders lichtdurchflutet und vermittelt eine angenehme und luftige Atmosphäre. Dank der durchdachten Raumaufteilung und der gut belichteten Fensterflächen ist jede Ecke der Wohnung optimal genutzt.
Lagebeschreibung:
Die Wohnung befindet sich in der Dragonerstraße 44 in Wels und besticht durch ihre zentrale Lage. Das Stadtzentrum sowie verschiedene Einkaufsmöglichkeiten sind nur wenige Minuten entfernt. Öffentliche Verkehrsmittel wie Busse und der Wels Bahnhof sind ebenfalls in unmittelbarer Nähe, wodurch eine gute Anbindung an den öffentlichen Nahverkehr gewährleistet ist.
Für den täglichen Bedarf finden Sie zahlreiche Supermärkte, Bäckereien und Apotheken in der Nähe. Die Umgebung bietet auch zahlreiche Freizeitmöglichkeiten, darunter Parks und Grünflächen, die zu Spaziergängen und Erholung einladen.
Mietkonditionen:
Miete inkl. Betriebskosten und Mwst.: 953,13 € monatlich (ohne Strom und Heizung)
Kaution/BKZ: 3.812,52 €
Der Immobilienmakler erklärt, dass er – entgegen dem in der Immobilienwirtschaft üblichen Geschäftsgebrauch des Doppelmaklers – einseitig nur für den Vermieter tätig ist.
Sie sind an weiteren Wohnungs- bzw. Gewerbeangeboten interessiert? Ein vielfältiges Angebot finden Sie auf unserer Website.
Zur WAG-Immobiliensuche: SUCHE
Zur WAG-Wohnungsanmeldung: Wohnungsanmeldung
Gerne beraten wir Sie persönlich über unser vielfältiges Angebot, rufen Sie uns einfach an! Und das natürlich ohne Vermittlungsgebühren und provisionsfrei!
Angaben sind ohne Gewähr auf Richtigkeit und Vollständigkeit. Druckfehler vorbehalten.
Infrastruktur / Entfernungen
Gesundheit
Arzt <425m
Apotheke <650m
Klinik <450m
Krankenhaus <2.150m
Kinder & Schulen
Schule <300m
Kindergarten <425m
Universität <1.200m
Nahversorgung
Supermarkt <400m
Bäckerei <975m
Einkaufszentrum <2.950m
Sonstige
Bank <350m
Geldautomat <700m
Post <875m
Polizei <175m
Verkehr
Bus <25m
Autobahnanschluss <2.275m
Bahnhof <425m
Flughafen <3.525m
Angaben Entfernung Luftlinie / Quelle: OpenStreetMap
Objektdaten
Ausstattung
- Teilmöbliert
- Kabel/SAT-TV
- Wasch-/Trockenraum
- Bad mit Badewanne
- Bad mit Fenster
- Fliesenboden
- Parkettboden
- Zentralheizung
- Fernwärme Heizung
- Fern Befeuerung
- Massiv Bauweise
Dokumente / Links
Zustand
- HWB
- 63 kWh/m² pro Jahr
- Klasse HWB
- C
- fGEE
- 1.17
- Klasse fGEE
- C
Flächen
- Anzahl der Zimmer
- 3
- Anzahl der Badezimmer
- 1
- Anzahl der sep. WCs
- 1
- Wohnfläche
- 94m²
Kosten
- Gesamtmiete Brutto
- € 953,13
- Kaution
- € 3.812,52
- Miete
- € 690,76
- Betriebskosten
- € 175,72
- Umsatzsteuer
- € 86,65
- Monatl. Gesamtbelastung Brutto
- € 953,13
Verwaltung
- Verfügbar ab
- 01.01.2026
Wohnungen zum Mieten in Österreich
Wohnungen zum Mieten in Österreich
Wohnungen zum Mieten in Österreich
Andere Besucher suchen nach...
- Grundstücke kaufen in 3400 Weidlingbach
- Wohnungen kaufen in 4663 Laakirchen
- Häuser in 7471 Rechnitz
- Wohnungen in 2410 Hainburg an der Donau
- Häuser kaufen in 2432 Schwadorf
- Wohnungen kaufen in 3002 Purkersdorf
- Häuser in 3150 Wilhelmsburg
- Wohnungen kaufen in 3470 Engelmannsbrunn
- Grundstücke kaufen im Bezirk Mattersburg
- Grundstücke kaufen im Bezirk Gmunden