1030 Wien: Lichtdurchflutete DG-Wohnung mit kleiner Loggia direkt beim Rochusmarkt
-
01.03.2026
Beschreibung
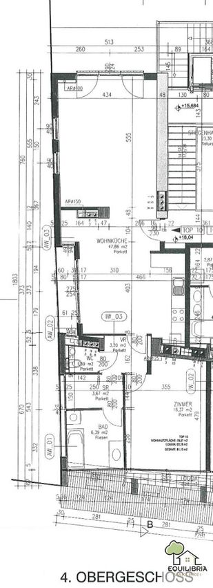
Die helle Dachgeschosswohnung verfügt über eine Gesamtfläche von 81,15 m² (inklusive ca. 2,5 m² Loggia) und überzeugt durch eine durchdachte Raumaufteilung.
Die Wohnung gliedert sich in drei gut geschnittene Zimmer:
-
ein großzügiges Wohnzimmer mit schönem Blick ins Grüne und über die Dächer Wiens,
-
ein separates Ess- bzw. Küchzimmer mit voll ausgestatteter Einbauküche (inkl. aller Geräte und ausreichend Stauraum),
-
sowie ein ruhiges Schlafzimmer, das ebenfalls mit einem angenehmen Ausblick punktet.
Alle Räume wirken durch die Dachgeschosslage besonders hell und freundlich.
Das Badezimmer ist sehr lichtdurchflutet und verfügt über eine Badewanne, einen Spiegelschrank sowie...
Die helle Dachgeschosswohnung verfügt über eine Gesamtfläche von 81,15 m² (inklusive ca. 2,5 m² Loggia) und überzeugt durch eine durchdachte Raumaufteilung.
Die Wohnung gliedert sich in drei gut geschnittene Zimmer:
ein großzügiges Wohnzimmer mit schönem Blick ins Grüne und über die Dächer Wiens,
ein separates Ess- bzw. Küchzimmer mit voll ausgestatteter Einbauküche (inkl. aller Geräte und ausreichend Stauraum),
sowie ein ruhiges Schlafzimmer, das ebenfalls mit einem angenehmen Ausblick punktet.
Alle Räume wirken durch die Dachgeschosslage besonders hell und freundlich.
Das Badezimmer ist sehr lichtdurchflutet und verfügt über eine Badewanne, einen Spiegelschrank sowie einen Waschmaschinenanschluss. Ein separates WC sorgt für zusätzlichen Komfort. Ergänzend steht ein kleiner begehbarer Kleiderschrank zur Verfügung, der praktischen Stauraum bietet.
Die Wohnung eignet sich ideal für Paare, die großzügig wohnen möchten, ebenso wie für eine WG, da die Zimmer gut nutzbar und separat begehbar sind. Eine attraktive Dachgeschosswohnung in gefragter Lage – perfekt für alle, die zentrales Wohnen mit Ausblick und Lebensqualität verbinden möchten.
Wir weisen darauf hin, dass zwischen dem Vermittler und dem zu vermittelnden Dritten ein familiäres oder wirtschaftliches Naheverhältnis besteht.
Der Immobilienmakler erklärt, dass er – entgegen dem in der Immobilienwirtschaft üblichen Geschäftsgebrauch des Doppelmaklers – einseitig nur für den Vermieter tätig ist.
Infrastruktur / Entfernungen
Gesundheit
Arzt <250m
Apotheke <250m
Klinik <250m
Krankenhaus <750m
Kinder & Schulen
Schule <250m
Kindergarten <250m
Universität <750m
Höhere Schule <250m
Nahversorgung
Supermarkt <250m
Bäckerei <250m
Einkaufszentrum <250m
Sonstige
Geldautomat <250m
Bank <250m
Post <250m
Polizei <750m
Verkehr
Bus <250m
U-Bahn <250m
Straßenbahn <750m
Bahnhof <250m
Autobahnanschluss <1.500m
Angaben Entfernung Luftlinie / Quelle: OpenStreetMap
Objektdaten
Ausstattung
- Fahrradraum
- Bad mit Badewanne
- Bad mit Fenster
- Einbauküche
- Offene Küche
- Fliesenboden
- Parkettboden
- Etage Heizung
- Befeuerung mit Gas
- Personen Fahrstuhl
Zustand
- HWB
- 118.2 kWh/m² pro Jahr
- Klasse HWB
- D
- fGEE
- 3.84
- Klasse fGEE
- F
Flächen
- Anzahl der Zimmer
- 3.5
- Anzahl der Badezimmer
- 1
- Anzahl der sep. WCs
- 1
- Anzahl der Logia
- 1
- Wohnfläche
- 79m²
- Gesamtfläche
- 81m²
Kosten
- Gesamtmiete Brutto
- € 1.408,35
- Miete
- € 1.085,05
- Betriebskosten
- € 142,60
- Sonstige Kosten
- € 52,66
- Umsatzsteuer
- € 128,04
- Monatl. Gesamtbelastung Brutto
- € 1.408,35
Verwaltung
- Verfügbar ab
- 01.03.2026, ab 01. 03. 2026
- Mietdauer
- bis 7,0 Jahre
Wohnungen zum Mieten in Österreich
- Bezirk Gemeindebezirk Landstrasse
- Bezirk Gemeindebezirk Landstrasse
- Bezirk Gemeindebezirk Landstrasse
- Bezirk Gemeindebezirk Leopoldstadt
- Bezirk Gemeindebezirk Leopoldstadt
- Bezirk Gemeindebezirk Leopoldstadt
- Bezirk Gemeindebezirk Innere Stadt
- Bezirk Gemeindebezirk Innere Stadt
- Bezirk Gemeindebezirk Innere Stadt
- Bezirk Gemeindebezirk Wieden
Wohnungen zum Mieten in Österreich
Wohnungen zum Mieten in Österreich
Andere Besucher suchen nach...
- Grundstücke kaufen in 3400 Weidlingbach
- Wohnungen kaufen in 4663 Laakirchen
- Häuser in 7471 Rechnitz
- Wohnungen in 2410 Hainburg an der Donau
- Häuser kaufen in 2432 Schwadorf
- Wohnungen kaufen in 3002 Purkersdorf
- Häuser in 3150 Wilhelmsburg
- Wohnungen kaufen in 3470 Engelmannsbrunn
- Grundstücke kaufen im Bezirk Mattersburg
- Grundstücke kaufen im Bezirk Gmunden