DG-Wohnung in einem hübschen Altbau in der Hetzgasse
-
sofort
Beschreibung
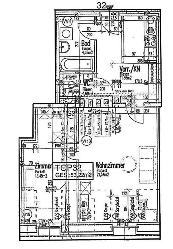
Die helle aparte 2 - Zimmer-DG- Wohnung liegt im 4. Luftstock und bietet eine gute Raumaufteilung: Vorraum mit Bad, WC und Abstellraum.
Küche incl. Geräten
2 Zimmer
Schöne Allgemeinterrassen im 1.OG und Dachgeschoß zur Mitbenützung.
Die Wohnung wird für 5 Jahre mit Verlängerungsoption vermietet. Ein Garagenabstellplatz ist für € 150 bei Bedarf extra anzumieten.
Der Immobilienmakler erklärt, dass er – entgegen dem in der Immobilienwirtschaft üblichen Geschäftsgebrauch des Doppelmaklers – einseitig nur für den Vermieter tätig ist.
Infrastruktur / Entfernungen
Gesundheit Arzt <500m Apotheke <500m Klinik <1.000m Krankenhaus <1.000m Kinder & Schulen Schule <500m Kindergarten <500m Universität <500m Höhere Schule...
Die helle aparte 2 - Zimmer-DG- Wohnung liegt im 4. Luftstock und bietet eine gute Raumaufteilung:
Vorraum mit Bad, WC und Abstellraum.
Küche incl. Geräten
2 Zimmer
Schöne Allgemeinterrassen im 1.OG und Dachgeschoß zur Mitbenützung.
Die Wohnung wird für 5 Jahre mit Verlängerungsoption vermietet.
Ein Garagenabstellplatz ist für € 150 bei Bedarf extra anzumieten.
Der Immobilienmakler erklärt, dass er – entgegen dem in der Immobilienwirtschaft üblichen Geschäftsgebrauch des Doppelmaklers – einseitig nur für den Vermieter tätig ist.
Infrastruktur / Entfernungen
Gesundheit
Arzt <500m
Apotheke <500m
Klinik <1.000m
Krankenhaus <1.000m
Kinder & Schulen
Schule <500m
Kindergarten <500m
Universität <500m
Höhere Schule <1.000m
Nahversorgung
Supermarkt <500m
Bäckerei <500m
Einkaufszentrum <500m
Sonstige
Geldautomat <500m
Bank <500m
Post <500m
Polizei <500m
Verkehr
Bus <500m
U-Bahn <500m
Straßenbahn <500m
Bahnhof <500m
Autobahnanschluss <2.500m
Angaben Entfernung Luftlinie / Quelle: OpenStreetMap
Objektdaten
Ausstattung
- Gartennutzung
- Kabel/SAT-TV
- Wasch-/Trockenraum
- Fahrradraum
- Bad mit Badewanne
- Offene Küche
- Fliesenboden
- Parkettboden
- Zentralheizung
- Fernwärme Heizung
- Fern Befeuerung
- Personen Fahrstuhl
- Massiv Bauweise
Zustand
- Baujahr
- 2004
- Alter
- ALTBAU
- HWB
- 53 kWh/m² pro Jahr
- Klasse HWB
- C
- fGEE
- 1.23
- Klasse fGEE
- C
Flächen
- Anzahl der Zimmer
- 2
- Anzahl der Badezimmer
- 1
- Anzahl der sep. WCs
- 1
- Wohnfläche
- 53m²
Kosten
- Gesamtmiete Brutto
- € 899,39
- Kaution
- € 2.698,17
- Miete
- € 683,70
- Betriebskosten
- € 133,93
- Umsatzsteuer
- € 81,76
- Monatl. Gesamtbelastung Brutto
- € 899,39
Verwaltung
- Verfügbar ab
- sofort
- Mietdauer
- bis 5,0 Jahre
Wohnungen zum Mieten in Österreich
- Bezirk Gemeindebezirk Landstrasse
- Bezirk Gemeindebezirk Landstrasse
- Bezirk Gemeindebezirk Landstrasse
- Bezirk Gemeindebezirk Innere Stadt
- Bezirk Gemeindebezirk Innere Stadt
- Bezirk Gemeindebezirk Innere Stadt
- Bezirk Gemeindebezirk Leopoldstadt
- Bezirk Gemeindebezirk Leopoldstadt
- Bezirk Gemeindebezirk Leopoldstadt
- Bezirk Gemeindebezirk Wieden
Wohnungen zum Mieten in Österreich
Wohnungen zum Mieten in Österreich
Andere Besucher suchen nach...
- Grundstücke kaufen in 3400 Weidlingbach
- Wohnungen kaufen in 4663 Laakirchen
- Häuser in 7471 Rechnitz
- Wohnungen in 2410 Hainburg an der Donau
- Häuser kaufen in 2432 Schwadorf
- Wohnungen kaufen in 3002 Purkersdorf
- Häuser in 3150 Wilhelmsburg
- Wohnungen kaufen in 3470 Engelmannsbrunn
- Grundstücke kaufen im Bezirk Mattersburg
- Grundstücke kaufen im Bezirk Gmunden