Moderne 4-Zimmer-DG-Wohnung mit hofseitigem Balkon
-
2020
-
01.01.2026
Beschreibung
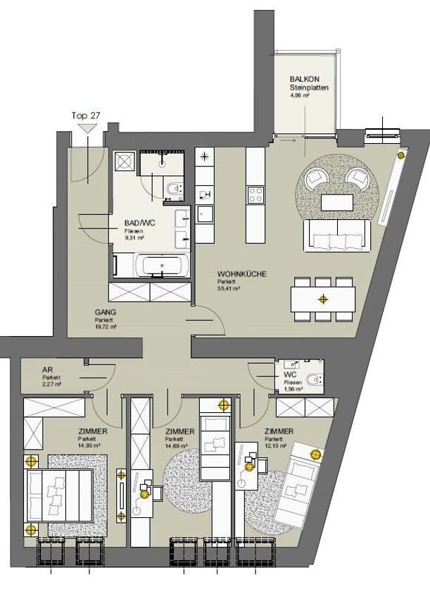
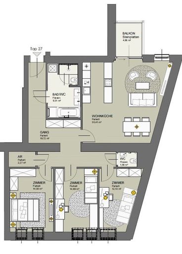
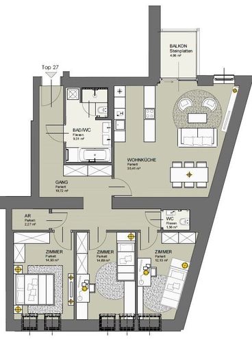
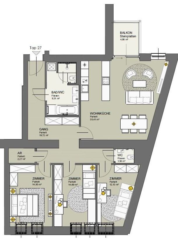
Vermietet wird hier eine 4-Zimmer-Dachgeschoss-Wohnung mit hofseitigem Balkon und Top-Ausstattung!
Diese stilvolle Dachgeschosswohnung mit ca. 115 m² Nutzfläche vereint großzügiges Wohnen, hochwertige Ausstattung und durchdachte Raumaufteilung auf hohem Niveau. Ergänzt wird das Wohnangebot durch einen ca. 5 m² großen, hofseitig ausgerichteten Balkon.
Bereits beim Betreten der Wohnung empfängt Sie ein großzügiger, länglicher Vorraum, der den eleganten Charakter der Wohnung widerspiegelt. Zur linken Seite befindet sich das hochwertig ausgestattete Badezimmer mit Dusche, Badewanne, Doppelwaschbecken sowie Waschmaschinenanschluss. Das WC ist hier dezent durch eine Wand abgetrennt und fügt sich harmonisch in das Gesamtbild des Badezimmers ein.
Geradeaus öffnet...
Vermietet wird hier eine 4-Zimmer-Dachgeschoss-Wohnung mit hofseitigem Balkon und Top-Ausstattung!
Diese stilvolle Dachgeschosswohnung mit ca. 115 m² Nutzfläche vereint großzügiges Wohnen, hochwertige Ausstattung und durchdachte Raumaufteilung auf hohem Niveau. Ergänzt wird das Wohnangebot durch einen ca. 5 m² großen, hofseitig ausgerichteten Balkon.
Bereits beim Betreten der Wohnung empfängt Sie ein großzügiger, länglicher Vorraum, der den eleganten Charakter der Wohnung widerspiegelt. Zur linken Seite befindet sich das hochwertig ausgestattete Badezimmer mit Dusche, Badewanne, Doppelwaschbecken sowie Waschmaschinenanschluss. Das WC ist hier dezent durch eine Wand abgetrennt und fügt sich harmonisch in das Gesamtbild des Badezimmers ein.
Geradeaus öffnet sich der repräsentative Wohnbereich mit großzügiger Wohnküche und fließendem Übergang ins Wohnzimmer. Die moderne Küche mit Kochinsel bildet das Herzstück dieses Bereichs. Von hier aus gelangen Sie außerdem direkt auf den Balkon mit hofseitiger Ausrichtung.
Vom Vorraum aus, rechterhand, erschließt sich der weitere Wohnbereich. Hier befinden sich ein praktischer Abstellraum, ein zusätzliches separates WC mit Handwaschbecken sowie drei helle Zimmer mit Fenstern, die sich flexibel als Schlafzimmer, Büro, Ankleide- oder Gästezimmer nutzen lassen.
Für höchsten Wohnkomfort sorgen eine angenehme Fußbodenheizung in allen Räumen sowie installierte Klimageräte, die auch an warmen Tagen ein optimales Raumklima gewährleisten. Sämtliche Räume der Wohnung sind zentral angeordnet und separat begehbar, was eine klare Struktur und hohen Wohnkomfort gewährleistet. Hochwertige Parkettböden in den Wohnräumen sowie edle Feinsteinzeugfliesen im Sanitärbereich sorgen für ein stilvolles Wohnambiente. Mit dem Lift gelangen Sie bequem in das erste Dachgeschoss. Für Sicherheit sorgen eine hochwertige Sicherheitstüre sowie eine Gegensprechanlage. Elektrische Außenbeschattung und elektrisch bedienbare Velux-Fenster unterstreichen den modernen Ausstattungsstandard. Der Wohnung ist ein Kellerabteil mit ca. 2,5 m² zugeordnet.
Garagenstellplätze können bei Bedarf und Verfügbarkeit zusätzlich angemietet werden.
Hinweis: neue Bilder folgen bald!
Lage und Anbindung:
Die Lage könnte nicht besser sein: in nur wenigen Gehminuten erreichen Sie die Urania / Schwedenplatz / Bundesministerium für Finanzen / Stubenring etc.
Perfekte Anbindung dank der U-Bahn (U1 / U4), aber auch Straßenbahnen (Linie 1, O, N37, etc.)
In der Nähe befindet sich der Prater, der Donaukanal, und der Radetzkyplatz. Es ist also für Naherholung, als auch für eine sehr gute Versorgung und Anbindung gesorgt.
Die Schnellbahnstation Landstraße Wien Mitte mit zahlreichen Zugverbindungen, Flughafen (CAT) ist in nur 5 min mit der Straßenbahn erreichbar. Zum Prater ist es auch nur ein Katzensprung. Donaukanal, Hundertwasserhaus, Urania befinden sich in Gehweite.
Konditionen:
Vermietet wird ab sofort auf 5 Jahre;
Miete: € 2.999,02 (inkl. Steuern, BK, Wasser & Liftkosten)
Kaution: € 9.100,- // Vertragserrichtungskosten: € 360,-
Gas und Strom werden separat abgerechnet und auf den/die Mieter*in umgemeldet.
Kündigungsverzicht: 12 Monate, Kündigungsfrist: 3 Monate;
Kontakt:
Bitte beachten Sie, dass wir aufgrund der Nachweispflicht gegenüber dem Eigentümer nur Anfragen mit vollständiger Angabe der Anschrift bearbeiten können.
Anfragen bitte daher mit vollständiger Angabe der personenbezogenen Daten: (Name, Nachname, Anschrift, E-Mail und Telefonnummer) an: stifter@pr-immobilien.at
Ihre möglichen Terminvorschläge wären sehr hilfreich!
Weitere Informationen und alle Objekte finden Sie unter: www.pr-immobilien.at
Noch nichts gefunden? Wir informieren Sie über geeignete Immobilienangebote noch vor allen anderen.
Legen Sie jetzt Ihren individuellen Suchagenten unter folgendem Link an. Wir schicken Ihnen passende Immobilien exklusiv vorab zu.
Suchagent anlegen - https://pr-immobilien-real-estate.service.immo/registrieren/de
Der Immobilienmakler erklärt, dass er – entgegen dem in der Immobilienwirtschaft üblichen Geschäftsgebrauch des Doppelmaklers – einseitig nur für den Vermieter tätig ist.
Infrastruktur / Entfernungen
Gesundheit
Arzt <500m
Apotheke <500m
Klinik <1.000m
Krankenhaus <1.000m
Kinder & Schulen
Schule <500m
Kindergarten <500m
Universität <500m
Höhere Schule <1.500m
Nahversorgung
Supermarkt <500m
Bäckerei <500m
Einkaufszentrum <1.000m
Sonstige
Geldautomat <500m
Bank <500m
Post <500m
Polizei <500m
Verkehr
Bus <500m
U-Bahn <500m
Straßenbahn <500m
Bahnhof <500m
Autobahnanschluss <3.000m
Angaben Entfernung Luftlinie / Quelle: OpenStreetMap
Objektdaten
Ausstattung
- WG geeignet
- Klimatisiert
- Rollstuhlgerecht
- Kabel/SAT-TV
- DVBT
- Barrierefrei
- UMTS Empfang
- Fahrradraum
- Gäste-WC
- Seniorengerecht
- Bad mit Dusche
- Bad mit Badewanne
- Offene Küche
- Fliesenboden
- Steinboden
- Parkettboden
- Estrichboden
- Fußbodenheizung
- Befeuerung mit Gas
- Solar
- Personen Fahrstuhl
- Ausrichtung Balkon/Terrasse - Südwest
- Niedrigenergie
- Neubaustandard
Dokumente / Links
Zustand
- Baujahr
- 2020
- Alter
- NEUBAU
- HWB
- 30.6 kWh/m² pro Jahr
- fGEE
- 0.64
Flächen
- Anzahl der Zimmer
- 4
- Anzahl der Badezimmer
- 1
- Anzahl der sep. WCs
- 2
- Anzahl der Balkone
- 1
- Nutzfläche
- 115m²
- Freifläche
- 5m²
- Kellerfläche
- 2m²
Kosten
- Gesamtmiete Brutto
- € 2.999,02
- Kaution
- € 9.100,00
- Miete
- € 2.484,00
- Betriebskosten
- € 175,30
- Sonstige Kosten
- € 67,08
- Umsatzsteuer
- € 272,64
- Monatl. Gesamtbelastung Brutto
- € 2.999,02
Verwaltung
- Verfügbar ab
- 01.01.2026, ab 01. 01. 2026
- Mietdauer
- bis 5,0 Jahre
Wohnungen zum Mieten in Österreich
- Bezirk Gemeindebezirk Landstrasse
- Bezirk Gemeindebezirk Landstrasse
- Bezirk Gemeindebezirk Landstrasse
- Bezirk Gemeindebezirk Wieden
- Bezirk Gemeindebezirk Wieden
- Bezirk Gemeindebezirk Wieden
- Bezirk Gemeindebezirk Innere Stadt
- Bezirk Gemeindebezirk Innere Stadt
- Bezirk Gemeindebezirk Innere Stadt
- Bezirk Gemeindebezirk Leopoldstadt
Wohnungen zum Mieten in Österreich
Wohnungen zum Mieten in Österreich
Andere Besucher suchen nach...
- Grundstücke kaufen in 3400 Weidlingbach
- Wohnungen kaufen in 4663 Laakirchen
- Häuser in 7471 Rechnitz
- Wohnungen in 2410 Hainburg an der Donau
- Häuser kaufen in 2432 Schwadorf
- Wohnungen kaufen in 3002 Purkersdorf
- Häuser in 3150 Wilhelmsburg
- Wohnungen kaufen in 3470 Engelmannsbrunn
- Grundstücke kaufen im Bezirk Mattersburg
- Grundstücke kaufen im Bezirk Gmunden