360 TOUR // REPRÄSENTATIVE ALTBAUWOHNUNG nahe der SOPHIENSÄLE
-
sofort
Beschreibung
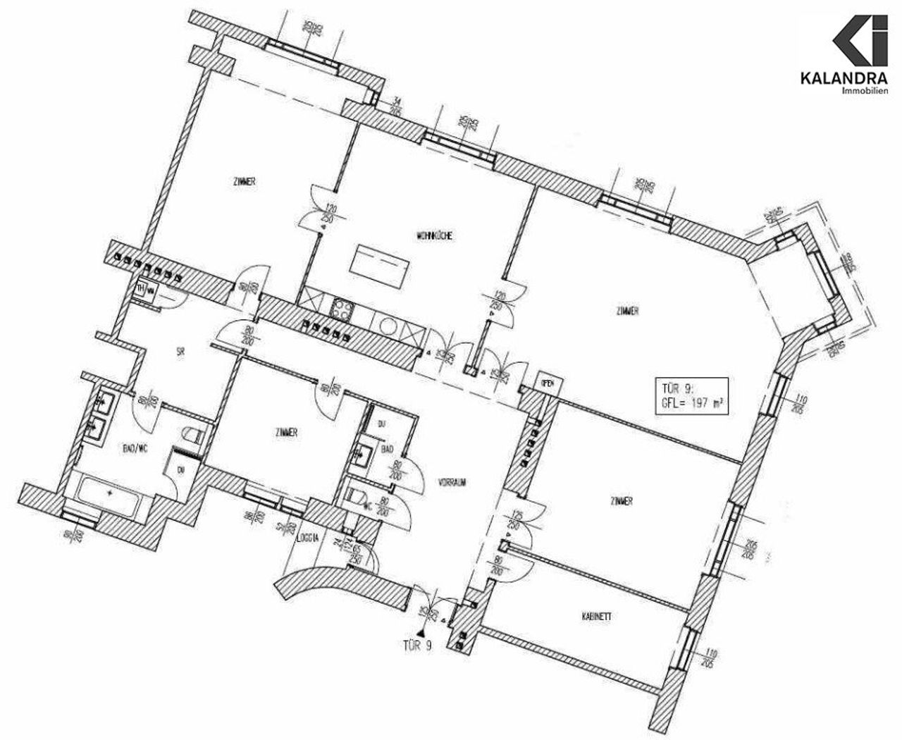
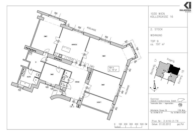
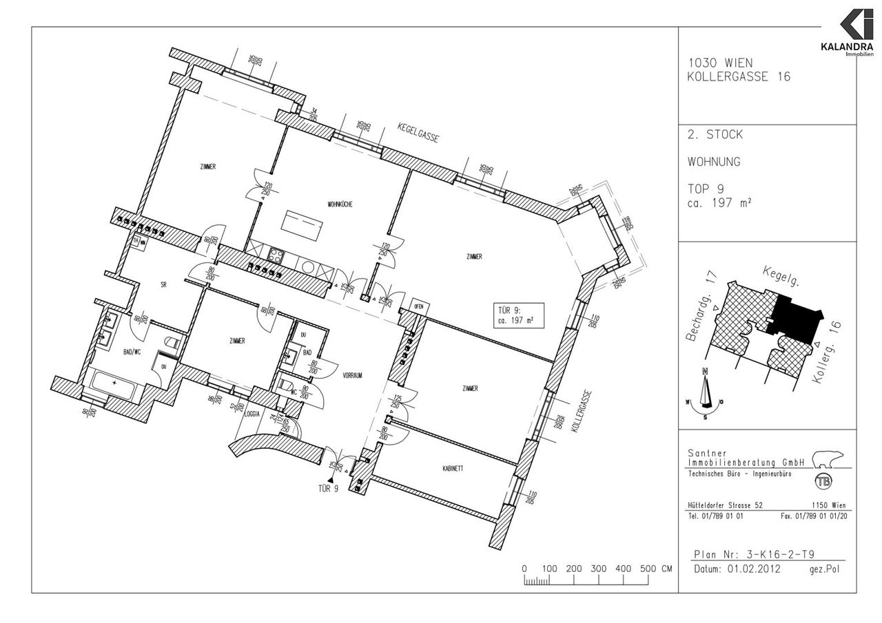
Im 3.Liftstock eines gepflegten Jugendstilhauses (BJ ca. 1910) nächst Kolonitzplatz gelegen, gelangt diese im Jahr 2012 generalsanierte 5-Zimmer Wohnung zur Vermietung. Raumaufteilung: zentraler Vorraum, großer Eck-Wohnsalon mit Erker, Wohnküche, weitere 3 weitere Zimmer,1 Kabinett, ein Wannen- & Duschbad mit Dopplewaschtisch & WC, ein Duschbad, separates Gäste-WC, begehbarer Schrankraum, kleiner hofseitiger Klopfbalkon. Ausstattung: - in den Wohnräumen durchgehend massiver Eichen-Parkettboden, - Naßräume mit Feinsteinzeug verfliest und Designarmaturen ausgestattet, - moderne Einbauküche mit weißen Fronten & hochwertigen Einbaugeräten, - Gas-Etagenheizung Angeboten wird ein unbefristetes Mietverhältnis mit einjährigem, mieterseitigen Kündigungsverzicht.
Der Immobilienmakler erklärt, dass er – entgegen dem in der Immobilienwirtschaft üblichen Geschäftsgebrauch...
Im 3.Liftstock eines gepflegten Jugendstilhauses (BJ ca. 1910) nächst Kolonitzplatz gelegen, gelangt diese im Jahr 2012 generalsanierte 5-Zimmer Wohnung zur Vermietung.
Raumaufteilung:
zentraler Vorraum, großer Eck-Wohnsalon mit Erker, Wohnküche, weitere 3 weitere Zimmer,1 Kabinett,
ein Wannen- & Duschbad mit Dopplewaschtisch & WC, ein Duschbad, separates Gäste-WC,
begehbarer Schrankraum, kleiner hofseitiger Klopfbalkon.
Ausstattung:
- in den Wohnräumen durchgehend massiver Eichen-Parkettboden,
- Naßräume mit Feinsteinzeug verfliest und Designarmaturen ausgestattet,
- moderne Einbauküche mit weißen Fronten & hochwertigen Einbaugeräten,
- Gas-Etagenheizung
Angeboten wird ein unbefristetes Mietverhältnis mit einjährigem, mieterseitigen Kündigungsverzicht.
Der Immobilienmakler erklärt, dass er – entgegen dem in der Immobilienwirtschaft üblichen Geschäftsgebrauch des Doppelmaklers – einseitig nur für den Vermieter tätig ist.
Infrastruktur / Entfernungen
Gesundheit
Arzt <500m
Apotheke <500m
Klinik <1.000m
Krankenhaus <500m
Kinder & Schulen
Schule <500m
Kindergarten <500m
Universität <500m
Höhere Schule <1.000m
Nahversorgung
Supermarkt <500m
Bäckerei <500m
Einkaufszentrum <500m
Sonstige
Geldautomat <500m
Bank <500m
Post <500m
Polizei <500m
Verkehr
Bus <500m
U-Bahn <500m
Straßenbahn <500m
Bahnhof <500m
Autobahnanschluss <2.500m
Angaben Entfernung Luftlinie / Quelle: OpenStreetMap
Objektdaten
Ausstattung
- Etage Heizung
- Befeuerung mit Gas
- Personen Fahrstuhl
Dokumente / Links
Zustand
- Zustand
- NEUWERTIG
- Baujahr
- 1910
- HWB
- 122 kWh/m² pro Jahr
- Klasse HWB
- D
Flächen
- Anzahl der Zimmer
- 5
- Anzahl der Badezimmer
- 2
- Anzahl der sep. WCs
- 2
- Anzahl der Balkone
- 1
- Wohnfläche
- 197m²
- Nutzfläche
- 200m²
Kosten
- Gesamtmiete Brutto
- € 3.795,00
- Kaution
- € 11.900,00
- Miete
- € 3.080,36
- Betriebskosten
- € 369,64
- Umsatzsteuer
- € 345,00
- Monatl. Gesamtbelastung Brutto
- € 3.795,00
Verwaltung
- Verfügbar ab
- sofort
Wohnungen zum Mieten in Österreich
- Bezirk Gemeindebezirk Landstrasse
- Bezirk Gemeindebezirk Landstrasse
- Bezirk Gemeindebezirk Landstrasse
- Bezirk Gemeindebezirk Innere Stadt
- Bezirk Gemeindebezirk Innere Stadt
- Bezirk Gemeindebezirk Innere Stadt
- Bezirk Gemeindebezirk Leopoldstadt
- Bezirk Gemeindebezirk Leopoldstadt
- Bezirk Gemeindebezirk Leopoldstadt
- Bezirk Gemeindebezirk Wieden
Wohnungen zum Mieten in Österreich
Wohnungen zum Mieten in Österreich
Andere Besucher suchen nach...
- Grundstücke kaufen in 3400 Weidlingbach
- Wohnungen kaufen in 4663 Laakirchen
- Häuser in 7471 Rechnitz
- Wohnungen in 2410 Hainburg an der Donau
- Häuser kaufen in 2432 Schwadorf
- Wohnungen kaufen in 3002 Purkersdorf
- Häuser in 3150 Wilhelmsburg
- Wohnungen kaufen in 3470 Engelmannsbrunn
- Grundstücke kaufen im Bezirk Mattersburg
- Grundstücke kaufen im Bezirk Gmunden