ROCHUSMARKT / U3 - DACHGESCHOSSWOHNUNG MIT TERRASSE UND FERNBLICK
-
1. Juli 2026
Beschreibung
Zur befristeten Vermietung gelangt eine ruhige und renovierte 3-Zimmer-Dachgeschosswohnung mit 32 m² Terrasse und traumhaften Fernblick – in unmittelbarer Nähe zum Rochusmarkt und zur U-Bahnlinie U3. Auch der grüne Prater und der Stadtpark liegen in fußläufiger Entfernung, welche sich bestens für erholsame Spaziergänge und sportliche Freizeitaktivitäten eignen.
Diese charmante Wohnung befindet sich im Dachgeschoß (5. Stock) eines repräsentativen Jahrhundertwende-Hauses mit Lift.
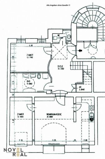
91 m² Wohnfläche mit guter Raumaufteilung (siehe Grundriss) plus Terrasse:
• 34 m² Wohnraum mit offener Küche
• 2 Schlafzimmer mit rd. 13 und 14 m²
• Bad mit Wanne und Dusche mit Glaswänden
...Zur befristeten Vermietung gelangt eine ruhige und renovierte 3-Zimmer-Dachgeschosswohnung mit 32 m² Terrasse und traumhaften Fernblick – in unmittelbarer Nähe zum Rochusmarkt und zur U-Bahnlinie U3. Auch der grüne Prater und der Stadtpark liegen in fußläufiger Entfernung, welche sich bestens für erholsame Spaziergänge und sportliche Freizeitaktivitäten eignen.
Diese charmante Wohnung befindet sich im Dachgeschoß (5. Stock) eines repräsentativen Jahrhundertwende-Hauses mit Lift.
91 m² Wohnfläche mit guter Raumaufteilung (siehe Grundriss) plus Terrasse:
• 34 m² Wohnraum mit offener Küche
• 2 Schlafzimmer mit rd. 13 und 14 m²
• Bad mit Wanne und Dusche mit Glaswänden
• separate Toilette mit Handwaschbecken und Fenster
• große Diele mit Lichtkuppel und Platz für Home-Office
• Abstellraum unter der Treppe zur
• 32 m² hof- und westseitigen Dachterrasse mit traumhaften Fernblick
(alle Flächenangaben gerundet - Angaben ohne Gewähr)
Hochwertige Ausstattung:
• moderne Hochglanz-Einbauküche - komplett ausgestattet
• neu renoviertes Badezimmer mit Waschbeckenverbau und Spiegelschrank
• Einbauschrank
• Klimaanlage
• Parkett - und Fliesenböden
• Beleuchtungskörper
• Waschmaschinenanschluss im Badezimmer
Der neue Hotspot von Wien - zentrale Lage mit perfekter Infrastruktur in Prater- und Stadtpark-Nähe:
• Öffentliche Verkehrsmittel:
Die Wohnung liegt in unmittelbarer Nähe der U-Bahnlinie U3 (Rochusgasse), der Buslinien 4A und 74A und der Straßenbahnlinie 1.
Sie erreichen aber auch innerhalb von nur 10 Gehminuten die Innenstadt, den Bahnhof Wien-Mitte, den Stadtpark und den grünen Prater.
Beste Anbindung auch an den Flughafen.
• Einkaufsmöglichkeiten/Ausgehen:
In der nächsten Umgebung befinden nicht nur die Einkaufsmeile Landstraßer Hauptstraße und der Rochusmarkt, sondern auch ein
vielfältiges Angebot an sehr guten Gastronomielokalen. Das Einkaufszentrum "The Mall" liegt ebenfalls in fußläufiger Entfernung.
Wir weisen darauf hin, dass zwischen dem Vermittler und dem zu vermittelnden Dritten ein familiäres oder wirtschaftliches Naheverhältnis besteht.
Der Immobilienmakler erklärt, dass er – entgegen dem in der Immobilienwirtschaft üblichen Geschäftsgebrauch des Doppelmaklers – einseitig nur für den Vermieter tätig ist.
Infrastruktur / Entfernungen
Gesundheit
Arzt <500m
Apotheke <500m
Klinik <500m
Krankenhaus <500m
Kinder & Schulen
Schule <500m
Kindergarten <500m
Universität <500m
Höhere Schule <1.000m
Nahversorgung
Supermarkt <500m
Bäckerei <500m
Einkaufszentrum <500m
Sonstige
Geldautomat <500m
Bank <500m
Post <500m
Polizei <500m
Verkehr
Bus <500m
U-Bahn <500m
Straßenbahn <500m
Bahnhof <500m
Autobahnanschluss <2.000m
Angaben Entfernung Luftlinie / Quelle: OpenStreetMap
Objektdaten
Ausstattung
- Teilmöbliert
- Kabel/SAT-TV
- Fahrradraum
- Bad mit Dusche
- Bad mit Badewanne
- Einbauküche
- Offene Küche
- Fliesenboden
- Parkettboden
- Etage Heizung
- Befeuerung mit Gas
- Personen Fahrstuhl
- Ausrichtung Balkon/Terrasse - West
Zustand
- Baujahr
- 1890
- Alter
- ALTBAU
- HWB
- 97.64 kWh/m² pro Jahr
- Klasse HWB
- C
Flächen
- Anzahl der Zimmer
- 3
- Anzahl der Badezimmer
- 1
- Anzahl der sep. WCs
- 1
- Anzahl der Terrassen
- 1
- Wohnfläche
- 91m²
- Kellerfläche
- 3m²
- Terrassenfläche
- 1m²
Kosten
- Gesamtmiete Brutto
- € 2.003,56
- Kaution
- € 6.010,68
- Miete
- € 1.655,66
- Betriebskosten
- € 165,75
- Umsatzsteuer
- € 182,15
- Monatl. Gesamtbelastung Brutto
- € 2.003,56
Verwaltung
- Verfügbar ab
- 1. Juli 2026
- Mietdauer
- bis 5,0 Jahre
Wohnungen zum Mieten in Österreich
- Bezirk Gemeindebezirk Landstrasse
- Bezirk Gemeindebezirk Landstrasse
- Bezirk Gemeindebezirk Landstrasse
- Bezirk Gemeindebezirk Wieden
- Bezirk Gemeindebezirk Wieden
- Bezirk Gemeindebezirk Wieden
- Bezirk Gemeindebezirk Innere Stadt
- Bezirk Gemeindebezirk Innere Stadt
- Bezirk Gemeindebezirk Innere Stadt
- Bezirk Gemeindebezirk Leopoldstadt
Wohnungen zum Mieten in Österreich
Wohnungen zum Mieten in Österreich
Andere Besucher suchen nach...
- Grundstücke kaufen in 3400 Weidlingbach
- Wohnungen kaufen in 4663 Laakirchen
- Häuser in 7471 Rechnitz
- Wohnungen in 2410 Hainburg an der Donau
- Häuser kaufen in 2432 Schwadorf
- Wohnungen kaufen in 3002 Purkersdorf
- Häuser in 3150 Wilhelmsburg
- Wohnungen kaufen in 3470 Engelmannsbrunn
- Grundstücke kaufen im Bezirk Mattersburg
- Grundstücke kaufen im Bezirk Gmunden